The interior textures designed by Arqtipo are the result of a strategic combination of brick and a new white metal structure that facilitates a dialogue with the existing building. Far from being imposing, the metal staircase is presented as a lightweight, sculptural element that integrates harmoniously into the home.
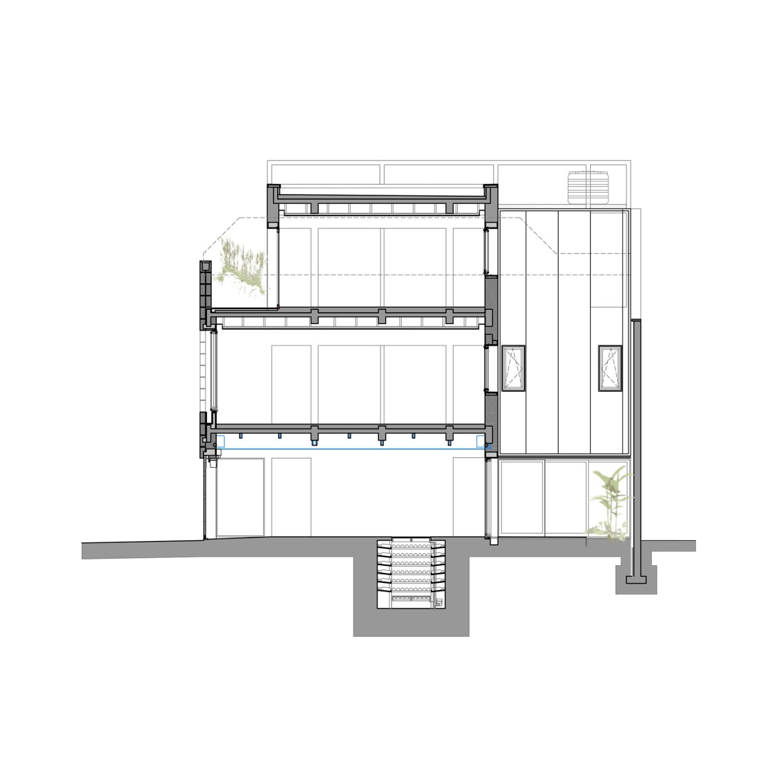
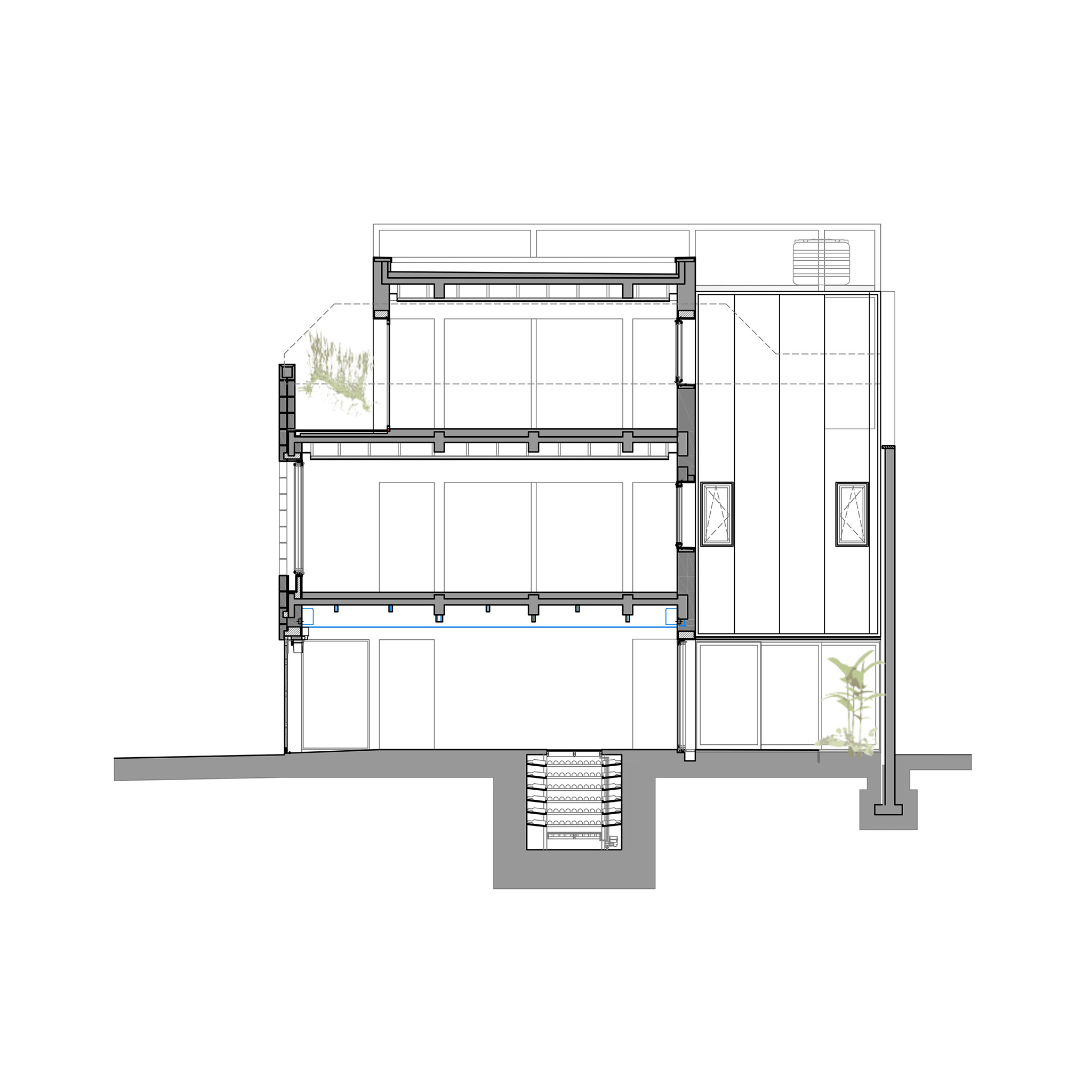
The different programmatic areas are arranged vertically across three levels. The ground floor houses the entrances, service areas, and expansion spaces, while the upper floors contain the more private spaces, always closely linked to the exterior through a series of landscaped terraces. The A1486 project can be summarized as a series of spaces fluidly connected vertically, prioritizing flexibility and natural light.

A1486, single-family home in Chacarita by Arqtipo. Photograph by Israel Caire.
Project description by Arqtipo
A1486 is developed on a lot between party walls in a consolidated urban fabric of the Chacarita neighborhood.
The proposal seeks to create a dwelling that maximizes interior livability while preserving privacy and optimizing the relationship with exterior space. The key operation is the consolidation of a compact and austere volume facing the street, which opens up to an interior patio, where a more permeable and luminous language is developed.
From its configuration and materiality, the facade appears as a solid piece with a brick envelope of the Cabildo type placed vertically, which acts as a visual and solar filter, creating a textured plane that also refers to the language of the neighborhood. The lower white and blind plane, materialized in sheet metal, emphasizes the gesture of a base that hides the access and technical uses, freeing the prominence to the brick plane.
Regarding its interiors, the use of brick combined with the new white metal structure creates a dialogue between the pre-existing and the contemporary. The metal staircase is a lightweight, almost sculptural gesture that integrates with the rusticity of the walls.
A translucent facade system is used, allowing the entrance of diffuse light during the day and functioning like an urban lamp at night. The courtyard, for its part, serves as a core for lighting and ventilation, visually connecting the different levels.
From its layout, the house is organized into three levels. On the ground floor, access points, services, and expansion spaces are located. Meanwhile, on the upper levels, the private and social spaces are situated, featuring a visual connection to the outside and landscaped terraces. The design prioritizes flexibility, the use of natural light, and fluid circulation between environments.