La propuesta para la Casa para cinco mujeres comienza siete años atrás, a partir de las experiencias personales de Hazima Smajlović, que inspiraron la colaboración entre TEN Studio, la ONG Ingenieros Sin Fronteras, la ONG Vive Žene, el municipio de Gradačac y numerosos colaboradores individuales. Para su ejecución, los recursos fueron donados, recopilados y gestionados de forma transparente mediante informes anuales y decisiones tomadas por un comité de proyecto responsable.
Considerar los requisitos del proyecto y los recursos disponibles fue fundamental. El edificio se arraiga plenamente en su contexto local, pero su impacto se extiende a una comunidad más amplia. Para su ejecución, el proyecto se construyó mediante un diálogo in situ con contratistas de construcción locales: la colaboración con metalúrgicos, carpinteros, pintores de automóviles, reparadores de alfombras y otras personas cualificadas de la localidad fue esencial para establecer una cultura de colaboración y visibilidad.
Hacia el exterior, la gran fachada, trabajada por la artista Shirana Shahbazi, se presenta como un tapiz de colores que cambia constantemente de apariencia. Las veinte puertas que se abren hacia la calle hacen que la Casa para cinco mujeres sea accesible y acogedora. En el interior, la distribución promueve tanto la privacidad como las experiencias compartidas. El reconocimiento de las necesidades individuales, en combinación con el apoyo mutuo y la aceptación de la historia personal de cada mujer, hace de este un lugar al que pueden llamar hogar.

Casa para cinco mujeres por TEN Studio. Fotografía por Maxime Delvaux, Adrien de Hemptinne.
Descripción del proyecto por TEN Studio
La Casa para cinco mujeres ofrece alojamiento a mujeres que han sobrevivido a la guerra, la violencia y la injusticia social. Ubicado en una zona rural cerca de Gradačac, un pequeño pueblo de Bosnia y Herzegovina, el proyecto ofrece un modelo de cuidado, apoyo mutuo y participación comunitaria. La casa se basa en la idea de que las personas crecen y conviven mejor con la autodeterminación y la responsabilidad compartida. El proyecto busca ir más allá de las soluciones prescriptivas. Fomenta una cultura arraigada en su entorno sin imponer todos los detalles y permite que la identidad se reinvente a diario.
El proyecto comenzó con Hazima Smajlović, cuyas experiencias personales inspiraron una colaboración de siete años entre TEN, la ONG Ingenieros Sin Fronteras, la ONG Vive Žene, el municipio de Gradačac y numerosos colaboradores individuales. Los recursos para el proyecto se recopilaron, donaron y aseguraron a lo largo del tiempo gracias a numerosas contribuciones individuales. El equipo del proyecto gestionó estos recursos de forma transparente mediante informes anuales y decisiones tomadas por un comité de proyecto responsable.
Comprender plenamente los requisitos del proyecto y los recursos disponibles fue el primer paso del proceso de diseño. Diseñar implica, inherentemente, tomar decisiones preferibles, y estas acciones que configuran la realidad también se ven influenciadas por la dinámica y el contexto cambiantes.
La colaboración con metalúrgicos, carpinteros, pintores de automóviles, reparadores de alfombras y otras personas cualificadas de la localidad fue esencial para establecer una cultura de colaboración y visibilidad, así como para definir los límites del proyecto. A través de su construcción, el edificio se arraiga en su contexto local, pero su impacto se extiende a una comunidad más amplia.
En este caso, el diseño sirve como herramienta para el cambio social, creando espacios que responden a las necesidades más urgentes. El valor de este proyecto reside en un proceso de diseño abierto, altamente colaborativo y con un propósito definido. La arquitectura facilita el intercambio cooperativo e integra el conocimiento artístico de diversas disciplinas. Este enfoque va más allá del refinamiento de una estética particular, hacia uno que cultiva una estética de descubrimiento. La estructura está diseñada para animar a los residentes a habitar y adaptar el espacio. Este reconocimiento de las necesidades individuales se combina con el apoyo mutuo y la aceptación de la historia personal de cada mujer, haciendo de este un lugar al que pueden llamar hogar.
En estrecha colaboración con TEN, el arquitecto paisajista Daniel Ganz integró el edificio con su entorno plantando árboles, cuidando el terreno y desarrollando un huerto productivo. La artista Shirana Shahbazi trabajó con materiales y colores para transformar la fachada y el interior en una exhibición visual dinámica, un tapiz que cambia constantemente de apariencia. El colorido y la disposición de los paneles de la fachada se realizaron in situ y en un taller de pintura de automóviles cercano, transformando un típico taller de reparación de vehículos en una especie de estudio de arte. Trabajando con la repetición de elementos domésticos y combinándolos con el diseño, el proyecto buscaba crear un nuevo tipo de hogar.
La gran fachada con veinte puertas que se abren hacia la calle hace que la casa sea accesible y acogedora. Al abrirse por completo, estas puertas crean un umbral de 25 metros que permite el acceso al paisaje. Estas características crean yuxtaposiciones improbables, promoviendo la visibilidad del nuevo hogar para sus habitantes: un lugar que los celebra y donde ellos pueden celebrar. El diseño de la fachada confiere a la casa un carácter inesperado y no residencial, ofreciendo una cálida bienvenida a todos.
Las mujeres, cuya duración de estancia depende totalmente de su propia elección, son animadas a cultivar la parcela agrícola adyacente, transformando el terreno en un espacio productivo que refuerza su independencia. Con el apoyo administrativo de una cuidadora cualificada, las mujeres transforman la Casa para Cinco Mujeres en una comunidad vibrante y viva que evoluciona y prospera con cada nuevo capítulo. La finalización de la casa no marca el final del proyecto, sino el comienzo de su convivencia. El equipo del proyecto sigue participando activamente a través de la ONG Naš Izvor, responsable del mantenimiento del edificio, garantizando que siga adaptándose a las necesidades de sus residentes.
El proyecto desafía las expectativas convencionales de control, finalización y utilitarismo. En cambio, adopta el espacio natural como plataforma para el crecimiento, la adaptación y la reconfiguración. Al integrar diversas perspectivas, el diseño transforma la arquitectura en un medio de conexión e interdependencia, creando un marco vital que evoluciona con sus habitantes.
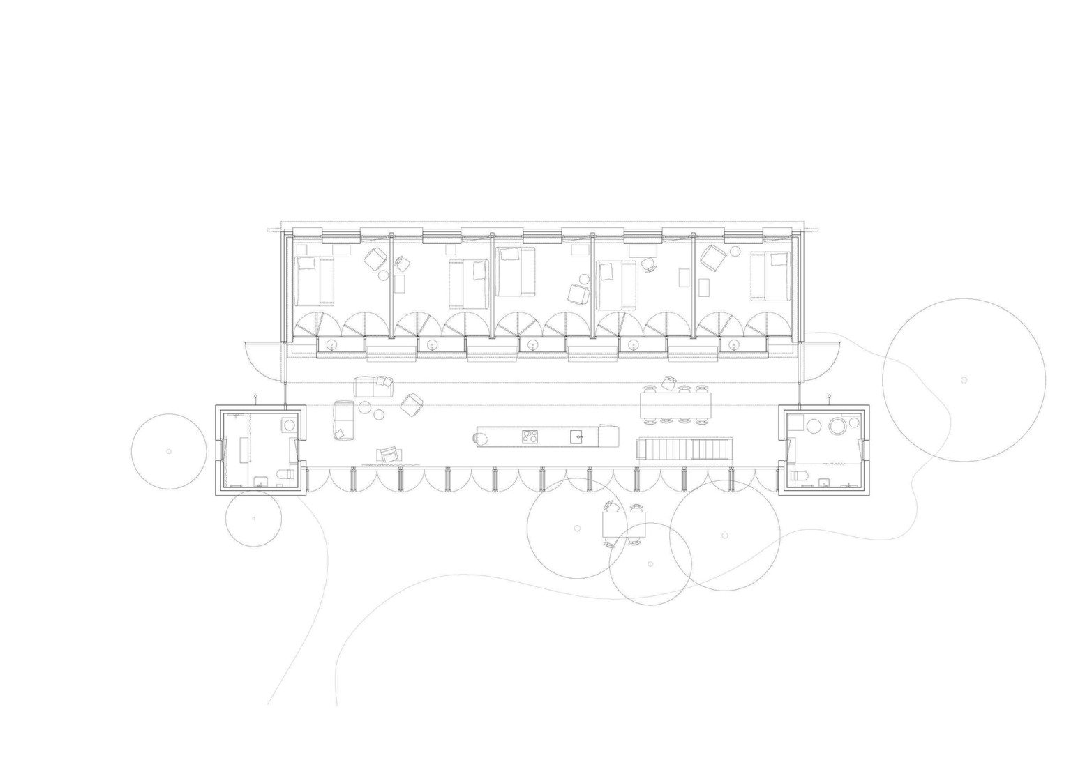
La distribución promueve tanto la privacidad como las experiencias compartidas. En la planta baja se encuentran habitaciones privadas, una sala de estar común y cuartos de servicio. Cada una de las cinco habitaciones privadas es amplia, de igual tamaño y con una orientación similar. Están equipadas con armarios y cocinas independientes para garantizar la independencia. La presencia de diez puertas dobles a lo largo de la pared orientada al sur transforma el acceso habitual a la habitación en una calle interior, fomentando la conexión.
Con aproximadamente 90 m², la zona común es más grande de lo que las personas podrían permitirse de forma independiente y requiere la participación compartida, lo que refuerza la idea de la vida en comunidad. Este espacio expande el concepto de las tradicionales zonas de porche orientadas al sur, proporcionando sombra en verano y creando profundidad. Este tipo de habitación, situada entre el interior y el exterior, funciona como un espacio para la elaboración de alimentos y la interacción social. Abierta por tres lados y con una claraboya que separa las zonas privadas de las amplias zonas comunes, funciona como cocina, área de recepción, espacio de trabajo y sala de estar. Los dos cuartos de servicio en la planta baja son de hormigón e incluyen amplios baños, conectados al paisaje mediante pequeñas puertas que proporcionan acceso directo a la jardinería.
Sobre el área común se encuentra una sala multifuncional de 26 metros de largo, inspirada en la tipología tradicional de almacenamiento pastoral. Construida como una estructura de celosía y revestida con paneles metálicos en el exterior y madera en el interior, esta estructura ofrece un espacio prominente y aislado según las necesidades. Esta versátil sala alberga diversas actividades estacionales, desde el almacenamiento de alimentos hasta el alojamiento de residentes adicionales. Se abre únicamente mediante una serie de paneles móviles orientados al norte.
Las superficies son robustas, sencillas y acogedoras, reflejando la resiliencia y el potencial de las mujeres que viven allí. Esto refleja un enfoque arquitectónico centrado en repensar radicalmente la comodidad. Las dimensiones poco convencionales de las áreas comunes garantizan que el espacio se utilice de acuerdo con las aspiraciones mutuas de todos los residentes, o al menos respetando su consentimiento. El tamaño de las salas comunes amplía los estándares de vivienda típicos a un modelo más generoso, apto para la convivencia. Al trabajar con suficiente superficie y materiales, a la vez que aumenta el espacio disponible, el diseño crea una sensación de grandeza, destacando el potencial de un nuevo tipo de hogar en la zona.
El proceso de diseño de la Casa para cinco mujeres fue una búsqueda reflexiva, crítica e inventiva, caracterizada por el placer compartido de lo inesperado. Estas colaboraciones creativas tienen el potencial de conectar ámbitos de conocimiento aislados, construir puntos en común, suavizar los extremos ideológicos y unir a las personas en torno a valores compartidos. El diseño puede demostrar su valor al fomentar la intersubjetividad y la resiliencia cultural que priorizan el impacto social y el bienestar colectivo. Esto encarna un nuevo tipo de instituto de diseño, y este es el campo en el que opera TEN. Descripción textual por los arquitectos.