El edificio de viviendas proyectado por Carr se concibe como una extensa fachada compuesta por una secuencia de pequeñas viviendas adosadas que mitiga la escala con la que son percibidas. Complementariamente, el cuarto nivel presenta un espacio de transición retranqueado que da como resultado un suelo intersticial que parece sobrevolar la calle. También se ha tenido en cuenta el valor de algunas de las alturas interiores, 3,50 metros, que potencian la calidad espacial a través de un aumento de volumen.
La elección del material responde básicamente a la atmósfera estable que transmite. El edificio emplea predominantemente el hormigón y la malla de acero, reinterpretando el carácter industrial de la zona. La vegetación que trepa y envuelve la malla de acero utilizada en todo el proyecto suaviza el pesado volumen monolítico de hormigón. En el interior, la propuesta paisajística se compone de parterres, senderos y árboles de copa, creando un ambiente acogedor para los residentes. Brunswick Yard representa un nuevo catalizador para los propietarios y para la comunidad del barrio que lleva su nombre.

Brunswick Yard por Carr. Fotografía por Tom Ross.
Descripción del proyecto por Carr
Partiendo de su contexto urbano industrial, Brunswick Yard integra arquitectura, interiores y paisajismo en un desarrollo multiresidencial contemporáneo y cohesivo. Siendo el proyecto residencial más grande de Carr hasta la fecha, ejemplifica la diversidad y profundidad del estudio en diseño residencial.
Con una rica historia y marcado por una cultura industrial, Brunswick es un suburbio multifacético de Melbourne, reconocido por su espíritu ecléctico. En respuesta a este dinámico contexto, Brunswick Yard honra el pasado de la zona a la vez que crea un espacio contemporáneo para la vida moderna, una clara expresión del refinamiento de diseño y la generosidad en la planificación que caracterizan a Carr.
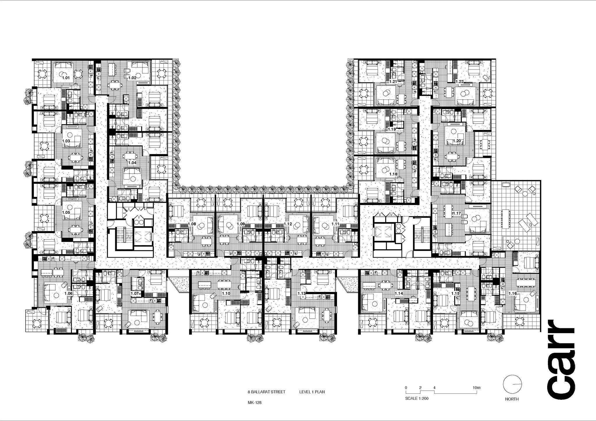
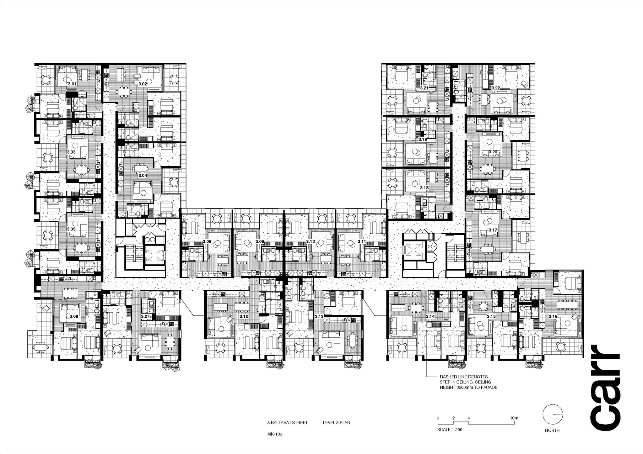
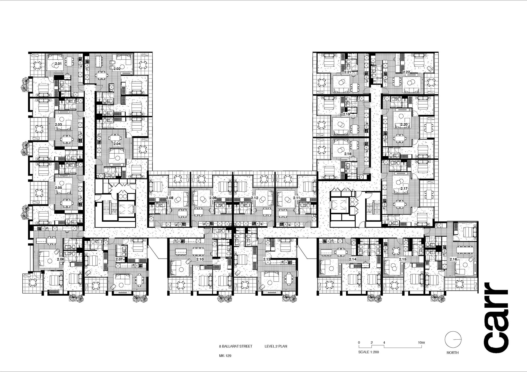
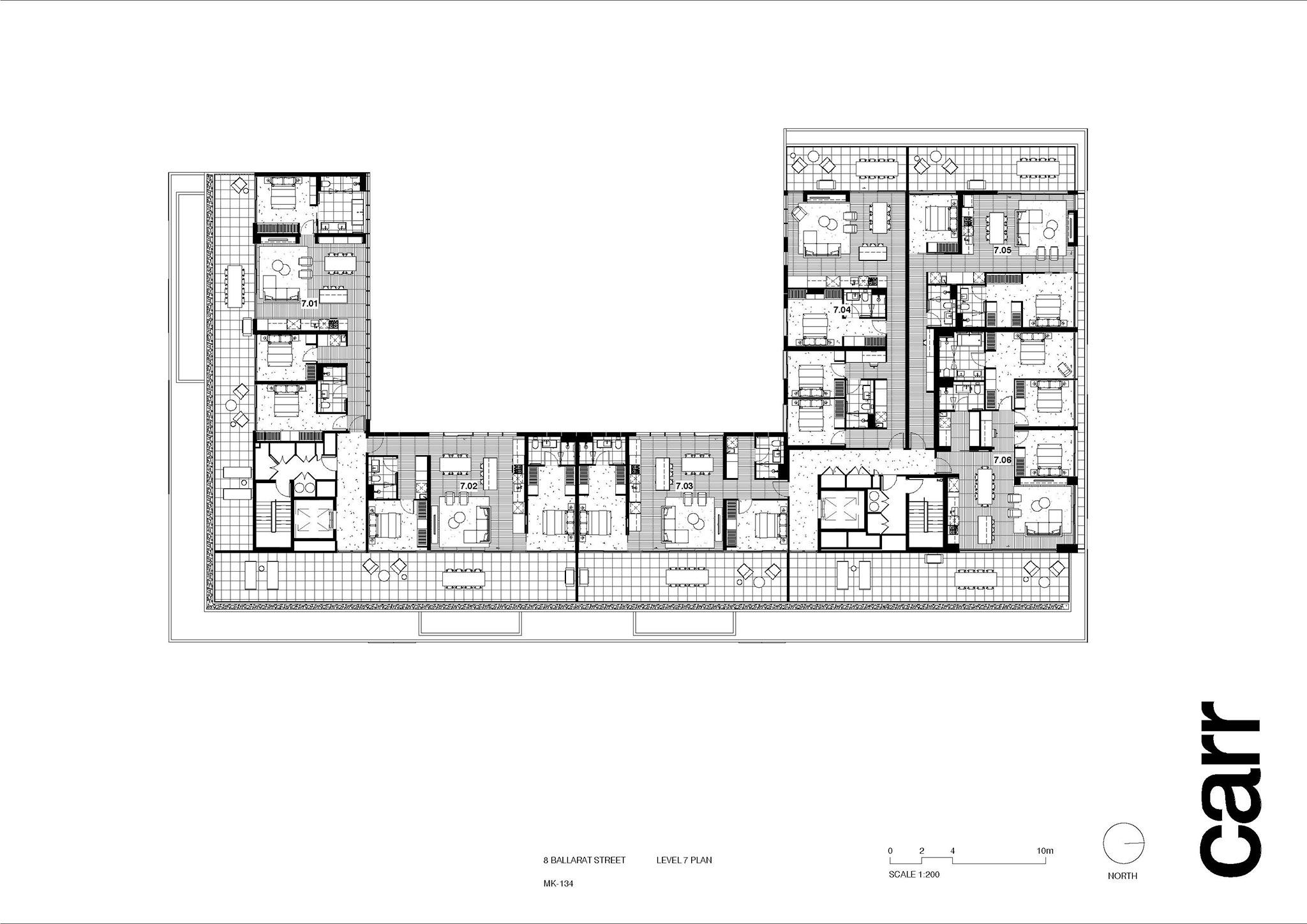
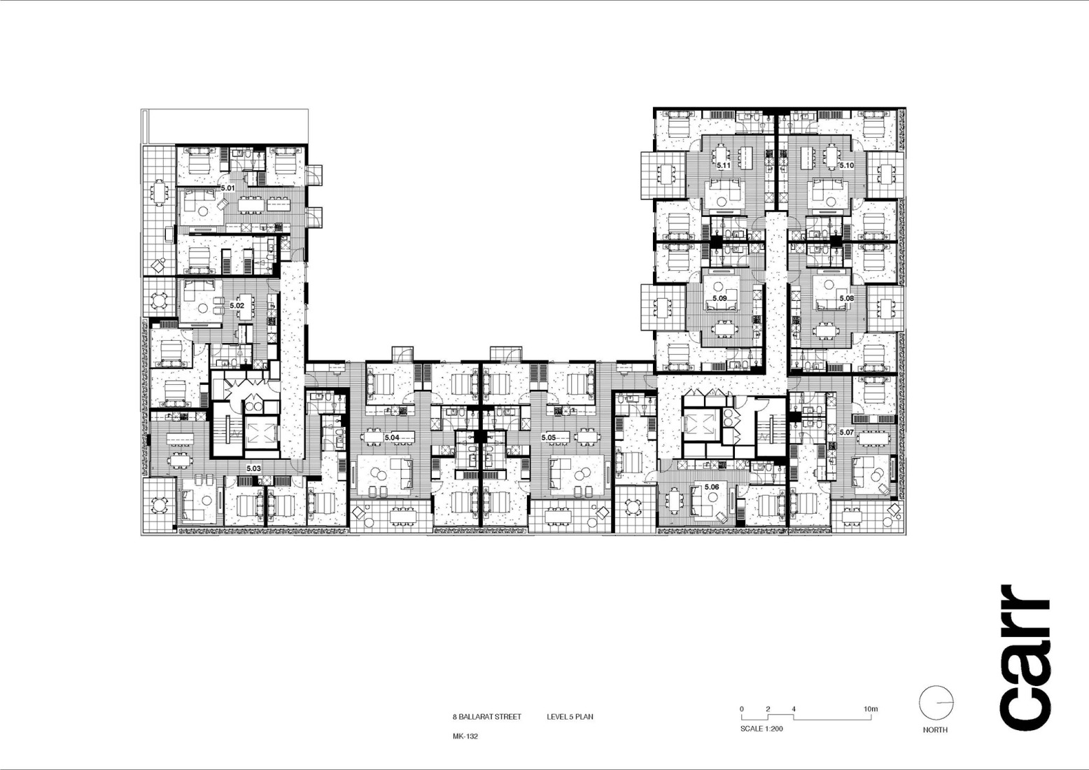
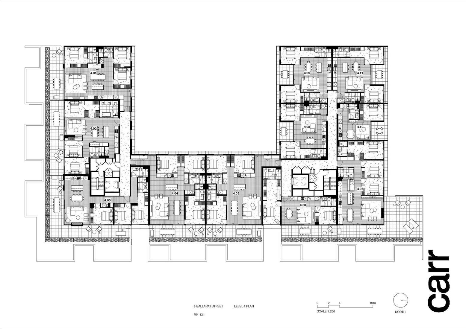
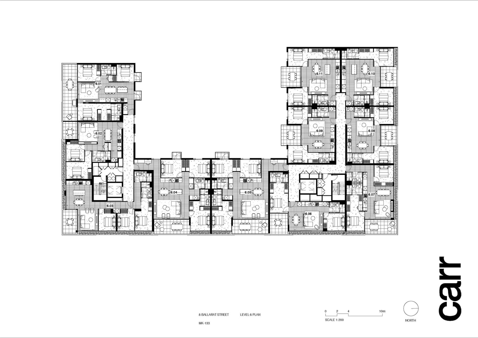
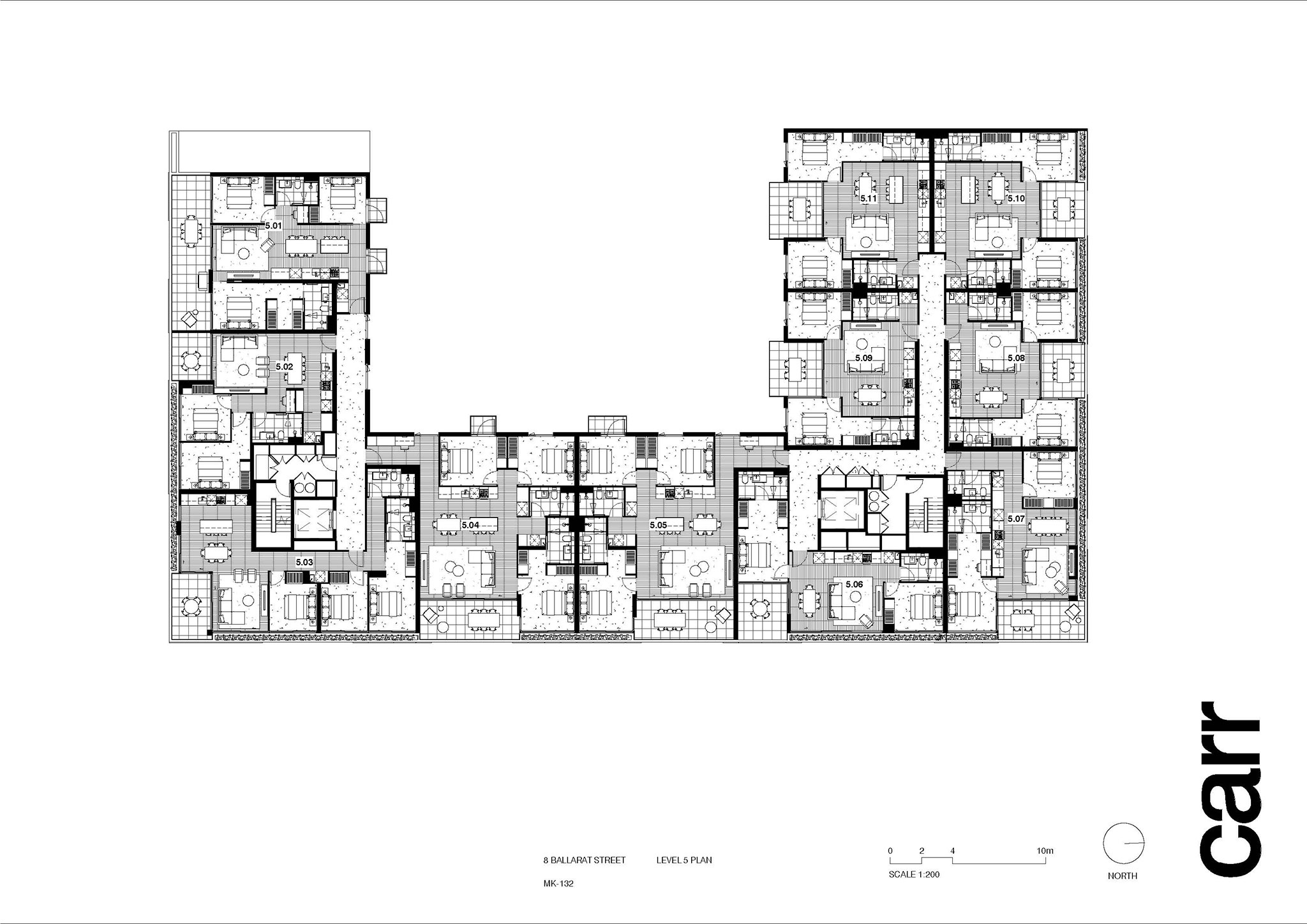
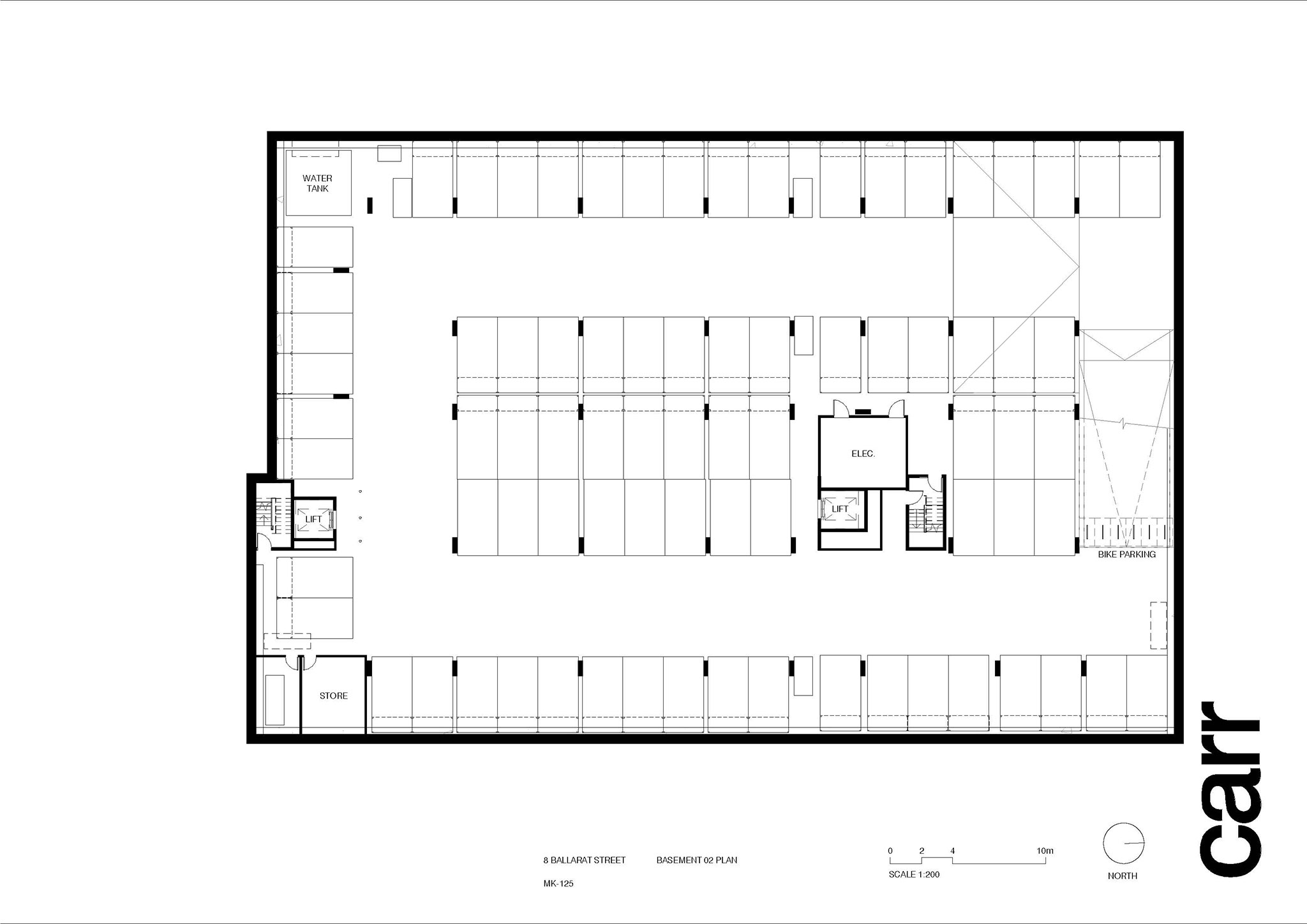
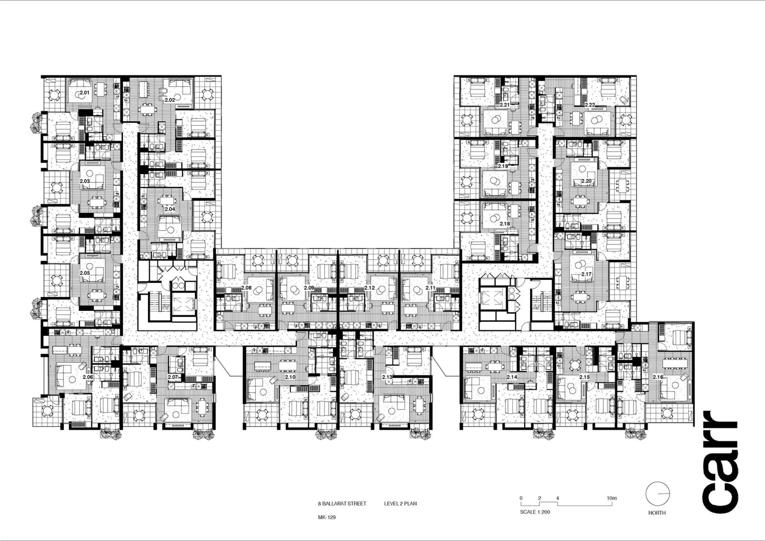
En el corazón de Brunswick Yard, como en todos los proyectos de Carr, se encuentra un enfoque integral. Con Carr supervisando tanto la arquitectura como los interiores de los 122 apartamentos en ocho plantas, se logra una clara continuidad entre el exterior y el interior. Las líneas limpias y las formas simples que definen la fachada se extienden a los interiores, creando un lenguaje de diseño consistente y una experiencia espacial cuidadosamente estudiada, enriquecida por una diversa gama de tipos de apartamentos.
Al combinar una concepción elevada con una vida de mayor densidad, el desarrollo crea una comunidad vibrante y conectada donde la conveniencia y el carácter se unen en una ubicación muy solicitada.
Parte del proceso de proyecto consistió en crear una respuesta arquitectónica que introdujese un carácter residencial más cuidado en una calle marcada durante mucho tiempo por el almacenamiento a gran escala. Inspirándose en la evolución urbana de Brunswick, marcada por una rápida transición hacia proyectos residenciales y de uso mixto de densidad media y alta, Carr busca realizar una contribución significativa ofreciendo una escala y un ritmo más humanos al paisaje urbano.
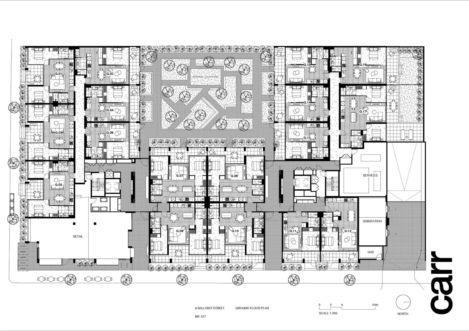
La extensa fachada del edificio se articula como una serie de módulos más pequeños, presentando una secuencia de casas adosadas de cuatro plantas para suavizar la escala general. La masa se divide aún más mediante dos callejones que marcan el borde de la calle, lo que permite mejorar los servicios, potenciar la luz natural y facilitar la ventilación cruzada a través de apartamentos con doble orientación.
El proyecto se organiza en torno a un patio central, un jardín urbano que facilita la conexión y la interacción de las viviendas y establece un fuerte sentido de pertenencia. Una consideración clave del diseño fue cómo lograr una forma de ocho plantas y, al mismo tiempo, mitigar su escala percibida. Para lograrlo, el cuarto nivel se presenta como un suelo intersticial retranqueado, creando un podio distintivo que parece flotar sobre la calle.
Otra ventaja del suelo retranqueado y los mayores retranqueos en la planta superior es la posibilidad de techos más altos. Varios apartamentos cuentan con techos de 3,5 metros de altura con plafones de hormigón visto, lo que aporta una sensación de volumen y riqueza material a los interiores.
Estéticamente, el proyecto se define por el uso de hormigón y malla de acero, un lenguaje de diseño brutalista que reinterpreta el carácter industrial de la zona.
«El uso de un material singular fue crucial en este proyecto. Se eligió no solo por su relevancia para Brunswick, sino también por la atmósfera que transmite».
«A pesar de ser un edificio monolítico con un material pesado, la forma en que la fachada se ha descompuesto en su forma y suavizado por la vegetación, también muestra ligereza a través de sus propiedades naturales y puras».
Richard Beel, Director de Carr.
La malla de acero se utiliza en todo el proyecto con fines funcionales y estéticos, sirviendo como balaustrada, pantalla y estructura de soporte para la vegetación. Originalmente explorada en proyectos anteriores como método para controlar las líneas de visión y cumplir con las normas de visibilidad, la malla se aplica aquí a una escala mucho mayor. También funciona como sustrato de plantación, permitiendo que las enredaderas trepen y suavicen la forma arquitectónica con el tiempo.
El diseño paisajístico integra amplias zonas exteriores privadas, incluyendo parterres, senderos, árboles de copa y un amplio césped central que captura la luz del norte, creando un ambiente acogedor para los residentes. Las puertas de madera artesanales a nivel del suelo introducen momentos de alivio material, que aportan calidez y tacto.
Brunswick Yard está perfectamente ubicado para satisfacer las necesidades tanto de los residentes como de la comunidad en general. Una oportunidad única para que Carr aplique la filosofía de diseño del estudio en un contexto industrial, Brunswick Yard representa un sofisticado catalizador para el barrio que lleva su nombre.