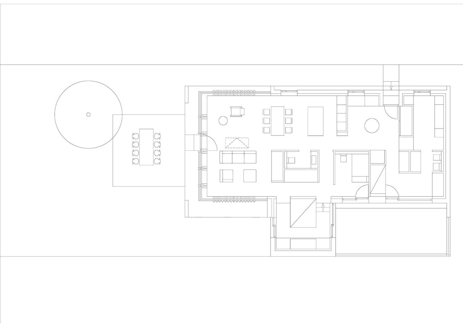
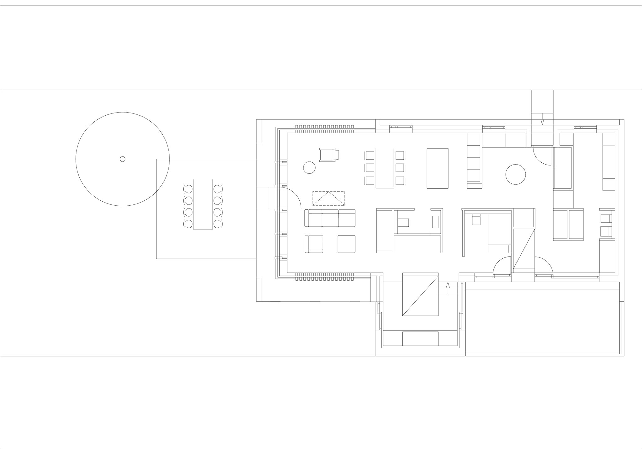
“The House Under the Poplars,” renovated by OFIS arhitekti, retains the volumetric logic, proportions, and minimalism characteristic of the Ivanšek architects’ typology from the 1980s. The new volume is conceived as a light pavilion, comprising a wood and glass room beneath an elongated roof. Vertical wooden side walls provide privacy, while the glass façade opens completely onto the garden.
Cross-laminated timber was used for its reconstruction. The new structure is ecological, airtight, and thermally efficient. It features two brick columns that echo the aesthetic of the original façade, and the foundations were adapted to protect the roots of a preserved birch tree.

House under the poplars by OFIS arhitekti. Photograph by Tomaž Gregorič.
Project description by OFIS arhitekti
House Under the Poplars — Reframing a Murgle Archetype
The House under the Poplars sits within Naselje Murgle, one of the most influential residential experiments of post-war Slovenia. Designed by architects Ivan and Marta Ivanšek and built in self-construction phases between 1965 and 1982, Murgle became a quietly radical model of ecological, human-scaled living long before sustainability became a discipline. The settlement’s identity is defined not by signature architecture but by its collective low-tech intelligence: timber houses raised on simple strip foundations in marshland soil, ventilated roofs, porous street edges, and a planning logic guided by the geometry of existing trees. The whole neighborhood is in fact an imported Nordic ethic — the architects absorbed Scandinavian thinking during their time in Sweden, then reinterpreted it for Ljubljana’s climate, culture, and materials.
Today, Murgle’s greatest challenge is its greatest value: how to renovate a settlement built by private owners, each constructing their own house from uniform urbanistic plans, without erasing the ecological and social DNA that made it exceptional? The project becomes a test case for the future of the neighborhood — a demonstration that renewal can upgrade performance while protecting the fragile architectural consistency that keeps Murgle one of the most desirable places to live.
Reconstruction as Continuity, Not Replacement
The House under the Poplars originally stood as the final unit in a row of atrium houses, slightly detached and opening toward a park. This peripheral position created the only legitimate opportunity to extend the archetypally compact Murgle floor plan. Yet the original structure was unsalvageable: its façade boards and roof tiles were made of asbestos, and the timber shell no longer met contemporary requirements.
The architects therefore took a decisive but culturally sensitive step: the house was carefully dismantled and rebuilt using cross-laminated timber, preserving the exact volumetric logic, proportions, and characteristic minimalism of the 1980s Ivanšek typology. The new structure is ecological, airtight, and thermally robust — but its architectural presence remains purposefully discreet. The aim was not to redesign Murgle, but to repair a fragment of it without visually disturbing the whole.
The house now meets high contemporary standards while retaining the modesty, clarity, and human scale that define the settlement’s identity.
A Contemporary Addition Guided by Original Principles
Because the western side faces a park, the extension could adopt a more open, experimental language — but always anchored in the original spirit. The new volume is conceived as a light greenhouse-like pavilion: a timber-and-glass room under an elongated roof that links old and new into a single silhouette.
Two brick columns, identical to those of the original façade, act as anchors — a subtle signal that the extension belongs to the Murgle tradition. The vertical timber sidewalls create shelter and privacy, while the transparent façade opens fully toward the garden. A mature birch tree, one of the key identity markers of the site, was preserved; the foundation was adapted to protect its roots, continuing Murgle’s original “design with trees” philosophy.
The resulting space functions both as a living extension and as a mediating climate zone — a contemporary reinterpretation of the low-tech environmental logic that made the original Murgle houses so successful.
A Prototype for the Future of Murgle
This project is intentionally more than a private renovation. It proposes a broader approach:
•Respect the archetype rather than overwrite it.
•Use ecological contemporary construction where the old structures cannot meet today’s standards.
•Preserve trees and landscape geometry as the primary design drivers.
•Allow contemporary expression only in secondary volumes, not in the main silhouette.
•Maintain simplicity, modesty, and human scale as non-negotiable principles.
Murgle is a rare modern settlement where architecture, landscape, and everyday life form a coherent whole. The House under the Poplars demonstrates that the neighbourhood can be renewed — not by copying the past, but by reinforcing its essential values and translating them into contemporary ecological practice.