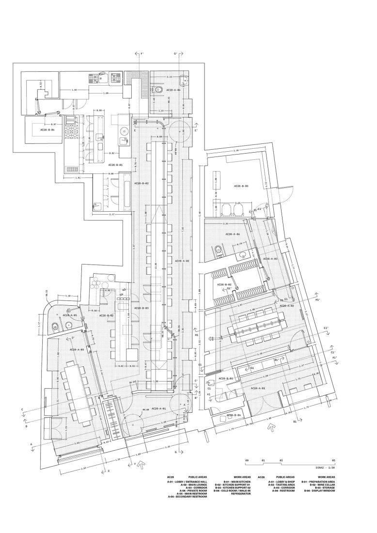
The architecture practice yyplusplus has divided the "SDD1" Meat Processing Room into two adjoining spaces: the main gastronomic concept at 28 Alonso Cano Street and the Product Foundation at number 26 on the same street. This expansion preserves and expands the brand's tradition, maintaining the restaurant and including a shop, exhibition gallery, and meeting point.
The design highlights the origins of the establishment while integrating contemporary design strategies within an aesthetic that incorporates industrial touches, resulting in a sophisticated space where the gastronomic product takes center stage.

"Sala de Despiece SDD1" by yyplusplus. Photograph by Enanei.
Project description by yyplusplus
Following the opening of "SALA CERO" in 2024, "Sala de Despiece" relocated its original venue in 2025 to C/Alonso Cano 28. yyplusplus was commissioned to articulate this moment of transformation, developing an architectural identity that mediates between the origins of "Sala de Despiece" and its contemporary evolution.
Conceived as a continuity rather than a rupture, AC28 draws from the identity forged in Ponzano while weaving it together with the material language introduced in Sala Cero, bringing together past references and current design strategies.
"SDD" Alonso Cano comprises two adjoining spaces: the ongoing restaurant concept, "SDD1," now moved to AC28 and "Fundación del Producto" (FDD) AT AC26.
Unit 28 is a dining space that preserves the tradition of "Sala de Despiece" in Madrid, redefining its spatial identity at the intersection between the first and the latest of their restaurants. The project pays tribute to the origins of "SDD" while simultaneously establishing a clear link with its new chapter, "Sala Cero," also designed by yyplusplus.
Unit 26 was conceived from the need to create a space focused on gastronomic products and the people behind them. It operates as a shop, showcase, and meeting space where producers present, share, and enhance the value of their work through tastings, talks, and educational experiences.