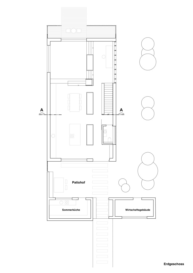
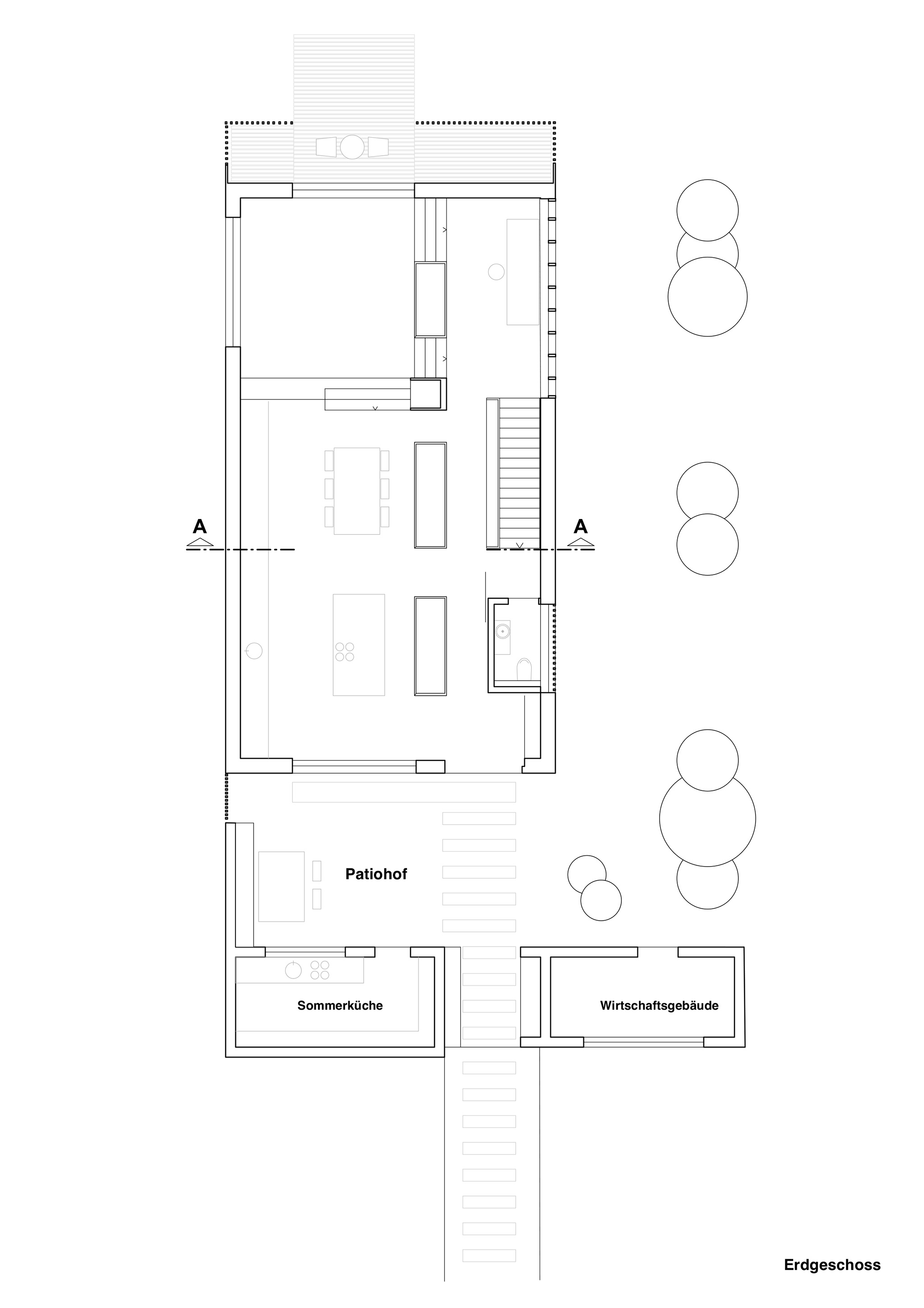
"JES House," designed by Rommel, Wagenpfeil Architekten, organizes the program across two floors, combining work and living spaces. The ground floor houses the kitchen, dining room, and living room, characterized by a double-height ceiling and large windows that open to the exterior. The upper level contains the private areas and workspaces. On the southern side of the plot, framing the entrance area, is an additional single-story transverse wing, which houses a service area and a summer kitchen that opens onto the front patio.
For the construction of the house, durable and easy-to-maintain materials were chosen, including exposed concrete walls, natural rubber flooring, and wooden windows. The facade employs a Japanese fire charring technique on the wooden slats to create a permanently resistant surface with a flamed, black appearance.

JES House by Rommel, Wagenpfeil Architekten. Photograph by Zooey Braun.
Project description by Rommel, Wagenpfeil Architekten
JES House
The couple had the opportunity to build on an existing vacant lot within a well-established village. Considering the adjacent orchards, the guiding architectural concept was to construct a house that, like a barn, would blend into the verdant surroundings and connect respectfully with the charming landscape of the floodplain.
Due to the narrow width but considerable length of the plot, a classic, narrow communal house with a gabled roof was designed.
Given the property's southern orientation towards the street, the construction of an additional service building along the street created further zoning, resulting in a southern entrance courtyard inspired by Italian and Spanish patios, thus creating a higher-quality outdoor space. When selecting plants for the outdoor areas, bee- and insect-resistant trees were chosen, which exhibit high resistance to heat and drought and can therefore better withstand the increasingly warm summer months.
During the building's construction, the clients placed great importance on maximum recyclability and the naturalness of the materials, which is reflected both inside and out through exposed natural concrete surfaces, natural rubber flooring, and wooden windows with natural glass.
When selecting the material for the suspended and ventilated façade, made from local woods, a less common but long-standing finishing and preservation technique was employed for the wooden slats. The wooden slats were fire-charred and surface-treated following the traditional Japanese Yakisugi (or ShouSugiBan) process. The charred surface thus becomes permanently resistant to rot, insects, and fungi, without the need for chemicals or similar substances, and remains recyclable for decades and future generations. The resulting black appearance of the façade evokes an old barn and underscores the fundamental architectural concept. Like the refined elegance of a pinstriped suit, the minimalist form of the building is dressed.
Design and Use Concept
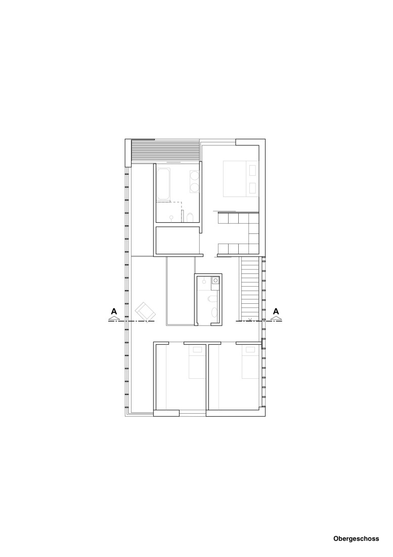
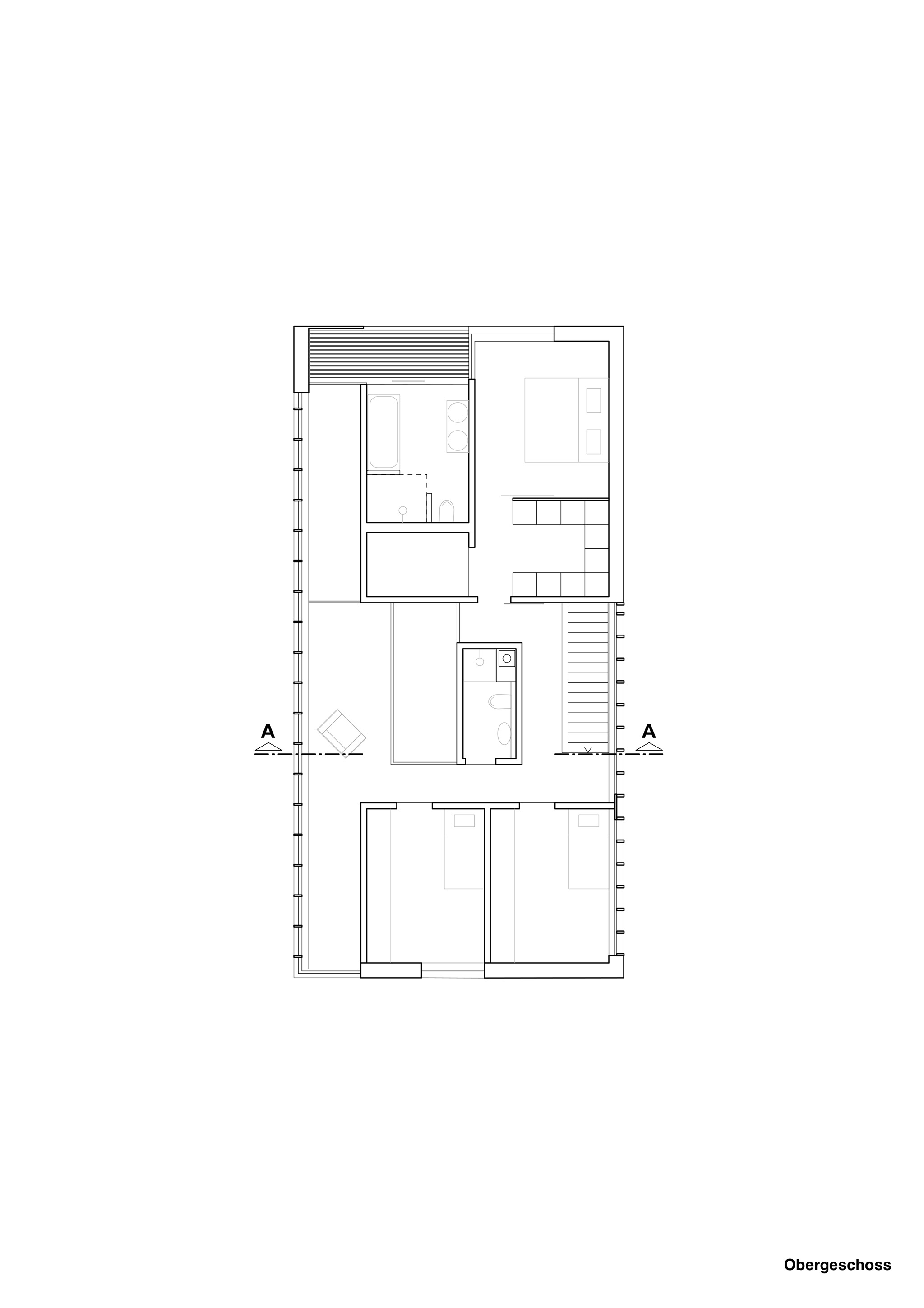
Conceived as a combined residence and workspace for the couple, the two-story, gabled building, designed as a communal house, integrates seamlessly with the existing space between the buildings. It is an interpretation of the classic regional barn.
From the south, a single-story transverse wing, serving as a service building and summer kitchen, leads to the front courtyard, and the building is accessed from the ground floor.
Lengthly, the kitchen, dining room, and living room, with their fluid layout, open onto the adjacent vegetable gardens. The feeling of spaciousness is enhanced by the large windows and open spaces that lead to the upper-floor galleries. The upper floor houses the work and private offices, as well as a work gallery.
Construction and Materials
- Maximum recyclability of materials according to the "Cradle-to-Cradle" principle. Minimal use of composite materials, allowing for maximum subsequent separation.
- Minimal use of chemical adhesives, paints, and similar products.
- Innovative Yakisugi carbonized facade (also known as ShouSugiBan).
- Predominant use of natural materials.
- Unplastered concrete to optimize CO2 absorption.
Technology
- Electric heat pump heating
- Photovoltaic system with electricity storage for self-consumption
Sustainability Aspects / Sustainable Construction
- Cradle-to-Cradle construction and design.
Resource Use
- High-quality, low-emission or emission-free materials.
- Minimal surface sealing thanks to open roofs in the exterior area.
- Use of wood (façade and windows) from sustainable regional forestry.
Energy Supply and Use
- Green facades for courtyard cooling.
- Battery storage for excess photovoltaic electricity.
- Energy efficiency standard 55.
- Use of renewable technology.
Comfort
- Summer cooling via heat pump.
- Underfloor heating/cooling with individual controls.
- Home automation system.
Microlocation: Building or Neighborhood Assessment
- Meticulous integration into the surrounding 1 or 2-story urban landscape.
- Direct access to bus lines and within walking distance of amenities Local.
Integration into the immediate environment
- The building was designed as an archetype of a gabled roof, with a very reduced and detailed design, limited to a few typological characteristics.
- This reduction to the essential is emphasized by the black flamed wood façade.
- The choice and conception of the materials lend the building, both inside and out, an elegance that develops from reduction and the interplay of surfaces.
- The south transverse wing and the interior courtyard define the building from the public space, through the semi-public courtyard, to the private rooms.
- In the landscape design, emphasis was placed on the use of native plants and materials that are insect-friendly.
Functionality and flexibility
The reduced structural load on the ground floor allows for flexible room layouts to adapt to changing needs.
Special features
By foregoing the garage and constructing the transverse wing as a service building with a small summer kitchen, it was possible to compensate for the unfavorable orientation of the plot and create a sunny and pleasant outdoor area thanks to a patio.