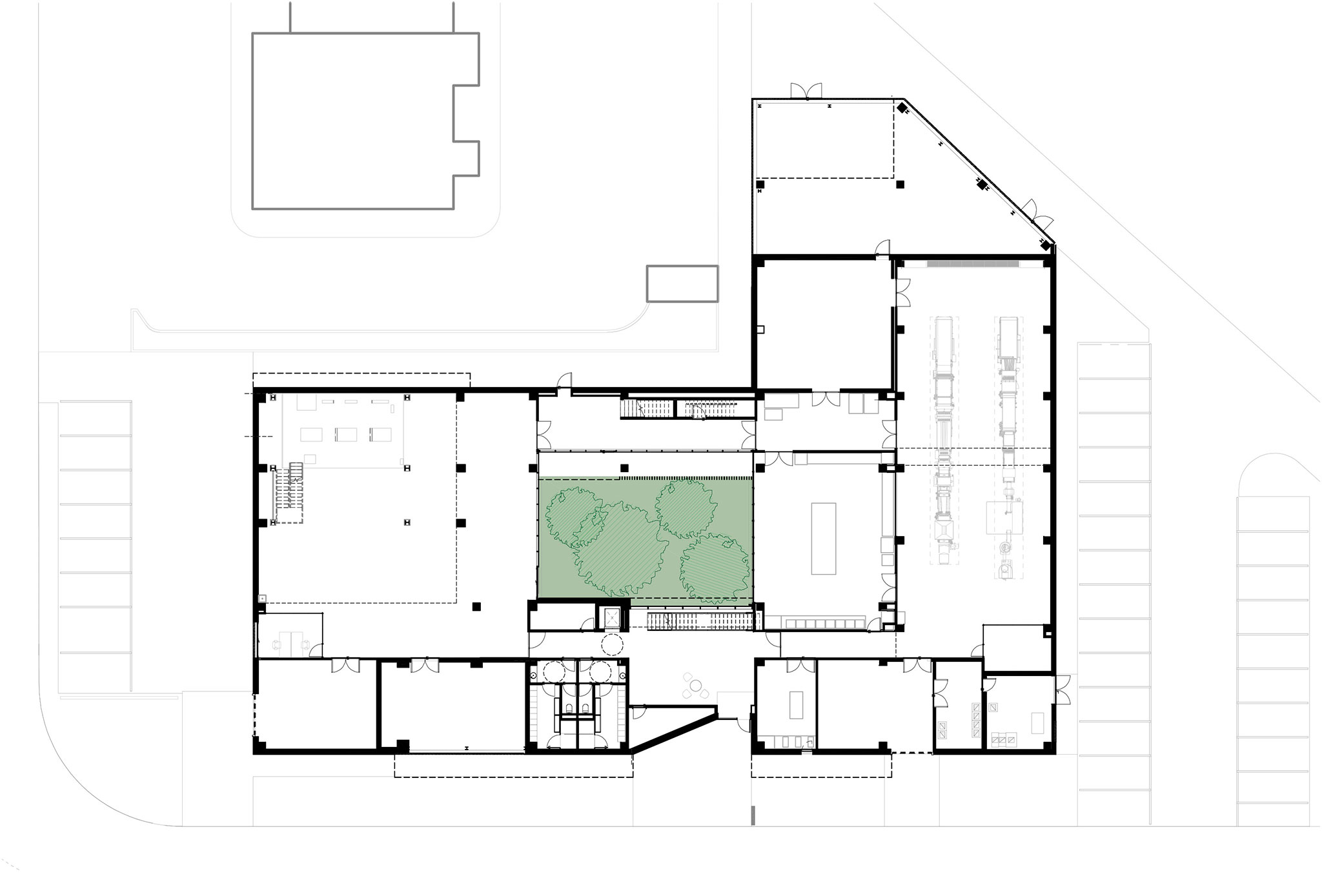
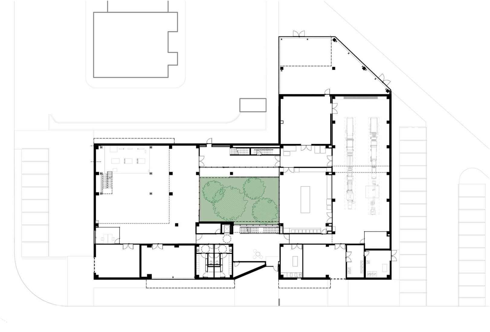
IDOM proposes for the Cereal Innovation Center featuring rectangular and cubic pieces connected by a central courtyard that serves as the functional and organizational hub. The ground floor houses the technical areas, workshops, and main entrances. The first floor contains laboratories, meeting rooms, and administrative offices.
To protect itself from the surrounding leisure environment, the building's façade is understated and opaque on the ground floor, while the first floor opens onto the cereal fields and surrounding hills. This metallic and white envelope symbolizes technological processes and food safety. It incorporates green roofs to mitigate solar heat gain, improve energy efficiency, and provide spaces for relaxation and interaction.

Cereal Innovation Center by IDOM. Photograph by Pedro Pegenaute.
Project description by IDOM
The Cereal Innovation Center is a facility promoted and managed by ESPIGA I+D, part of the Caja Rural de Navarra group, dedicated to applied research and technological development (R&D&I) across the entire cereal value chain. It is not a production center, but rather an innovation hub designed to strengthen the cereal processing sector through science, technology, specialized training, and collaboration.
The building presents a compact and clean appearance, characterized by rectangular and cubic volumes that project outward and interlock with one another. The façade is sober and solid, devoid of unnecessary decorative elements, conveying a functional and contemporary aesthetic. Located within a leisure-oriented industrial park, the building shelters itself from its immediate surroundings through opaque façades on the ground floor. On the first floor, openings and windows are oriented toward the surrounding cereal fields and nearby hills, avoiding direct exposure to the urban environment. Its white metal envelope symbolizes the technological processes and food-safety research carried out within.
The project is organized into a single two storey volume. The ground floor houses the technical areas and workshops dedicated to research and development, as well as the main entrances. The first floor accommodates laboratories, meeting rooms, and administrative offices. Both floors are arranged around a central landscaped courtyard that acts as the building’s functional and organizational core. On the ground floor, the building appears closed to the exterior except at the entry point. On the first floor, it opens in all directions, with large windows to the north and south that allow natural light, cross ventilation, and views toward the rural landscape.
The rectangular landscaped courtyard becomes the heart of the building. All interior spaces face this central void, which functions as a visual connector bringing natural light, ventilation, and a sense of openness and well being.
The project includes green roofs that help mitigate solar gain, improve energy efficiency, and provide high quality spaces for staff rest and social interaction. Together with the interior courtyard, these landscaped areas enhance environmental comfort and strengthen the visual connection with nature.
The exterior design reflects principles of energy efficiency and protection from the surrounding urban environment. Architecturally, the building incorporates passive energy saving strategies, such as a high level of thermal insulation and airtightness. South facing offices are protected from solar exposure by overhangs and vertical louvers. The courtyard windows are also fitted with louvers that regulate sunlight and airflow. With the exception of the laboratories, the building features sedum green roofs irrigated by an efficient drip irrigation system, also used in the landscaped areas of the surrounding development.
Climate control is provided through VRF aerothermal systems (variable refrigerant flow), offering high energy efficiency to meet the thermal needs of the different rooms and the production of domestic hot water.