ENOTA's proposal was selected from among fifteen international architecture firms from Europe, North America, and Asia. ENOTA also received an honourable mention for its proposal for the Western Gate Polycentric, the second site selected in the same international competition.
In addition to awarding first prize to the Slovenian firm, the competition jury also granted two honourable mentions to the proposals submitted by Studio Farris Architects from Belgium and LDA Design from the United Kingdom.
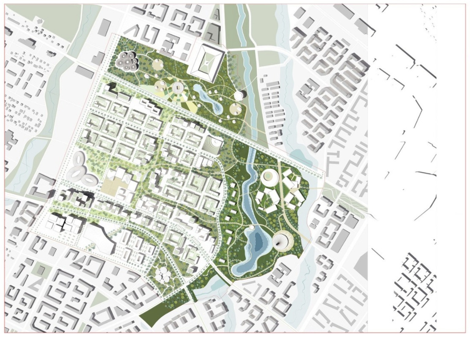
According to the jury, ENOTA's (Slovenia) winning proposal "delivers one of the most imaginative and coherent urban masterplans in the competition. A network of pedestrian arteries and promenades – each with a distinct identity – replaces the rigid grid, creating climate-responsive neighbourhoods rooted in landscape, culture, and long-term adaptability. The project stands out for its strong urban logic, connectivity, and exceptionally robust sustainability framework."
Aligned with sustainable urban development criteria, the proposal incorporates neighbourhoods integrated into the landscape through designs capable of adapting to the area's climatic variations.
As a vision for the future of Almaty's Eastern Gateway, the winning project stands out for its strong commitment to connectivity and accessibility, establishing a close dialogue between the mountainous landscape, the use of advanced green technologies, and contemporary urban life.

Almaty Eastern Gate Polycenter District by ENOTA. Rendering by Studio Spacer.
The jury awarded a commendation to Studio Farris Architects (Belgium) for proposing "a climate-responsive masterplan structured around ecological axes connected to the city’s existing green infrastructure. Linear parks, plazas, and hydrological landscapes shape a compact, walkable urban fabric aligned with Almaty’s strategic priorities, offering a resilient landscape- and water-based framework for future development."
And it awarded another commendation to LDA Design (UK) for presenting "a highly coherent, landscape-driven masterplan integrating ecological restoration, cultural identity, and a walkable urban structure. Organized around green–blue corridors, a diagonal park system, and a central civic landscape, the project creates a resilient and socially active district aligned with Almaty’s long-term growth strategy."