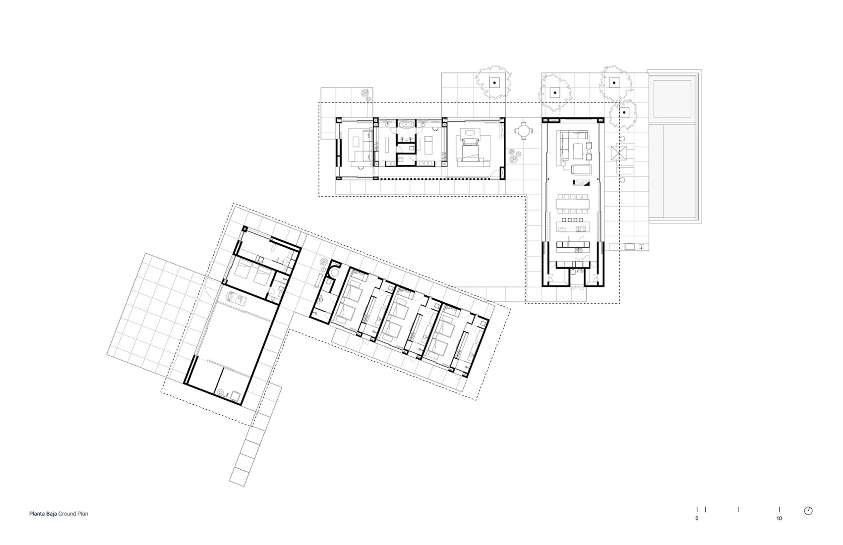
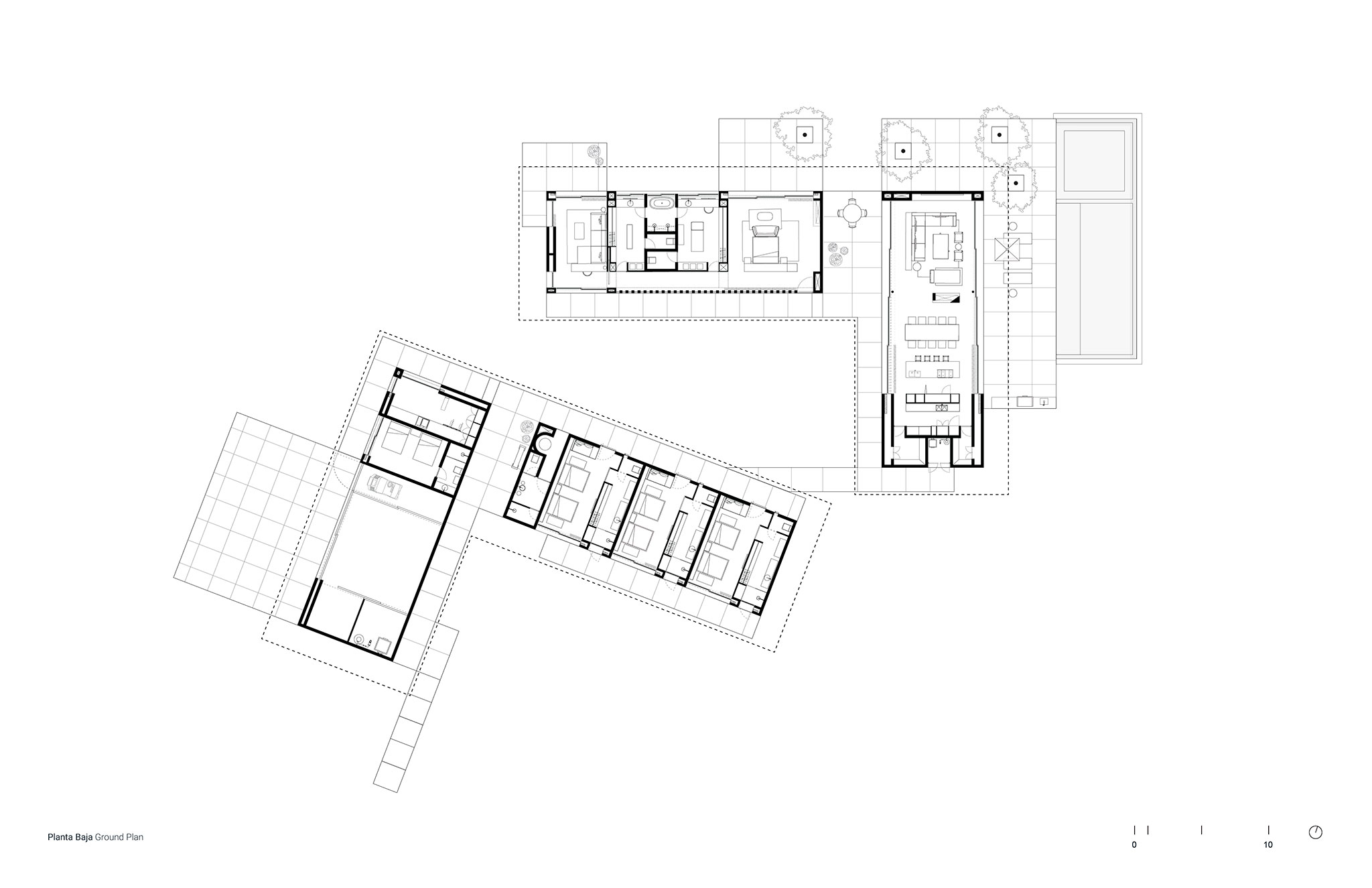
The "House in Palmilla," designed by Estudio IUAPdA, is organized into four independent volumes and a courtyard. Beneath the first roof are two volumes: the first houses the parking area, storage rooms, mechanical rooms, service areas, and laundry room; the second contains three guest bedrooms. Beneath the second roof, the third volume comprises the master suite, two separate dressing rooms, and a study. Finally, the fourth volume integrates the living room, dining room, and kitchen.
The central courtyard has four sides. The first opens toward the mountains, the second provides access to the secondary bedrooms, the third is constructed with a rhythm of 20 x 20 centimeter openings that grant privacy to the master suite, and the fourth corresponds to the large window in the social area.
In terms of its construction, the project presents itself as a monochromatic monolith of textured, sand-colored concrete, complemented and softened by woodwork and a structural laminated oak roof.

House in Palmilla by Estudio IUAPdA. Photograph by Ignacio Urquiza Luna Parra.
Project description by Estudio IUAPdA
Located in the hills of Los Cabos, the house responds to a careful reading of the climate and its surrounding context. A pair of lightweight roofs resolved in wood and clay organize the project. Their 2.1 meter deep perimeter over hangs extend around the different built elements, creating generous shadows over walls and glazing and ensuring appropriate thermal performance for the region.
The house is organized into four independent volumes arranged beneath two L-shaped roofs. Their non orthogonal configuration creates a central courtyard of trapezoidal geometry, a void that articulates the spatial layout. This courtyard is almost blind: of its four edges, the shortest remains unbuilt and opens toward the western mountains; another accommodates access to the secondary bedrooms; a third is defined by a rhythmic sequence of 20 × 20 centimeter apertures that provide privacy for the main suite while filtering soft daylight into its interior; the final edge corresponds to the large glazed opening of the social area, the only space that opens directly onto this gravel garden at the center of the house.
Each of the four volumes contains a distinct program. The first contains the service areas: parking, storage rooms, mechanical spaces, service quarters, and laundry. Beneath the same roof, a second block contains the vanity area and three identical guest bedrooms. Within it, a freestanding wooden element detached from the roof plane defines the guest bathroom and dressing area, reinforcing a sense of continuity and spatial openness.
Beneath the second L-shaped roof, the third volume develops as the main suite, accompanied by two independent walk-in closets and a study that, depending on the use of the house, can function as a family room or as a private extension of the suite.
The sequence concludes with a fourth volume that brings together the core living spaces: the living room, dining area, and open kitchen. Two 12 meter long glazed openings along its longitudinal façades transform this space into a covered terrace, linking the central courtyard with the main terrace, the swimming pool, and the horizon of the Sea of San José.
The separation of the project into two primary wings allows the house to adapt to different modes of occupation. It can function as a single bedroom residence and, when required, activate the second L-shaped wing to increase capacity. The placement of each element responds to both the relationship between program and orientation and the pursuit of cross ventilation. Material choices, in dialogue with the projected shadows, ensure that surfaces remain cool to the touch. Defined by a neutral material palette, the house reads as a monochromatic monolith of sand colored textured concrete, softened by carpentry elements and a structural laminated oak roof.
Furnishings and decoration are consistently integrated into the architecture. Their textures, colors, textiles, and materials —together with the endemic, long-established landscape of the surroundings—naturally accompany the experience of inhabiting the house.