Atelier Tišnovka presents an architectural intervention on the old monastery in the city of Třebíč- Jejkov in the Czech Republic. A series of publications of the Capuchin order, where architects substitute unused spaces to make way for new educational functions.

From the street, the approach to the building is perceived through the perimeter wall that at the access changes into a new wall in tension with a subtle railing that accompanies us to the access platform of the new building. A first terraced space adjoining an open classroom generated for student recess located between the historic building and the new pavilion.
Using the proportional basic archetype of the old monastery, Atelier Tišnovka gives a new architectural character. Maintaining the geometry, but distancing itself from its formal aspect, by having a glazed unifying element that contains the elevator and, at the same time, generates a spatial tension between buildings from different periods.

With a traditional structure combined with walls composed of ceramic blocks, pillars and concrete roofs, the architects manage to interrupt the spatial and material sequence. Leaving the traces of time in old buildings as opposed to wooden floors, plaster walls and glassware that bathes the interior spaces with natural light.
 

Project description by Atelier Tišnovka

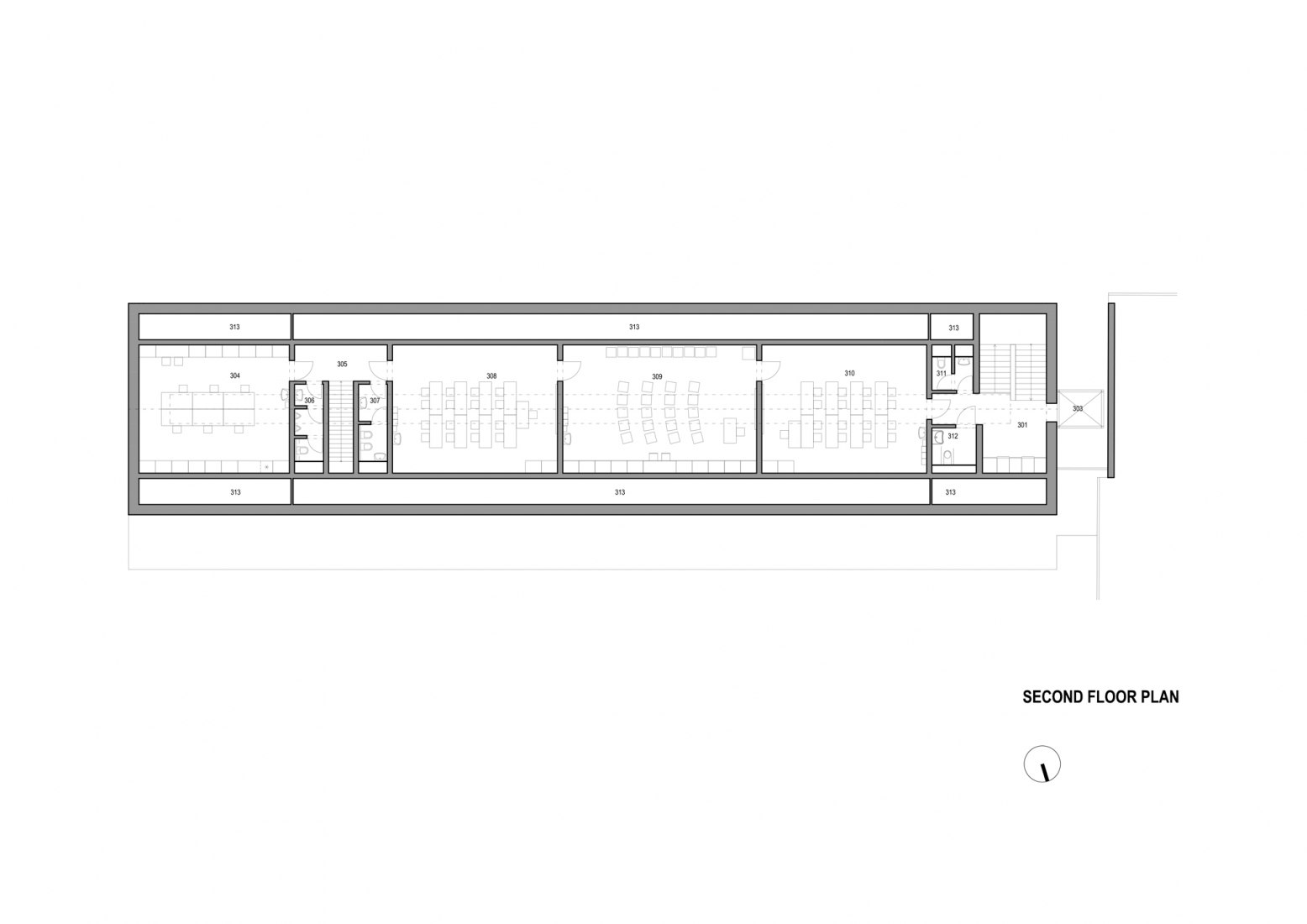
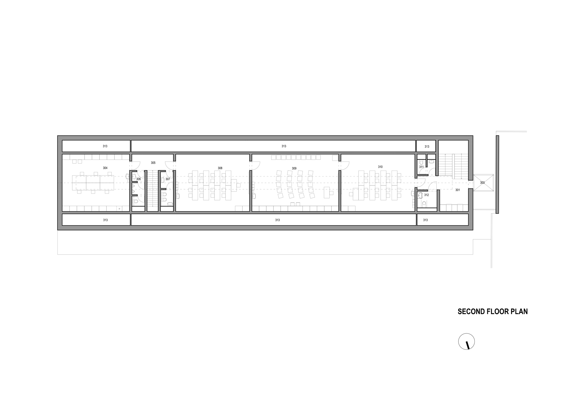
The Extension of the gymnasium is an architectural intervention into the existing school complex, which is located in the former Capuchin monastery in Třebíč- Jejkov. The new building replaced the one-storey temporary building from the totalitarian era.

On the south side, the extension follows the direction of neighborhooding monastery buildings; on the north side, it creates an inner courtyard for relaxation of students in a connection to the outdoor classroom. Two-part layout scheme opens on ground floor through a glazed recess hall into the courtyard, on the first floor the corridor is oriented to the opened terrace. Classrooms, laboratories and teacher’s offices are organized according to the specific requirements of the school.

Architecture is articulated as a basic follow-up archetypal shape, which integrates the basic proportion features of the historical buildings of the monastery, but at the same time it consistently works with contemporary expression means, setting the building into timeline. The time difference with regard to the historical part of the school is emphasized by the glazed gap with integrated transparent construction of the elevator.

Construction and technologies

Construction uses the combined system of load bearing walls made of ceramic blocks, reinforced concrete columns and ceilings. The selection of the used materials is based on the conceptual two-dimensional proportion of proposal: they dispose the temporary character, and at the same time they integrate potential of dialogue with the place.

Materials used in the exterior are: light limestone plaster on the corpus of the house, cembrit boards on the roof, scrubbed terrazzo on plinth, aluminum windows and gray polished steel on locksmith elements. Stone walls, leveling the terrain differences, are made of layered gneiss. Materials used in the interior are light edged terrazzo in the hallways and oak parquet floors in the classrooms and teachers ‘offices. The doors, the view-throughs into classrooms and built-in furniture are made of maple wood.

Read more
Read less

More information

Label
Architects
Text
Atelier Tišnovka. Principal architects.- Miloš Klement, Petr Todorov.
+ + copy Created with Sketch.
- + copy Created with Sketch.
Label
Project team
Text
Architects.- Eva Kovářová, Inka Matoušková, Eliška Zobačová.
Statics.- Václav Přikryl.
Vegetation.- Eva Wágnerová.
+ + copy Created with Sketch.
- + copy Created with Sketch.
Label
Client
Text
Episcopate of Brno.
+ + copy Created with Sketch.
- + copy Created with Sketch.
Label
Area
Text
Built-up area.- 598 m² .
Gross floor area.- 1516 m².
Usable floor area.- 942 m².
Site size.- 1800 m².
+ + copy Created with Sketch.
- + copy Created with Sketch.
Label
Dates
Text
Project year.- 2017.
Completion year.- 2019.
+ + copy Created with Sketch.
- + copy Created with Sketch.
Label
Manufacturers
Text
Roof light well.- Schüco.
Windows.- Schüco.
Ceramics tiling.- Rako.
Terrazzo plates.- Burget terrazzo products.
Locksmith products.- Atypical, Nejez, Komarovová locksmithery.
Joinery(cabinetwork).- Atypical, Brtník joinery (cabinetwork).
Elevator.- Kone.
Integrated blackboards.-AV Média.
Furniture.- Atypical, Nuvia.
+ + copy Created with Sketch.
- + copy Created with Sketch.
Label
Location
Text
Otmarova 30/22, 674 01 Třebíč, Czech Republic.
+ + copy Created with Sketch.
- + copy Created with Sketch.
Label
Photography
+ + copy Created with Sketch.
- + copy Created with Sketch.
Atelier Tišnovka was established in 1992 by five architects from Brno, who have been working together almost in the same composition up to the present: Ing. arch. Vladimír Čuhel, Ing. arch. Miloš Klement, Ing. Mojmír Kopecký, Ing. arch. Michal Říčný, Ing. arch. Petr Todorov. The conceptual work of the studio is based on opinion affinity and similar professional approaches of individual architects. The significant unifying viewpoint of joint work is the respect for the fundamental values of European material culture, for the context of the location of the building and also an effort of compact philosophy of architectural creation, built on moderation and sobriety.

The studio focuses on designing and planning of residential and public buildings, industrial buildings, interiors and urban planning. A significant specialization is designing reconstructions of historical buildings. The office provides all levels of project documentation, including author’s supervision, as well as the overall discussion of the work with an overlap to engineering activities.
Read more
Published on: June 2, 2020
Cite:
metalocus, AGUSTÍN GAMARRA
"New educational imagery for an old monastery. Extension of the Catholic Gymnasium in Třebíč by Atelier Tišnovka" METALOCUS. Accessed
<https://www.metalocus.es/en/news/new-educational-imagery-old-monastery-extension-catholic-gymnasium-trebic-atelier-tisnovka> ISSN 1139-6415
Loading content ...
Loading content ...
Loading content ...
Loading content ...
Loading content ...
Loading content ...
Loading content ...
Loading content ...
Loading content ...
Loading content ...
Loading content ...
Loading content ...
Loading content ...
Loading content ...
Loading content ...
Loading content ...
Loading content ...
Loading content ...
Loading content ...
Loading content ...
Loading content ...
Loading content ...
Loading content ...
Loading content ...
Loading content ...
Loading content ...
Loading content ...
Loading content ...
Loading content ...
Loading content ...
Loading content ...
Loading content ...
Loading content ...
Loading content ...
Loading content ...
Loading content ...
Loading content ...
Loading content ...
Loading content ...
Loading content ...
Loading content ...
Loading content ...
Loading content ...
Loading content ...
Loading content ...
Loading content ...
Loading content ...
Loading content ...
Loading content ...
Loading content ...
Loading content ...
Loading content ...
Loading content ...
Loading content ...