In late 2017, the Tselinny Center of Contemporary Culture, an unprecedented international platform for Kazakh and Central Asian art and artists, took stewardship of the building, and Asif Khan Studio began work on the project following the completion of the UK Pavilion at Expo 2017 in Astana. Asif Khan collaborated closely with Kazakh architect Zaure Aitayeva — then Chief Architect of Expo 2017, who later became his partner in life, lead architect of the project, and today co-director of his studio.
The renovation by Asif Khan encompasses nearly 6,000 square metres of renovated space, alongside 6,000 sqm of landscaping, at the heart of Almaty’s "golden square", representing a reimagining of one of the city’s most iconic Soviet-era structures.
“Instead of an entrance, there is a cloud-like threshold, softening the rigidity and control of the Soviet concrete frame. Its form recalls the moment of my first visit to Almaty, when I saw a cloud hovering over the steppe. I believe this cloud was an incarnation of the ancient Kazakh god Tengri waiting to return to Earth, to Umai.
The entrance now holds this cloud permanently as an almost formless, dissolving threshold through which people enter. Conceptually, to arrive at Tselinny today is to pass between Tengri and Umai — male and female forces — sky meeting earth — and to receive ancient energies for life and for art.”
Asif Khan

Tselinny Center of Contemporary Culture by Asif Khan. Photograph by Laurian Ghinitoiu.

Tselinny Center of Contemporary Culture by Asif Khan. Photograph by Laurian Ghinitoiu.
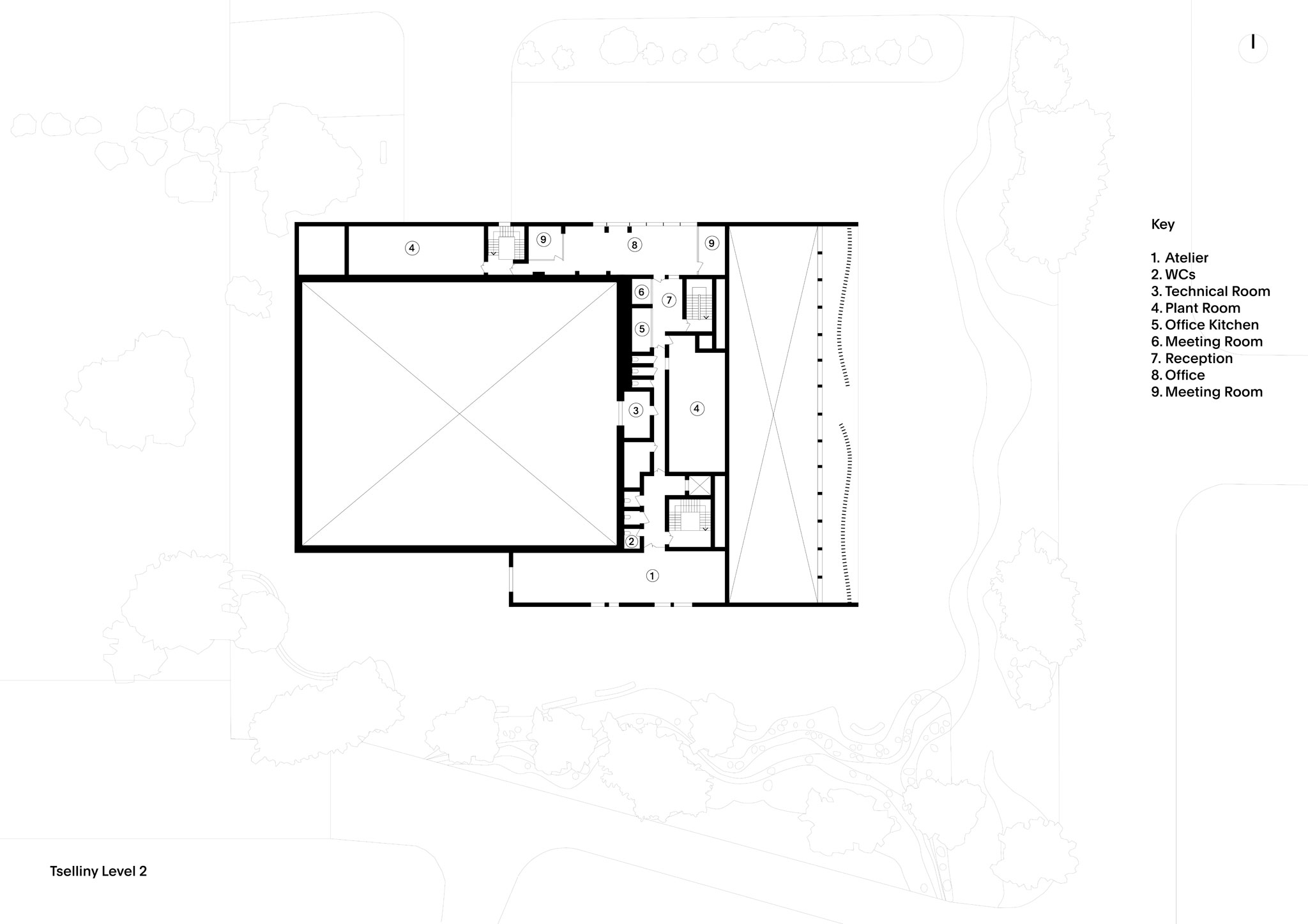
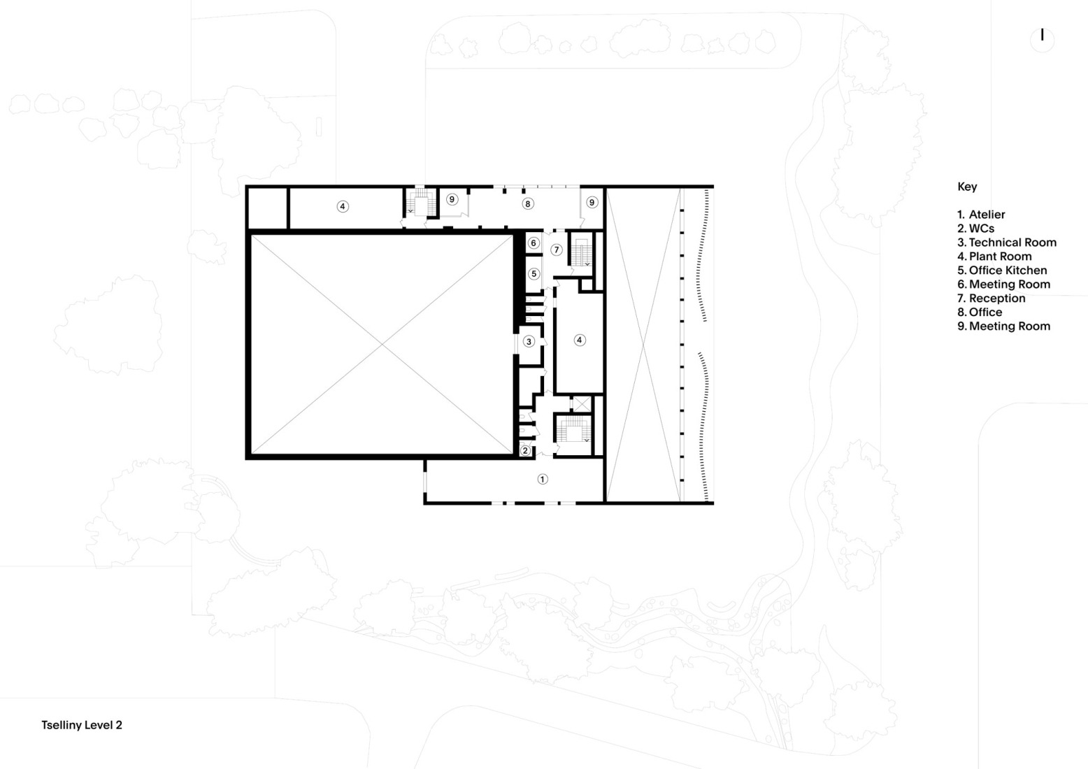
The new Tselinny Center, designed by Asif Khan, reinvents a journey of experiences and interactions around a vast auditorium with an interior height of 18 meters—once the largest cinema in the Soviet Union and now adaptable to multiple artistic formats—and large exhibition spaces, transformable galleries with an open café.
The monumental character of the building was preserved through exposed concrete and natural lighting, introduced by a band of steel and glass that connects the interior and exterior. The final result combines historical elements—such as Sidorkin's sgraffiti—with new abstract interventions and a visual language inspired by memory and Kazakh ornamentation. The interior spaces and the surrounding landscape are integrated, creating an accessible and open environment that connects the auditorium with the city, the park, and the cathedral, establishing a new cultural landmark in Almaty.

Tselinny Center of Contemporary Culture by Asif Khan. Photograph by Laurian Ghinitoiu.

Tselinny Center of Contemporary Culture by Asif Khan. Photograph by Laurian Ghinitoiu.
The lobby and wings were reconstructed to ensure seismic safety, eliminating interior levels and steps to create a continuous plane. The original auditorium was structurally reinforced, preserving walls and a roof, and the ceiling and walls were soundproofed. The original sgraffito was restored, removing intrusive interventions and restoring its tonal articulation. The new facilities include workshops, offices, a café, technical spaces, and a basement with services and multipurpose rooms. The façade incorporates an abstract cloudscape, while the interiors use pigmented concrete, stone, and landscaping elements that connect the building with the natural surroundings.
