The design proposed by Pedevilla Architects is the result of an ongoing dialogue with the local community, employing local materials and techniques that create a clear and defined exterior image alongside a warm and welcoming interior. Thanks to its mixed-use programme, the centre becomes a social meeting place for the community.
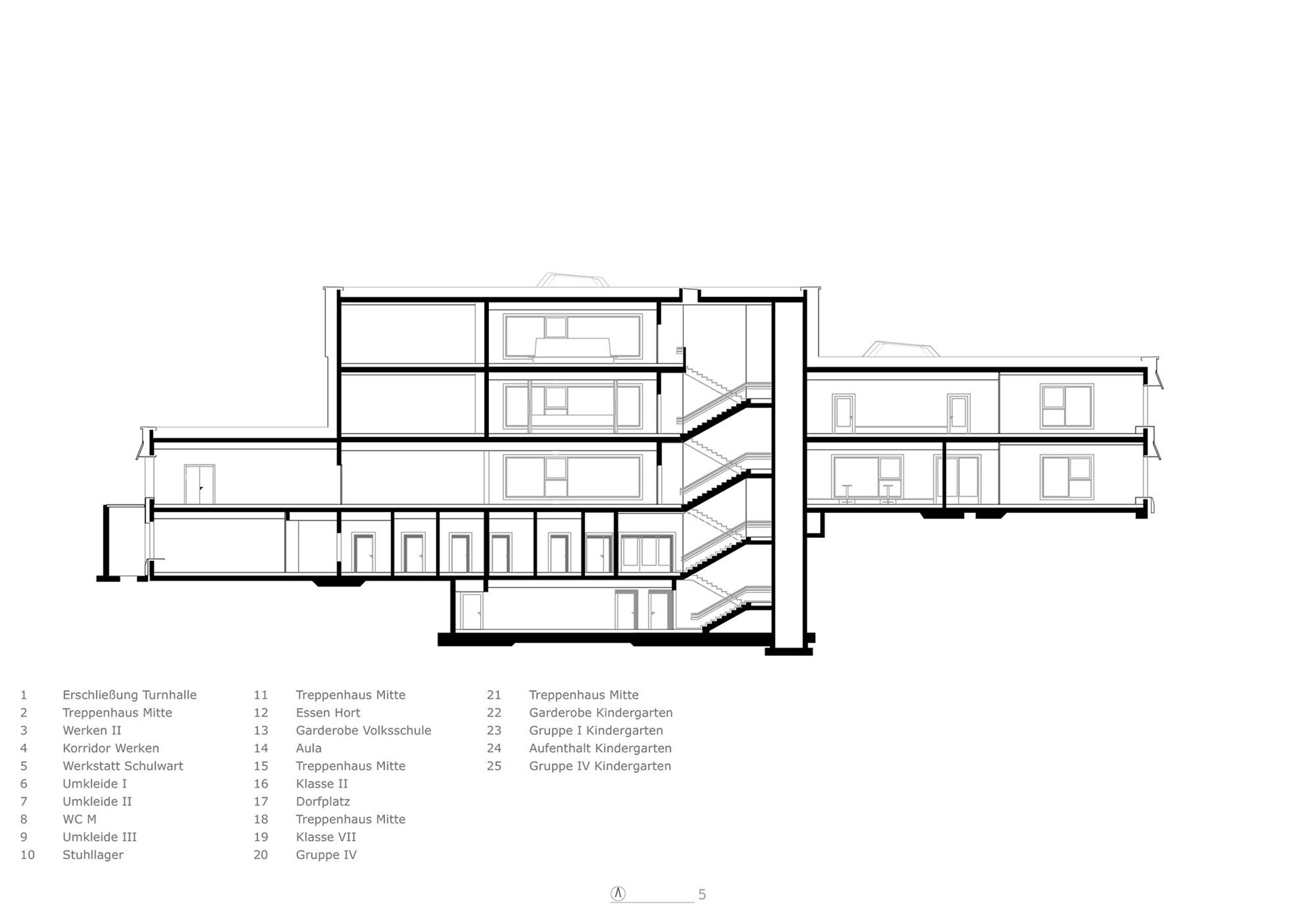
The building introduces a gradation of heights that reduces its perceived scale, allowing its five storeys to integrate gently with the sloping terrain while helping to embed its volume within the landscape and establish a dialogue with neighbouring buildings. For greater integration, the exterior colour palette is composed of dark green tones that blend easily with the surrounding vegetation, contrasting with a light-toned interior that emphasises the use of wood.

Educational Center Kössen by Pedevilla architects. Photograph by Gustav Willeit.
Project description by Pedevilla Architects
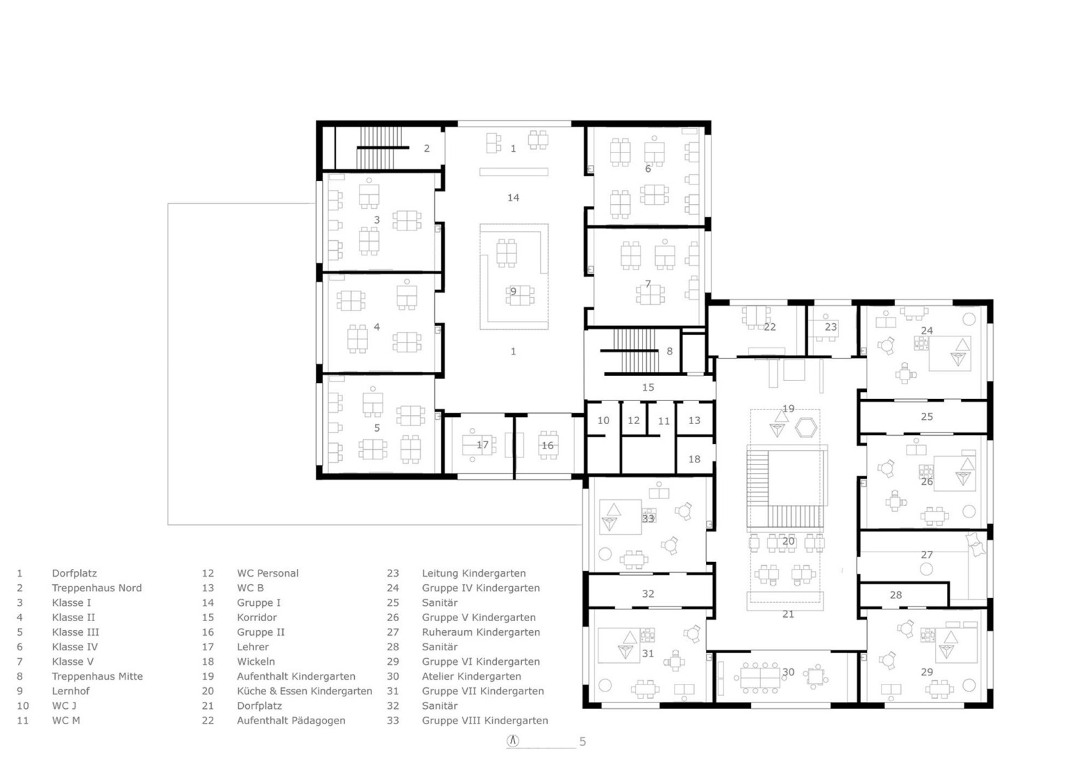
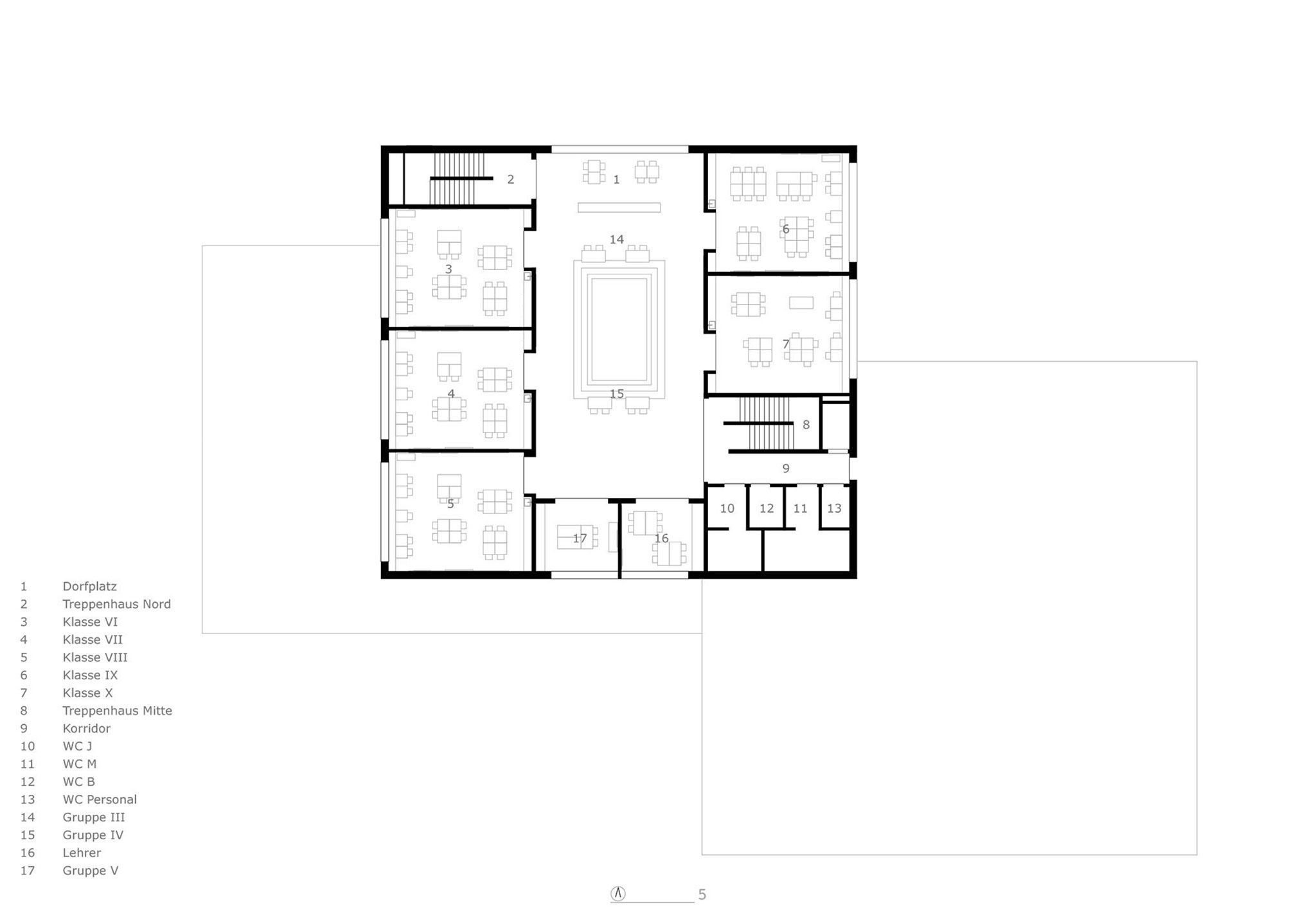
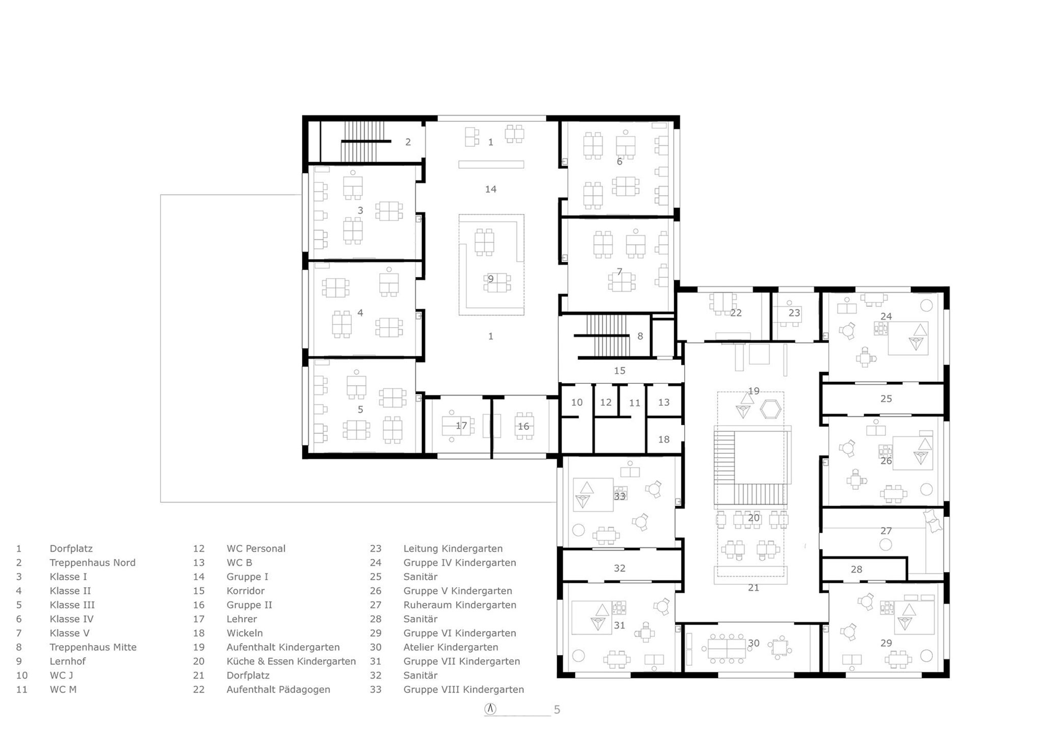
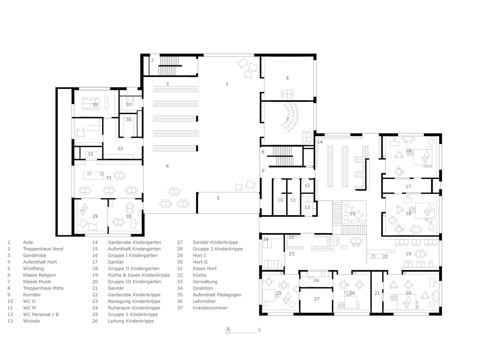
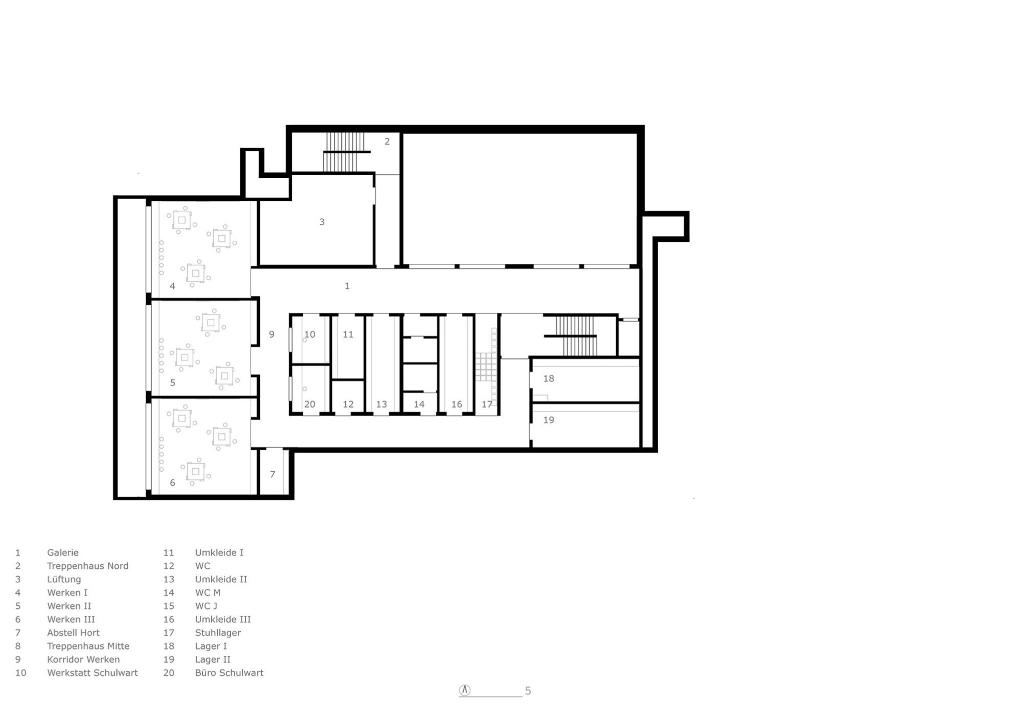
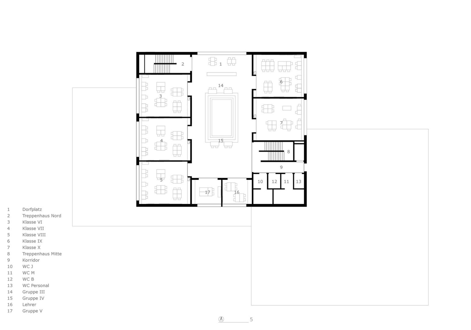
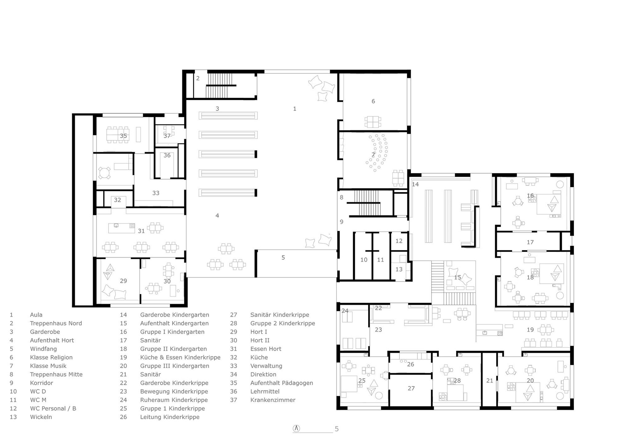
On the northern edge of Kössen's town center, nestled between the town hall, the church, and the local stage, stands the Kössen Educational Center. Here, the primary school, kindergarten, nursery, after-school activity center, and sports hall are all integrated under one roof. What might at first glance appear to be a purely functional complex is, in reality, a firm commitment to an educational environment that connects generations, where learning, playing, working, arriving, and staying are naturally intertwined. The educational center is conceived as a new heart on the edge of the town, a link between the public life of the center and the surrounding residential neighbourhoods.
The creation of this building is not a linear, closed-door process, but rather an ongoing dialogue between the site, the users, and the people who build it. The project's development is consciously planned as a sequence of phases, from conversations with users to the design and administrative procedures, and finally, the construction. Behind every milestone lie numerous exchanges, decisions, and the awareness that a building is being constructed here that will accompany the community for decades. The starting point is a look at what already exists: the traditional houses of the village and the farms of Kössen speak of a robust and serene way of building. These references are not simply adopted, but rather translated into a concept for the educational center: robustness and a connection to the outdoors; atmosphere and sensory experience within.
Like the large, solid rural houses, the educational center seeks to project a serene and natural presence into the urban landscape. The kindergarten, the school, and the after-school center each have their own entrance, all oriented towards a common, covered entrance area. The gradation of heights simultaneously structures the exterior spaces. Interior and exterior are not conceived as separate worlds: the spatial configuration becomes an open educational landscape. The building's colour palette is also closely linked to Kössen. The exterior envelope is designed to be both durable and resistant to everyday use. Inside, a distinct set of natural and regional materials is defined, deliberately allowed to age and mature naturally.
The Kössen Educational Center is much more than a functional infrastructure for teaching and care. It is conceived as an emotional space that accompanies both children and their families during the crucial early years of their lives.
A building that not only imparts knowledge but also strengthens emotions, social skills, and cultural identities—day after day, year after year.