The building designed by Martin Cenek replaces an old family home that had fallen into disrepair and been rebuilt multiple times. While the size and orientation of the plot where "Krč Terraced Twins" is located were favorable, the steep slope made access considerably difficult. In this context, one of the project's fundamental premises was to adjust the slope of the sidewalks along the property to ensure vehicular access from the road.
As a result, the complex presents itself as two sides of the same coin: one facing the city and the other facing the wooded hillside opposite. Toward the street, a white monolith intersects with a horizontal volume clad in aluminum sheeting, intended as a garage. Toward the landscape, a sequence of stepped terraces, facing south, incorporates planters and allows for unobstructed views of the natural horizon.

"Krč Terraced Twins" by Martin Cenek Architecture. Photograph by Martin Cenek.
Project description by Martin Cenek
The steep slopes of Prague's Krč district, rising from the Kunratický potok (brook) towards the north above today's south junction motorway, were still a hundred years ago the territory of vineyards belonging to a small village called Lower Krč and a few isolated farmsteads. In the first half of the 20th century, the vineyards were parcelled out for the construction of family houses and villas with gardens, but over time, a very diverse development emerged in the complicated terrain.
Typical for the area were pairs of plots on the slope below each other, the upper one accessible from the north, the lower one from the south. The second half of the 20th century brought the construction of apartment buildings of various types to the area, and the plot on which we were tasked with designing a new house was cut off from its southern access. This created an unusual situation in the area with a relatively deep plot with a height difference of over 10 metres, which was only accessible from one side. The new building replaced an older, dilapidated, and repeatedly rebuilt family house that stood in the upper part of the plot and had no car access from the street.
It was built at a time when the street level was different, but during later road modifications, the sidewalk along the property ended up more than 1.5 meters below the new street level, and the house thus had no driveway. Part of the project therefore involved adjusting the level of the sidewalks along the property so that they were level with the road and the surrounding area.
There are a number of distinctive houses in the area – perhaps the most interesting are a pair of brutalist terraced apartment buildings from the late 1960s and early 1970s, which respond to the steeply rising terrain and are located across the street from our building site. On the other hand, a group of apartment buildings from the 1970s and 1980s adjoins the southern side of the plot. We tried to reflect this architectural context in our design.
The main advantages of the plot were its size, abundance of vegetation, southern view of the forest-covered slope opposite, and favourable orientation. However, these were offset by complications – difficult access and a large elevation difference.
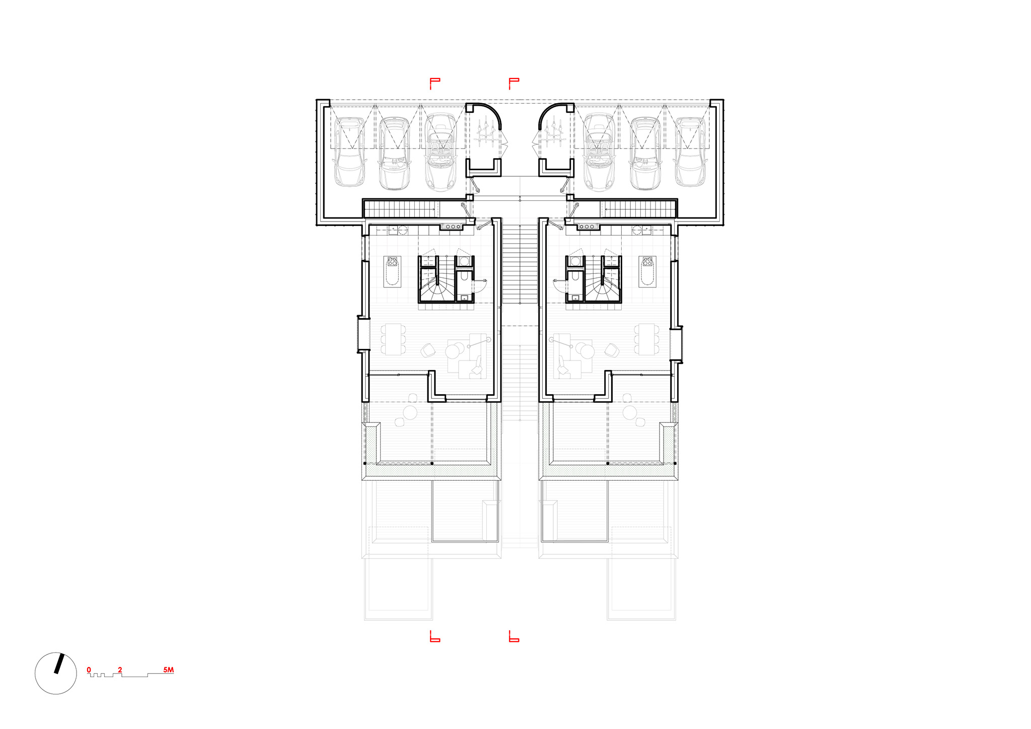
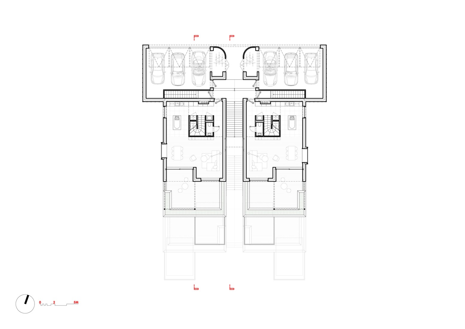
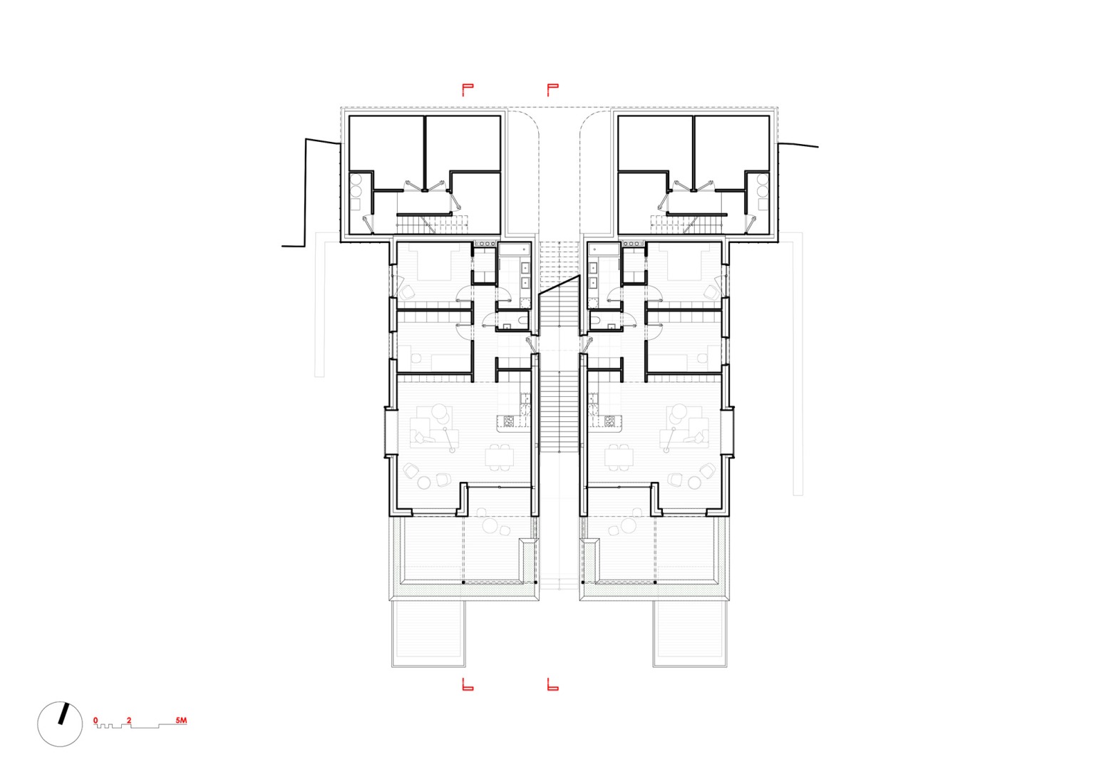
The resulting semi-detached house is characterized by south-facing terraces that allow for the planting of taller greenery around its perimeter. The mass is designed as a receding white block that follows the terrain. It is perforated by various types of square windows on the side facades composed according to views from the interior. At street level, this white monolith is intersected by a horizontal garage volume clad in natural aluminum sheet metal with standing seam. The building is single-storey with a sloping roof on the street side, responding to the immediately adjacent family houses and their building line and height. Down the slope, to the south, the building gradually expands, referring to the terraced apartment buildings above it.
The house thus has two faces – one to the city and one to the greenery. Our goal was to design homes surrounded by greenery on all floors of the building. Shaded terraces with built-in planters and essentially unobstructed views of the horizon or the green garden from the living rooms are the main motifs. With its simple materials and restrained colours, the building does not compete with the greenery.
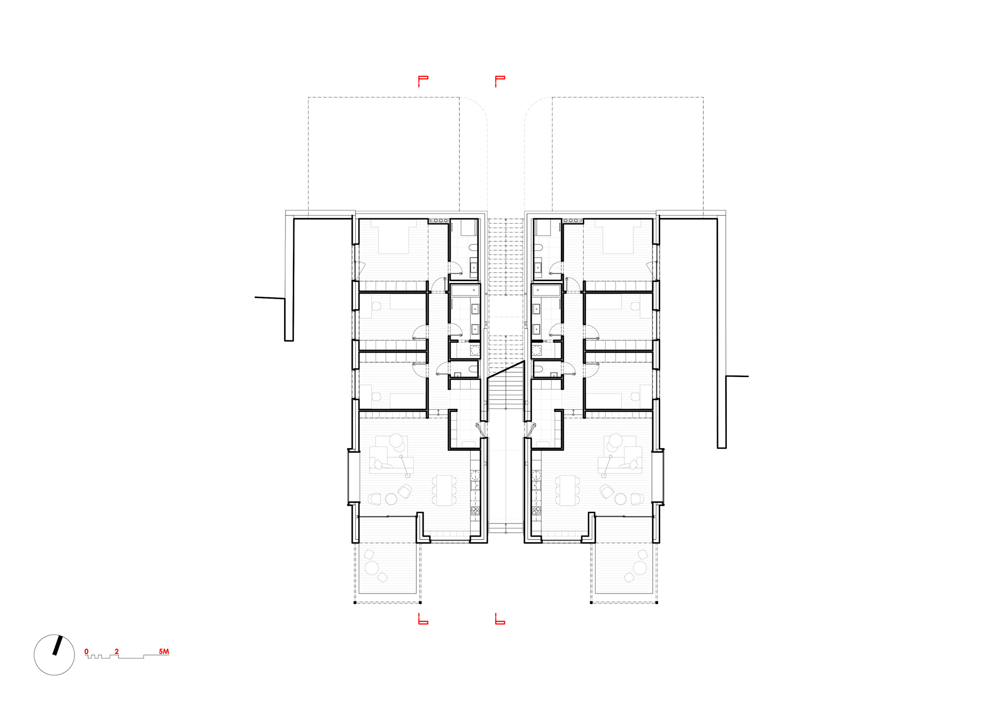
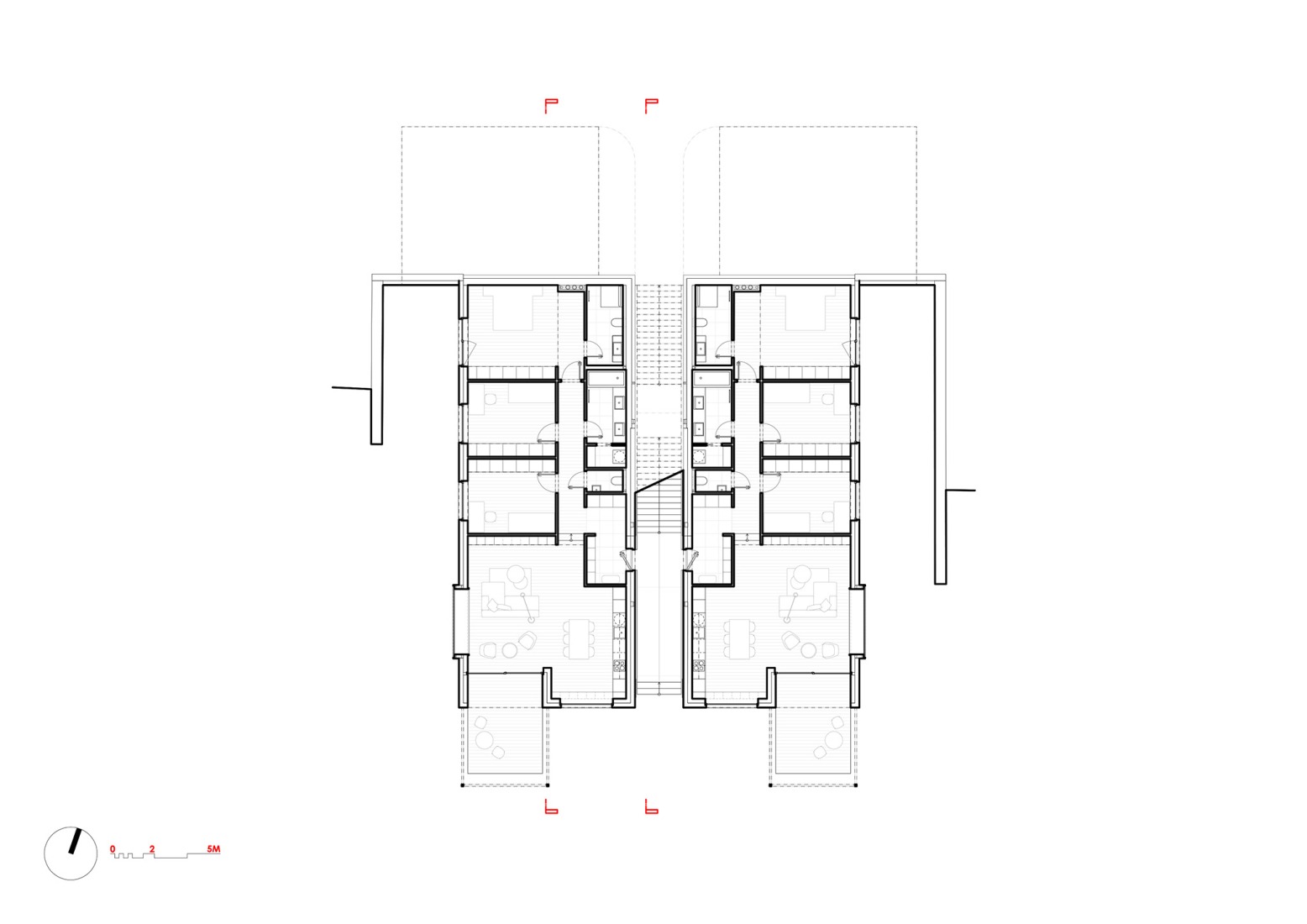
The entrances to the apartments are from an external staircase that intersects the house on the axis between the two sections and is partially covered by the volume of the attic. This distinctive slice through the building also connects the street and the garden, which is almost 8 metres lower. The layout was inspired by classic apartment villas: each of the two symmetrical houses contains three larger residential units (3-bedroom, 2-bedroom and a 3-bedroom duplex) with separate entrances and shared facilities with cellars, garages and bicycle storage rooms. The garden with a fireplace and mature greenery (both original and newly planted) is shared.
The built-in furniture brings a playful contrast to the monochromatic exterior with its use of color. Oak veneers are complemented by colorful lacquered surfaces. The terraces are shaded by pergolas with yellow canopies. In addition to access to the terraces and views of the greenery, the living rooms of all apartments also feature frameless windows with deep sills, which are also a distinctive element of the facades. The reinforced concrete of the monolithic ceiling slabs has been exposed in the living areas.
The building was designed to be nearly zero energy, with rainwater recycling, heat pumps and forced ventilation.