The new project, designed by NZI Architectes, comprises 1,765 m² of net residential space, including 6 "T1 bis" units with an average area of 33 m²; 21 "T1" units with an average area of 18 m²; and 56 "T1'" units with an average area of 21 m². On the ground floor, 5% of the units are adapted for people with reduced mobility.
The garage structure and steel trusses were preserved during construction. The west-facing building follows the volume of the existing structure and retains a completely renovated metal roof, while the building connected to the street was entirely rebuilt using CLT wood panels insulated with wood fiber.

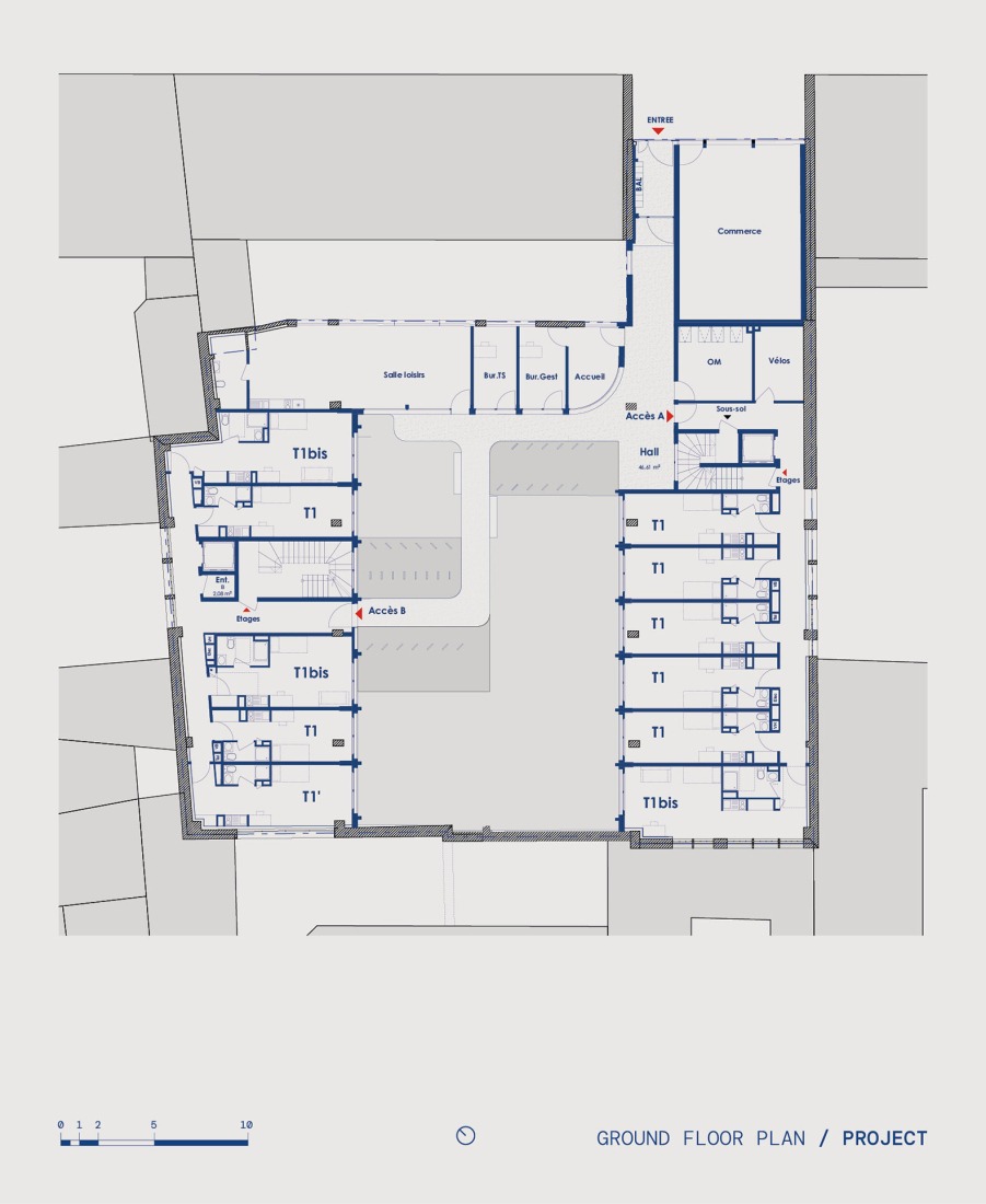
Conversion of a car park into a social housing residence by NZI Architectes. Photograph by Frédéric Delangle.
Project description by NZI Architectes
At 29 rue Nollet in Paris (17th arrondissement), for the Paris City Council (RIVP), the client, the architecture firm NZI Architectes (Sandra de Giorgio, Gianluca Gaudenzi), completed the conversion of an obsolete parking garage into 83 social housing units in December 2025. Built area: 2,450.1 m².
More specifically, within the former parking garage, NZI inserted two buildings, in addition to the structure facing the street, which house 83 studio apartments (T1 and T1 bis), common areas, and administrative offices to ensure the smooth operation of the residences, as well as an activity space on the ground floor. The entire project is organized around a landscaped courtyard with open-air circulation spaces.
Context
Located on the corner of rue Nollet and rue de la Condamine, the large plot originally comprised a street-accessible parking garage and a main building at the heart of the block. Dating from the 1930s, the complex was built following the site's boundaries, with four levels above ground and translucent openings providing natural light to the parking garage.
The first three levels, constructed of concrete, were in good condition, while the top two featured a steel frame with a generous ceiling height. The garage roof consisted of fiber cement panels, while the street-facing building was covered with tiles.
The plot is surrounded on all four sides by closely spaced neighboring buildings and borders eight co-owned properties with limited visual depth. On such a restricted site, new construction would have been highly restrictive, dictated by setback regulations, creating direct views of neighboring party walls and a predominantly north-facing orientation for many dwellings. Furthermore, complete demolition would have generated significant waste, dust, and disruption.
Conversely, despite its nearly century-long presence and heritage qualities—such as the artist-studio-style openings in the party walls—the building's solid structure was ideally suited to accommodate the proposed program.
Design Approach
The demolition of an entire structural bay along a north-south axis allowed for the creation of two distinct buildings and the introduction of direct sunlight into the heart of the block. This intervention enabled several apartments to benefit from southeast-facing light and facilitated the creation of a genuine ground-level garden with restored paving. Shared spaces, such as the recreation room, bicycle parking, and staff offices, are arranged around this garden, creating interfaces for communal living. All these spaces benefit from natural light.
The garage structure and steel trusses were preserved, maintaining the site's character, while the two new building volumes follow the structural logic of the existing structure. Set more than 14 meters apart and overlooking the new landscaped courtyard, they offer a high level of residential comfort.
This new north-south axis also opens up new visual corridors and, within a previously enclosed plot, provides neighboring buildings with deeper and more open views, especially since the project integrates seamlessly into the existing R+4 volume without adding height.
Program Integration on the Site
In the heart of the block, two buildings were created with ample space between them. The first, facing west, connects to the building facing the street and maintains the volumetric continuity of the existing structure. Its roof was completely renovated, replacing the tiles with a standing seam metal roof.
The building facing the street was entirely rebuilt using CLT wood panels (exterior walls, partitions, and load-bearing walls), insulated with wood fiber. All window frames are made of wood.
The layout of the apartments is simple, clear, and oriented east to west, with views of the courtyard. No apartment faces north.
Access and Circulation
The entrances to the residences and the activity space, both located directly on Rue Nollet, are clearly separated. The lobby, visually open to the heart of the block, reveals the depth of the plot from the street. The permeability of the circulation spaces towards the courtyard offers views of the ground floor garden, which visually connects with all the common areas. All circulation spaces benefit from natural light. The ground floor of the building, facing the street, acts as a catalyst for movement.
Access to the staff areas (offices) is separate from the public and resident access. The strategically located reception oversees the lobby and access to both buildings. The waste storage area is located next to the resident exits, as is the laundry room, which, considered a key shared space, also benefits from natural light. Finally, the common room is easily accessible from the lobby.
Each building has a naturally lit staircase and an elevator. The existing basement beneath the building with the street façade was renovated and now houses technical rooms, storage areas, and changing rooms. The project includes 6 T1 bis units (with an average area of 33 m²), 21 T1 units (with an average area of 18 m²) and 56 T1’ units (with an average area of 21 m²), for a total of 83 rooms and a net residential area of 1765 m², including 5% of units adapted for people with reduced mobility (PRM) on the ground floor, all within the envelope of the existing building.