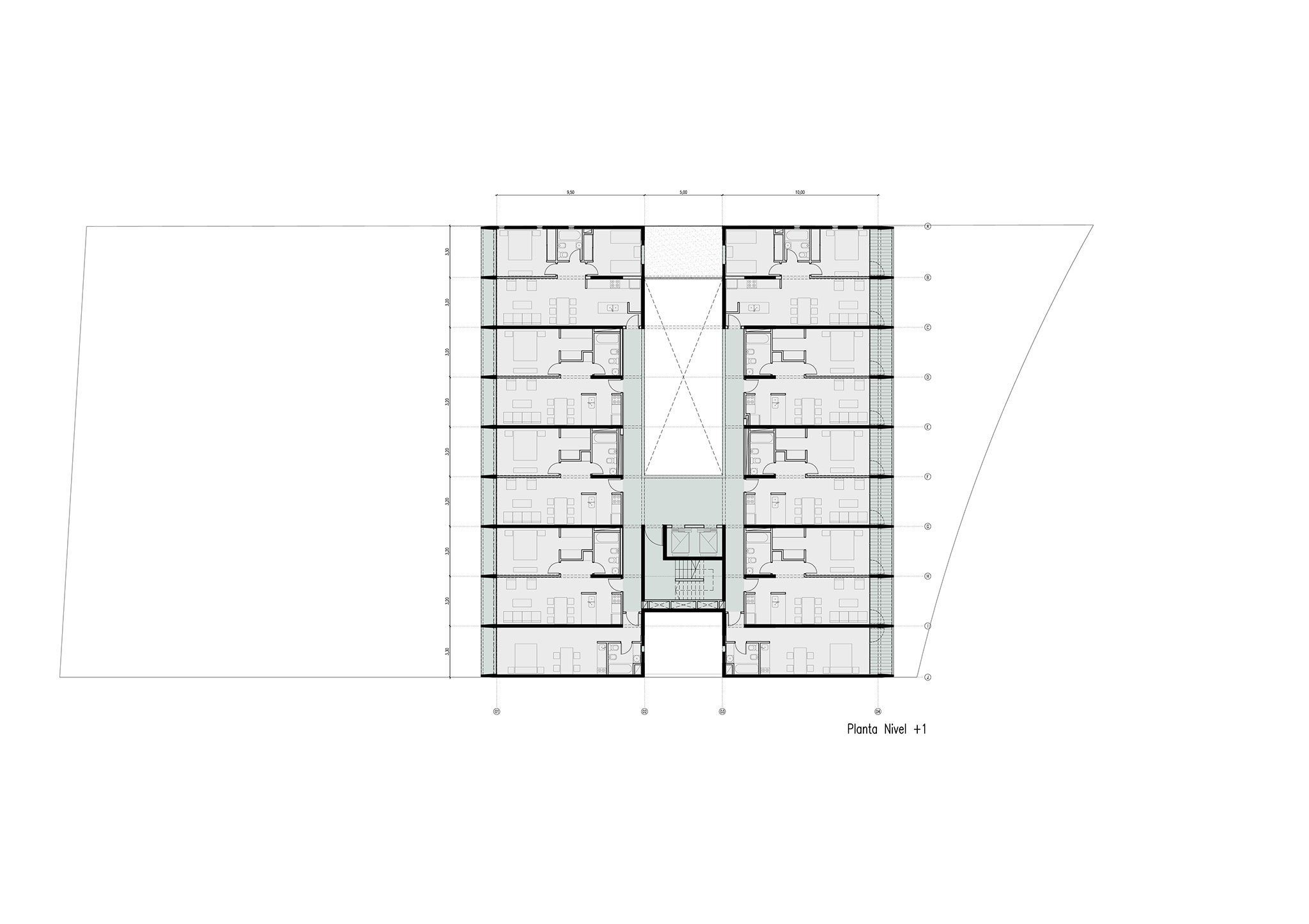
MZM Arquitectos' composition for "Amundsen Ushuaia" follows a main axis that runs from the mountain towards the canal. Along the transverse axis is a multi-story main hall and common areas that open onto the park, reinforcing the connection with the landscape and establishing itself as a transitional element between city and nature. The multi-story void of its central space is the heart of the project and functions as a landscape feature. As the path ascends, the core expands and transforms, yielding space to an exterior courtyard in a sequence of terraced planes.
The building features a grid structure of exposed concrete that, despite its robustness, achieves an almost ethereal visual lightness. The facades are resolved with deep, transparent latticework and function as a climate diaphragm thanks to the glazed envelope that extends from the eaves. The resulting void acts as a bioclimatic reactor, stabilizing interior comfort and reducing energy demand.

"Amundsen Ushuaia" by MZM. Photography by MZM.
Project description by MZM Arquitectos
The Slope as a Design Resource
The Amundsen Ushuaia Building is a residential complex with a strong commitment to its urban and environmental context. Its character and morphology are defined by the particularities of its location: situated on the western edge of the city, it functions as the boundary of the consolidated urban fabric and, at the same time, as the lateral boundary of Centennial Park. The steep slope of the site becomes the driving force behind the project, organizing a system of urban scales and visual axes that allow the building to engage in a simultaneous dialogue with the mountain, the park, and the Beagle Channel.
It is worth noting that, being one of the tallest buildings in Ushuaia, it offers distinct responses to the different urban situations: facing Gobernador Deloqui Street, it presents a ground floor and four upper levels, in harmony with the neighboring blocks; facing the Channel, it unfolds as a ten-story structure with clean, unadorned lines, visible from the cruise ships that arrive with thousands of visitors, becoming a landmark in the city's imagery.
Geometry and Geography in Tension
The main compositional axis follows the slope: from the mountain towards the Beagle Channel, where the apartments' views are directed. One-third of the units face the mountain, while two-thirds enjoy unobstructed views of the channel.
The transverse axis is materialized in a multi-story lobby and common areas that open towards Centenario Park, reinforcing the connection with the landscape and solidifying the building's role as a transitional space between city and nature.
This space functions as a climate diaphragm and urban viewpoint. Given the latitude of 54° S, the glazed facade facing west-southwest extends beyond the eaves to maximize direct heat gain. The void acts as a bioclimatic reactor, capturing the low afternoon sun and transforming radiation into heat storage that stabilizes interior comfort and reduces energy demand in the face of Tierra del Fuego's harsh climate.
The Void as a Landscape Device
The heart of the project beats in its multi-story central space, a void that operates through a logic of progressive subtraction. As the path ascends, this core expands and transforms, yielding covered surface area in favor of an exterior courtyard that culminates, on the top level, in a complete opening to the sky.
This mechanism of 'landing' the exterior space into the building's core generates a sequence of terraced planes that invert the relationship between shelter and exposure. These surfaces not only capture light but have also been designed to preserve snow, allowing the white blanket to actively participate in the interior spatiality. Thus, the climate is not something the building protects itself from, but rather another material component; the snow becomes texture and silence within the central void, integrating the Fuegian geography into the daily ritual of its inhabitants.
Material Technique
The robustness of its exposed concrete structure is not only a response to the seismic zone but also an expression of high technical sophistication. To materialize the deep grid of the facades, metal formwork in the form of assembled and reusable portal frames was designed. This system allowed for surgically precise calibration of the solid-to-void ratio: the thickness was reduced at the edges to achieve an almost ethereal visual lightness, while maintaining the structurally necessary thickness at critical points.
The objective was to guarantee maximum transparency along the mountain-canal axis, ensuring views in both directions. The main facades are resolved with deep, transparent latticework that protects the openings from snow and wind. The canal-facing facade features vertical and horizontal protective eaves that moderate the impact of the weather. Meanwhile, the deeper mountain-facing facade transforms the eaves into balconies that extend the domestic experience into the landscape.
Material Identity
The building's material palette is defined by a dialogue of tectonic contrasts: the unwavering strength of exposed concrete and the transparency of glass meet lenga wood, the emblematic tree species of the Fuegian forests. At Amundsen, lenga is not merely cladding, but a sensory bridge to the surrounding environment.
Used in the grand, multi-story hall, this local wood provides an organic warmth that acts as a counterpoint to the harshness of the exterior climate and the structural robustness of the building. Its presence inside not only pays tribute to the region's building traditions, but also enhances the common space, transforming the hall into a tactile refuge where the texture, warmth, and aroma of the wood complete the transition between the wild landscape and the interior of the Centennial Park and Domestic Life.
Social Dimension and Civic Landscape
The project begins with a generous, open access plaza. This urban void not only provides the necessary distance to contemplate the building's volume against the backdrop of the Canal, but also functions as a calm transitional threshold between the city and the interior.
This commitment to openness continues on the lower levels, where the Multipurpose Hall is located two levels below the lobby, visually approaching park level. A contained green area, enclosed by stone gabions, follows the slope of the lower section, morphologically integrating with the geometry of Centennial Park.
However, the multi-story lobby constitutes the true center of gravity. Designed as an elevated and sheltered plaza, this generously sized space fosters spontaneous encounters and community. Here, the architecture serves as a support for collective life: an internal landmark where the interaction between residents and guests has consolidated a vibrant civic heart within the complex.
