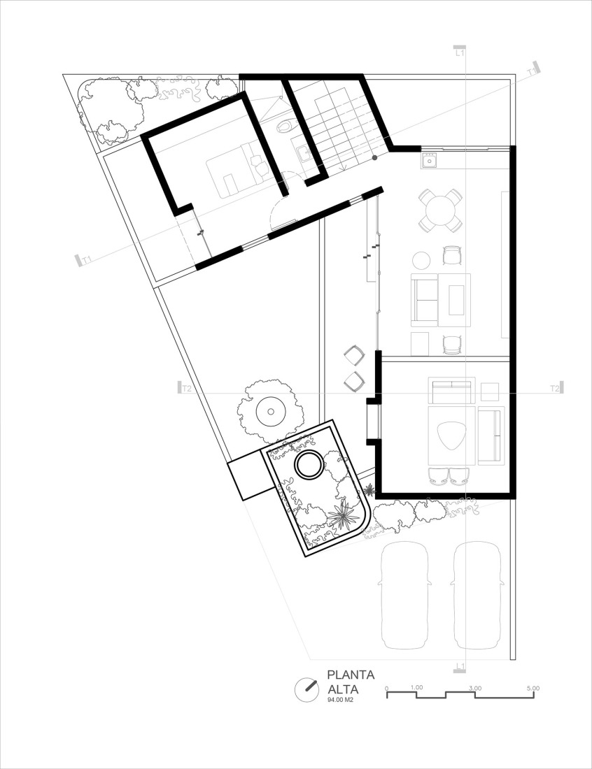
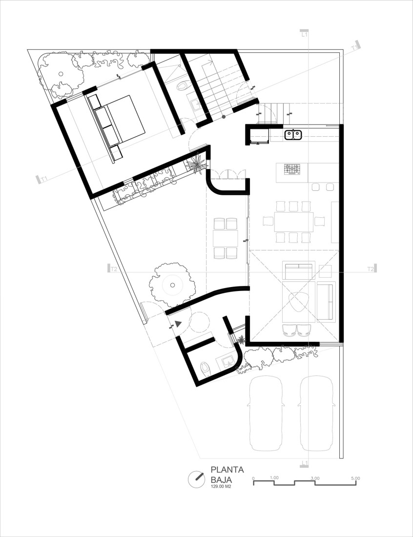
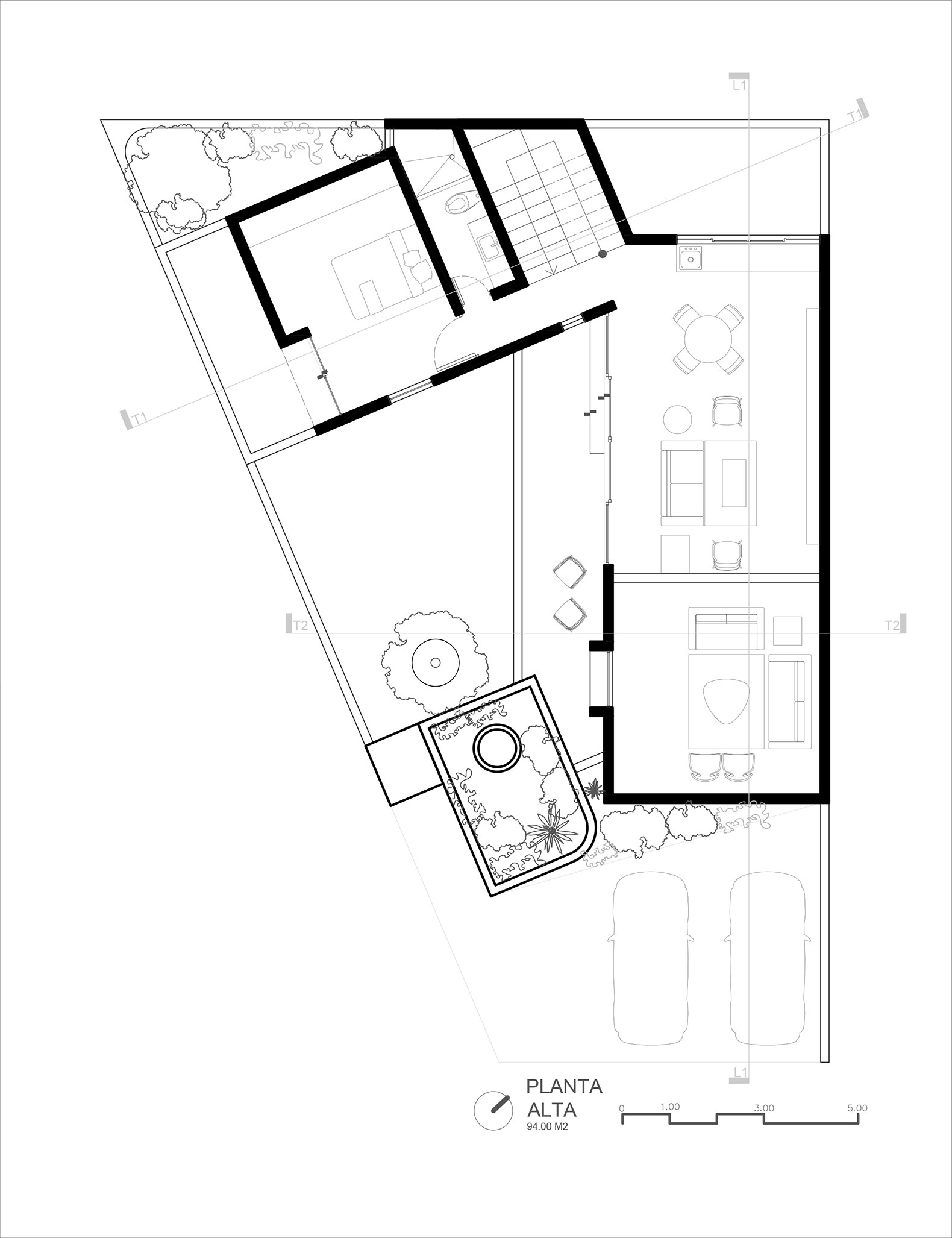
Casa Gálvez, designed by Estudio Villagálvez, features a contemporary entrance hall, defined by a vertically proportioned covered space. The composition comprises three main volumes: the entrance, the social areas, and the private spaces. A floating wooden volume houses the kitchen and dining room on the ground floor, and the television room and study on the upper floor.
The remaining spaces are organized within a compact, tower-like volume containing the bedrooms. This volume opens and closes according to the orientation and the need for ventilation and privacy. The central courtyard is conceived as a fundamental space that allows for natural ventilation and solar control throughout the day, while also allowing the treetops to become the focal point of the interior.

"Casa Gálvez" by Estudio Villagálvez. Photograph by Jorge Succar.
Project description by Estudio Villagálvez
Casa Gálvez is located in a densely urbanized area, surrounded by residential and industrial development. However, the property borders a green space that adds an unusual value: open views, mature trees—such as a royal poinciana and a eucalyptus—and the constant presence of foliage in the daily life of the project.
From the outside, the large royal poinciana becomes the first architectural gesture: a threshold tree that guides the entrance. The entrance is through a contemporary vestibule, a roofed space with vertical proportions, where exposed concrete and a circular oculus in the slab create an intermediate atmosphere between interior and exterior, allowing light to highlight the tree's silhouette and invite one to look upwards.
Beyond this threshold, the space suddenly expands with a double-height ceiling that, from a contemporary perspective, evokes the symbolic structure of a traditional Mexican granary. Here, this sheltered space transforms into the social heart of the house: a floating wooden volume that houses the kitchen and dining room on the ground floor, while the upper floor contains a television room and study. This “suspended granary” articulates the collective uses of the home and establishes a spatial continuity between levels, sustained by height, light, and the interplay of views.
The rest of the program is organized in a compact volume arranged like a small tower that houses bedrooms and service areas. Surrounded by courtyards, this volume opens or closes according to orientation, the need for cross-ventilation, or the required privacy, establishing an active relationship with the immediate surroundings.
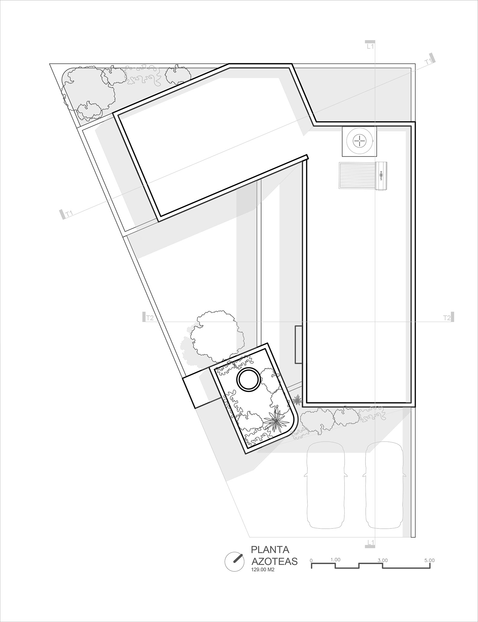
The central courtyard plays an essential role. It functions as a bioclimatic device—allowing for natural ventilation and solar control throughout the day—and as a contemplative space: its walls protect privacy but allow the treetops to dominate the interior landscape, generating an atmosphere of calm and connection with nature.
The volumetric composition is structured around three main sections:
1. The entrance volume, in dialogue with the scale of the tabachin tree.
2. The social volume, open and generously heighted.
3. The private volume, more enclosed and modulated.
These volumes are linked by curved lines and an earthy texture that acts as a base, creating a transition between the organic nature of the terrain and the architectural geometry.
Casa Gálvez proposes a simple, fluid, and efficient living experience, but also a contemplative one. It is an architecture that is not immediately apparent from the outside, but rather slowly revealed through pores, shadows, and pathways, finding in the landscape and in the memory of traditional Mexican living a new way of defining itself.