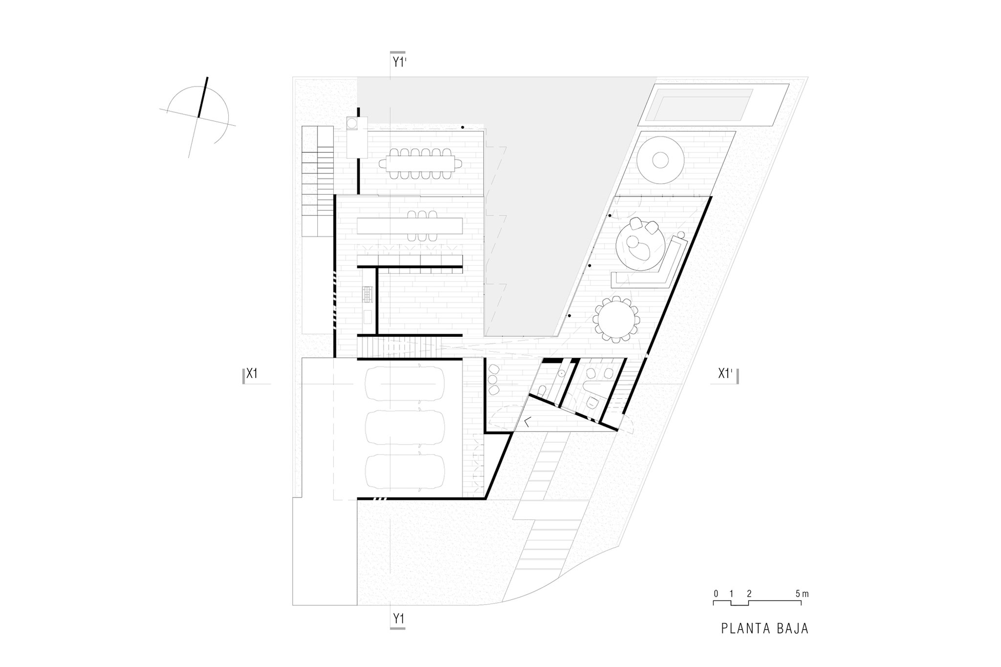
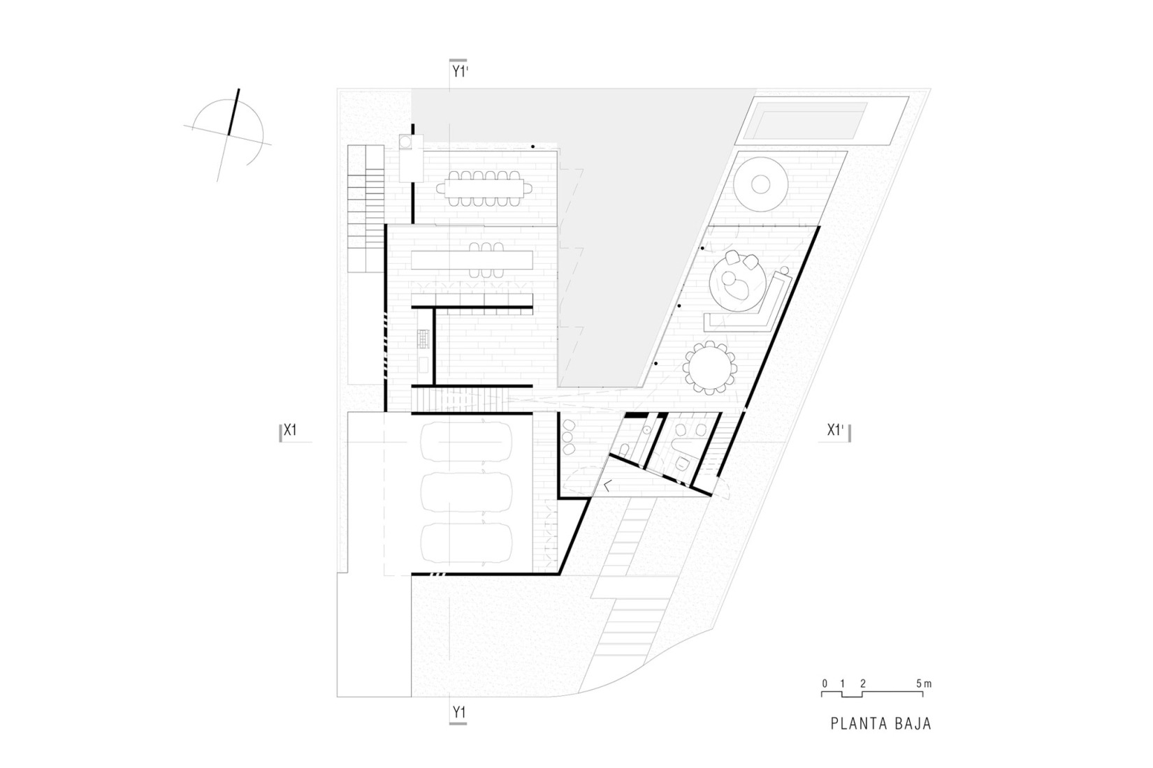
Formally, LABarq's proposal is summarized in two main volumes. The first adopts a gentle incline that responds to the existing slope of the site and houses the main social areas, such as the living room and dining room. The second uses the ground floor for service, while the upper floor houses a series of bedrooms that conveniently open onto the northwest façade.
For the construction of Casa Río, the architectural team opted for a structural strategy that complements the soberness of the home's overall architectural style. Local materials such as Santo Tomás marble, walnut veneer, and wood finishes are combined with steel columns, slabs, and metal tensioners, resulting in a lightweight design that appears to float above the ground.

Casa Río by LABarq. Photograph by Ariadna Polo.
Project description by LABarq
Casa Río is a project that responds sensitively to the site’s topography and irregular geometry. Its “V” shape not only addresses the trapezoidal condition of the plot but also creates a central garden that organizes the residence and frames views toward the surrounding natural environment.
“The intention is for the architecture to disappear among the trees, with solid walls at the front and a complete opening toward the landscape at the back: a light, transparent house that remains fully aware of its context.”
Juan Carlos Kelly
The design unfolds in two main volumes. The first, inclined to adapt to the slope, houses the social areas: a double-height living and dining room, a study with independent access, and a mezzanine that expands the interior space. Extending outward, a swimming pool and a fire pit create continuity between architecture and landscape.
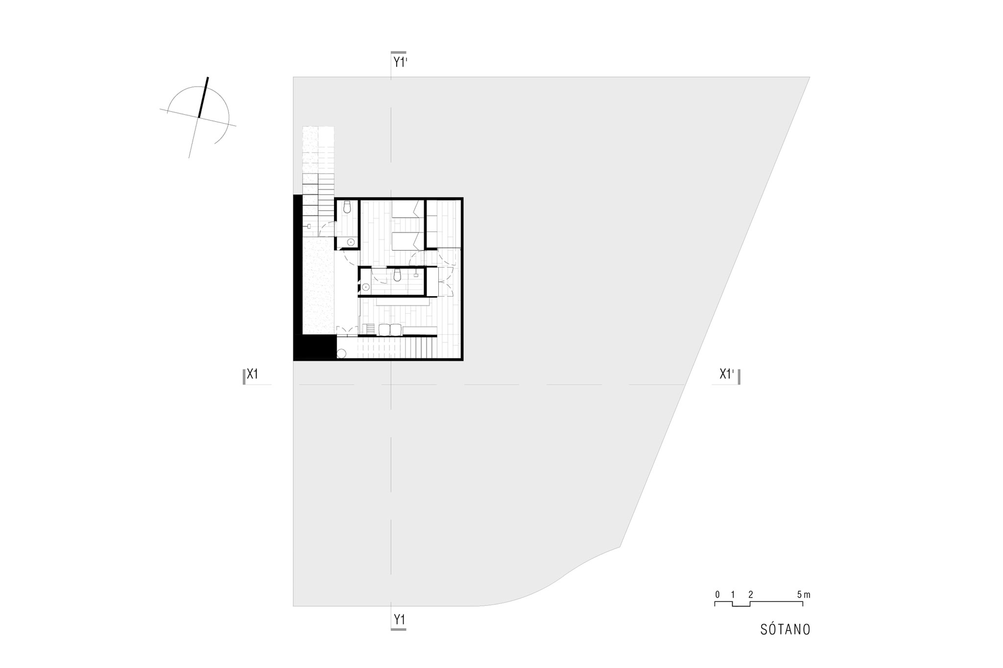
The second volume contains the service areas on the ground floor —kitchen, TV room, terraces, and a vertical circulation core— along with a basement for storage and service quarters. The upper floor is dedicated to private spaces: a master bedroom with a walk-in closet and three secondary bedrooms that open strategically toward the northwest façade, ensuring controlled views without compromising privacy.
The structural system is conceived as part of the architectural language. Slender steel columns, plates, and tensile cables allow for wide spans and a light expression. In the bedrooms, the tensile elements regulate sunlight and direct views, reinforcing the connection with the outdoors. The lateral walls of the first volume float above the ground, enhancing the sense of lightness and transparency.
The façades establish a contrasting dialogue: sober and solid at the front and sides, while the rear façade opens completely with floor-to-ceiling glazing, dissolving the boundaries between interior and exterior.
Materiality reinforces the integration with context through the use of local resources: Santo Tomás marble, walnut veneer, and wood-textured panels, all in dialogue with dry gardens composed of controlled gravel and native, low-water vegetation. Replacing traditional grass with sustainable landscaping reduces environmental impact and strengthens the project’s relationship with the territory.