Like a compact and introverted volume, the project by NU architectuuratelier and archipelago architects is suspended above a sea of plant houses. Its accessible terrace was conceived as a lookout point overlooking the greenhouses. Inside, a shaded refuge allows for a connection with the living collection, open to the public and visitors.
The greenhouses, four, six, or ten meters high, represent the true heart of the collections and have the space and technology necessary for the proper management of the plants. It is worth noting that the incorporation of various energy-efficient strategies aims to make the Botanical Garden climate neutral by 2045.

"Green Ark" by NU architectuuratelier + archipelago architects. Photograph by Stijn Bollaert.
Project description by NU architectuuratelier and archipelago architects
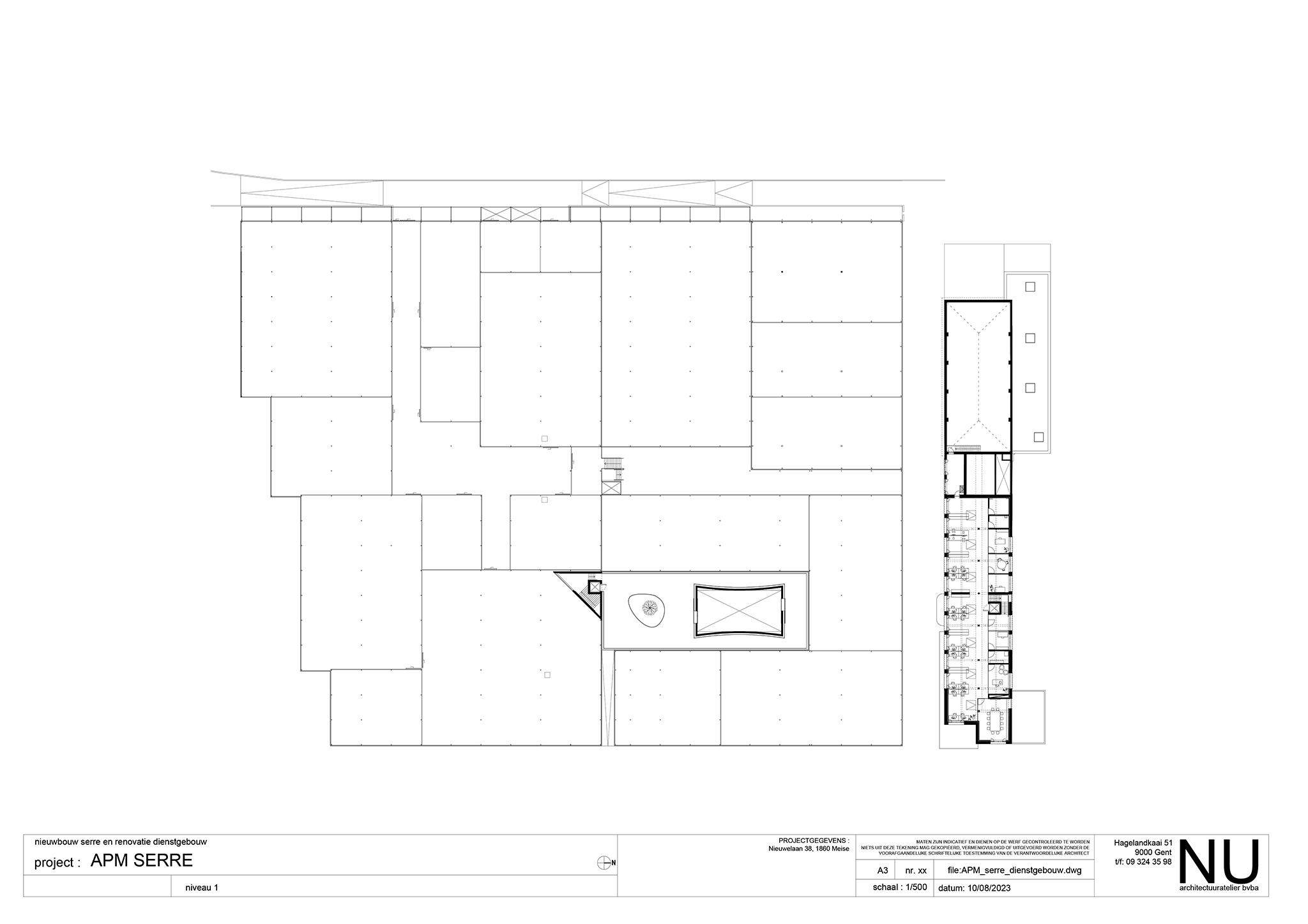
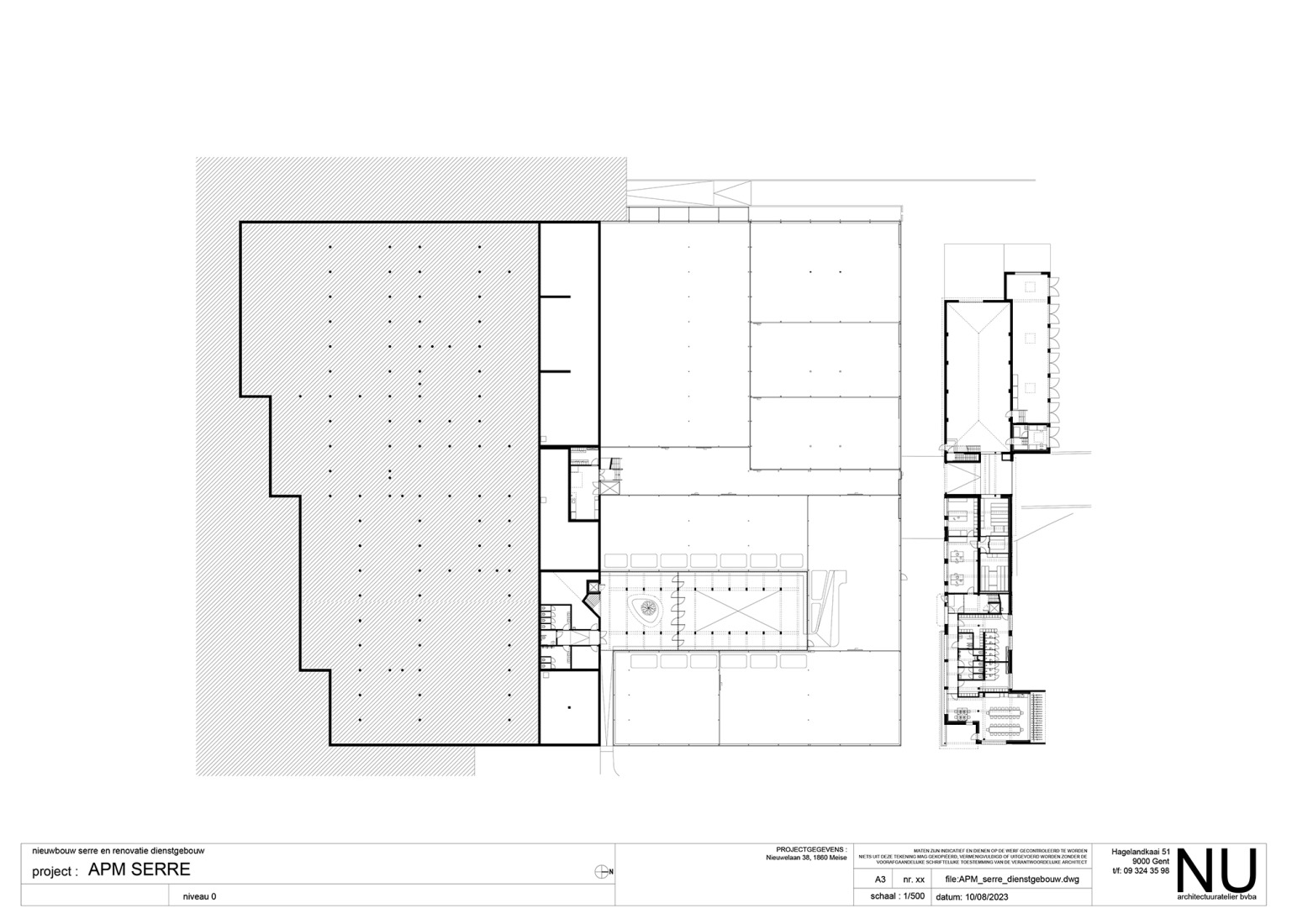
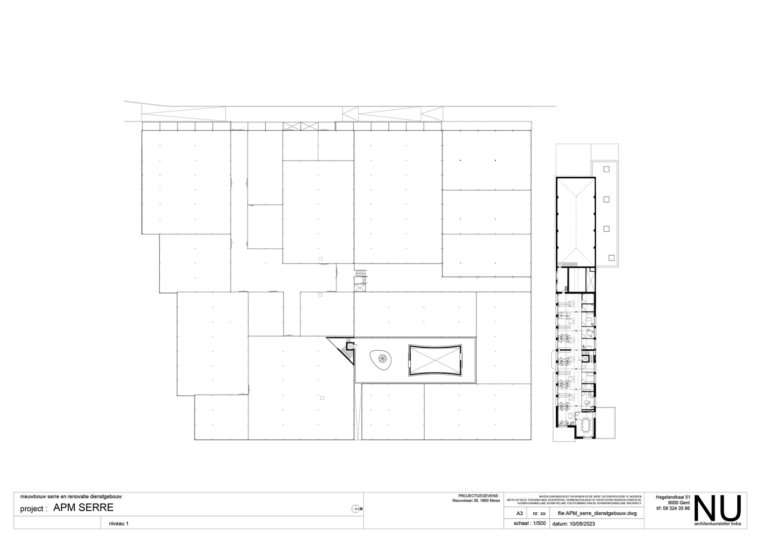
The large greenhouse in the Meise Botanical Garden is somewhat hidden and tucked away in a rolling area. The structure is surrounded by trees, behind the Pachthof and next to the service building, in the heart of the garden. The conservatory houses a precious and extensive live plant collection with species from climatic regions around the world.
The new conservatory doubled in area (more than 7,000 m²) and received a new innovative addition: the Green Ark. This is an impressive multi-purpose visitor pavilion that seems to float like a dark volume amidst a sea of new greenhouses. It consists of a multipurpose space surrounded by a roof plane that can be walked on as a terrace, designed as a raised vantage point in the greenhouses around it. Below the roof plane is a more obscure space that looks transparently into the conservatories from the shadows. In this way, the otherwise enclosed living collection can still be opened up to the public and the visitor becomes more involved in the operation and mission of the Botanical Garden.
The vault of the iconic pavilion midway between the conservatories has the shape of a hyperbolic paraboloid. It is twelve meters high and spread over two floors.On the second floor is the terrace with the pavilion's roof in the center. This gives the visitor a beautiful view of the roof where preserved softwood was reused and transformed into wooden slats that cover the volume like a skin, almost like an animal.
The greenhouses themselves are high-tech greenhouses. They are four, six or 10 meters high, offer four different temperature regimes and house both plant collections from humid and dry climate zones. They are the true beating heart of frost-sensitive plant collections and have all the space and techniques needed to best manage a living plant collection. The warmest areas were placed as close to the center of the complex as possible, while the surrounding cooler greenhouses feature insulating polycarbonate panels or double-glazed windows.
Together with the shading and thermal screens, it makes for an energy-efficient complex with consumption more than 50% lower compared to the previous greenhouses. The realization of the Green Ark is therefore an important step for the Botanical Garden to become climate neutral by 2045. In addition, all rainwater will be collected to bridge several weeks of drought.