The functional proposal by estudioHerreros was conceived with the main objective of facilitating the station's flow dynamics. A major challenge, given the steep and uneven gradient that had to be overcome between the two urban sides of the station, was to maintain the typical access dynamics of this type of infrastructure, where most people enter and leave the station on foot.
The project was inspired by the functional structure of airports, locating taxi, private vehicle, and bus lines at track level, and the departure and arrival platforms at city level, with a large concourse as the main space. Travel to the desired destination is simple, safe, and intuitive. The northern core connects the vehicle platform, the Station Plaza, and the concourse. The southern core connects Clara Campoamor Square with the footbridge.

Train station and pedestrian walkway by estudioHerreros. Photography by Luis Díaz Díaz.
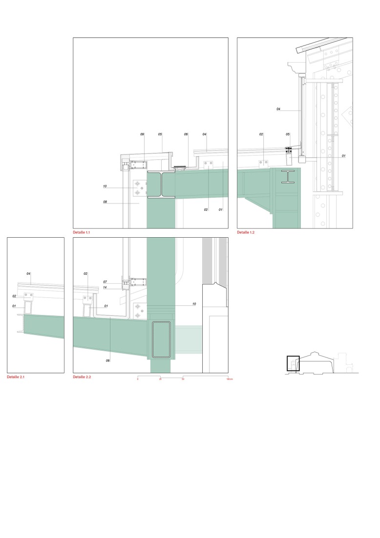
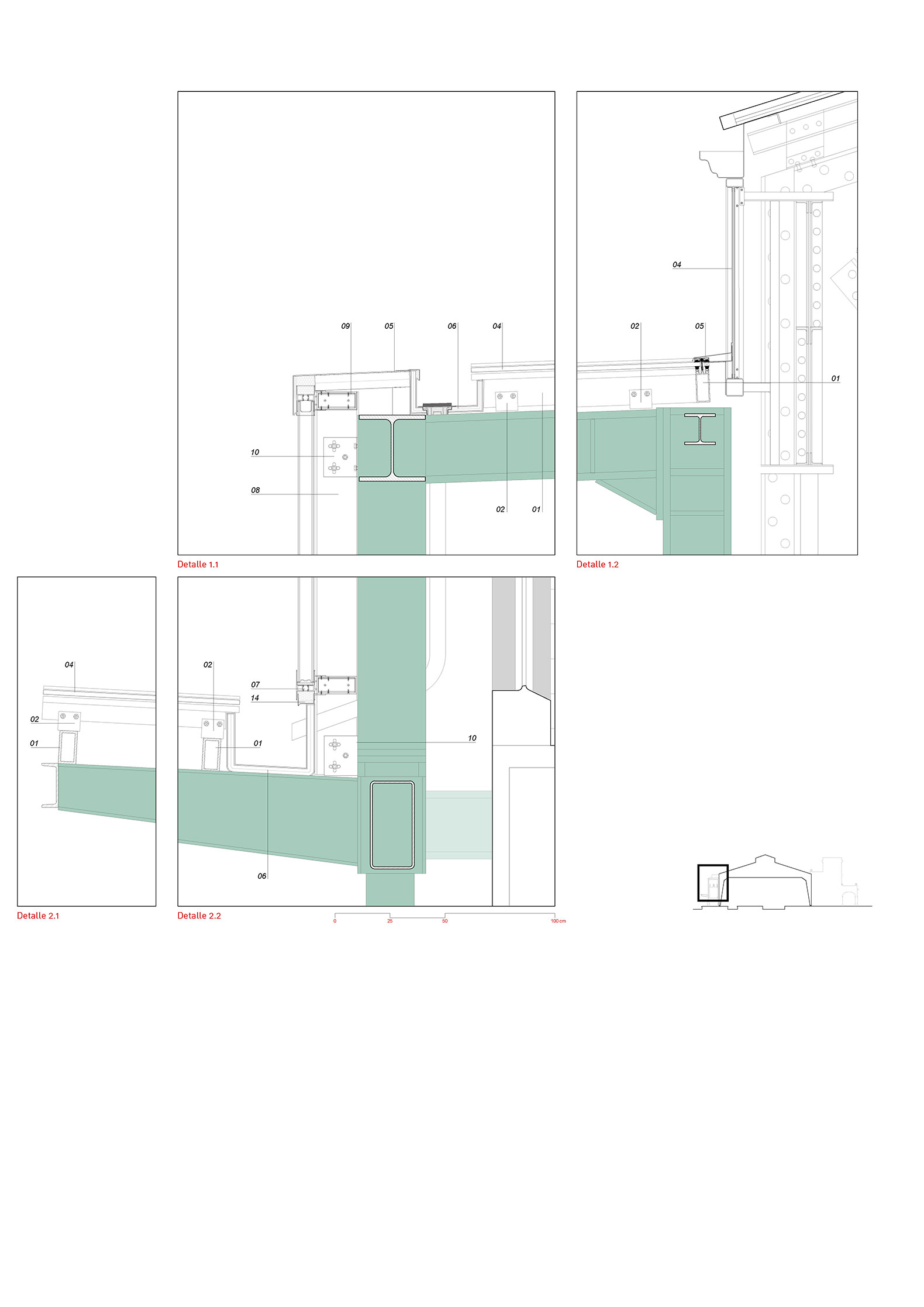
The adaptation to the surroundings has been organic and achieved through precast concrete pillars and slabs. These lightweight, easy-to-assemble pieces allowed work to be carried out on the tracks without interrupting rail traffic. The materials used included perforated metal and zinc panels for the roofs, as well as translucent structural glass inside, allowing maximum light to enter and creating a discreet, pleasant, and sensorially comfortable space for its users.
Description of project by estudioHerreros
In 2011, seventy years after the arrival of the railway in Santiago de Compostela, the out-of-town trench occupied by the tracks remained an almost insurmountable barrier between the historic center and the neighborhoods that had emerged south of the railway line, with Pontepedriña at the forefront. On the other hand, this boundary had the effect of preserving the natural area of Las Brañas del Sar—a piece of priceless ecological value—untouched all this time.
The winning project of the international competition held by ADIF for the new High-Speed Train Station placed the passenger building transversely above the platforms, attached to a generous walkway—opened to the public in 2011— that would solve the intermodality between the train station, the bus station, and parking lots, with the added benefit of connecting the historic center and its expansions with the southern outskirts, the Sar parks, and the City of Culture, thereby reconnecting two urban areas historically disconnected by the steep slope and the railway layout itself.
The fact that most users who take the train arrive at the station on foot, and that most who arrive in the city by train leave the building the same way, supports the project’s commitment to situate the passenger building at city level. Following this premise, the station is organized according to the typical airport scheme: a level at the tracks where all motorized transfers take place—such as taxis, private and rental vehicles, urban and long-distance buses—and another level at the city that acts as a departure and arrival platform flying over the platforms, whose main space is the bright passenger hall from which there is direct access to the trains via a series of fingers that ensure intuitive, efficient, and safe operation.
The simplicity of the scheme ensures a dialogue with the old station, especially with its wide canopy covering passenger movements on the platforms. Meanwhile, the two contemporary-designed plazas created at the ends of the complex—the Station Plaza on the city side and Clara Campoamor Plaza on the Natural Reserve side—are presented as the first image received by a traveler newly arrived in Santiago de Compostela.
The logistics of vertical movement pivots around two cores, north and south, connected by the walkway that effectively functions as a street within the urban system. The north core links the vehicular movement platform with the Station Plaza and the hall, while the south core connects Clara Campoamor Plaza with the walkway. Both include elevators capable of transporting bicycles and escalators that ensure universal accessibility throughout the entire complex.
The architecture resolves its adaptation to the site through an organic form that retracts the program without compositional concessions. The construction process begins with implementing a large platform of prefabricated concrete pillars and slabs, upon which the building is raised using industrialized assembly systems whose lightness and fitting facilitate operations over the tracks without interrupting railway traffic. The envelope’s materiality relies on a family of translucent materials, perforated metal panels, and zinc roofing—a system in which the Galician industry is a national leader. The interiors seek maximum brightness thanks to the intensive use of translucent structural glass that even on cloudy days multiplies the reverberation of natural light, creating cheerful spaces designed for a pleasant wait.
The project has a profound social and civic involvement. The recognition of architecture’s capacity to balance undesirable urban polarizations, mitigate social inequalities, and make people’s lives more pleasant is the project’s most ambitious proposal, which works intensively on its added values. In fact, we maintain that achieving infrastructures that go beyond their logistical responsibility—one they must fulfill with maximum efficiency—to become expressions of social cohesion and an image of a city confidently looking to the future, seems to us the way forward.