
Wonder Cabinet / Gabinete Maravilla es una plataforma cultural y educativa sin ánimo de lucro, fundada por los arquitectos locales Elias y Yousef Anastas. El proyecto busca el anonimato material mediante el uso de una sencilla estructura reticular de hormigón con acabado tosco. Las fachadas frontal y trasera acristaladas, con amplias posibilidades de apertura, junto con un interior en gran parte diáfano con solo unas pocas mamparas de cristal, garantizan la transparencia total y la climatización natural mediante la ventilación. La atención se centra por completo en la creación, como medio para apoyar los medios de vida que sustentan la presencia palestina en Cisjordania, y en el entorno paisajístico.
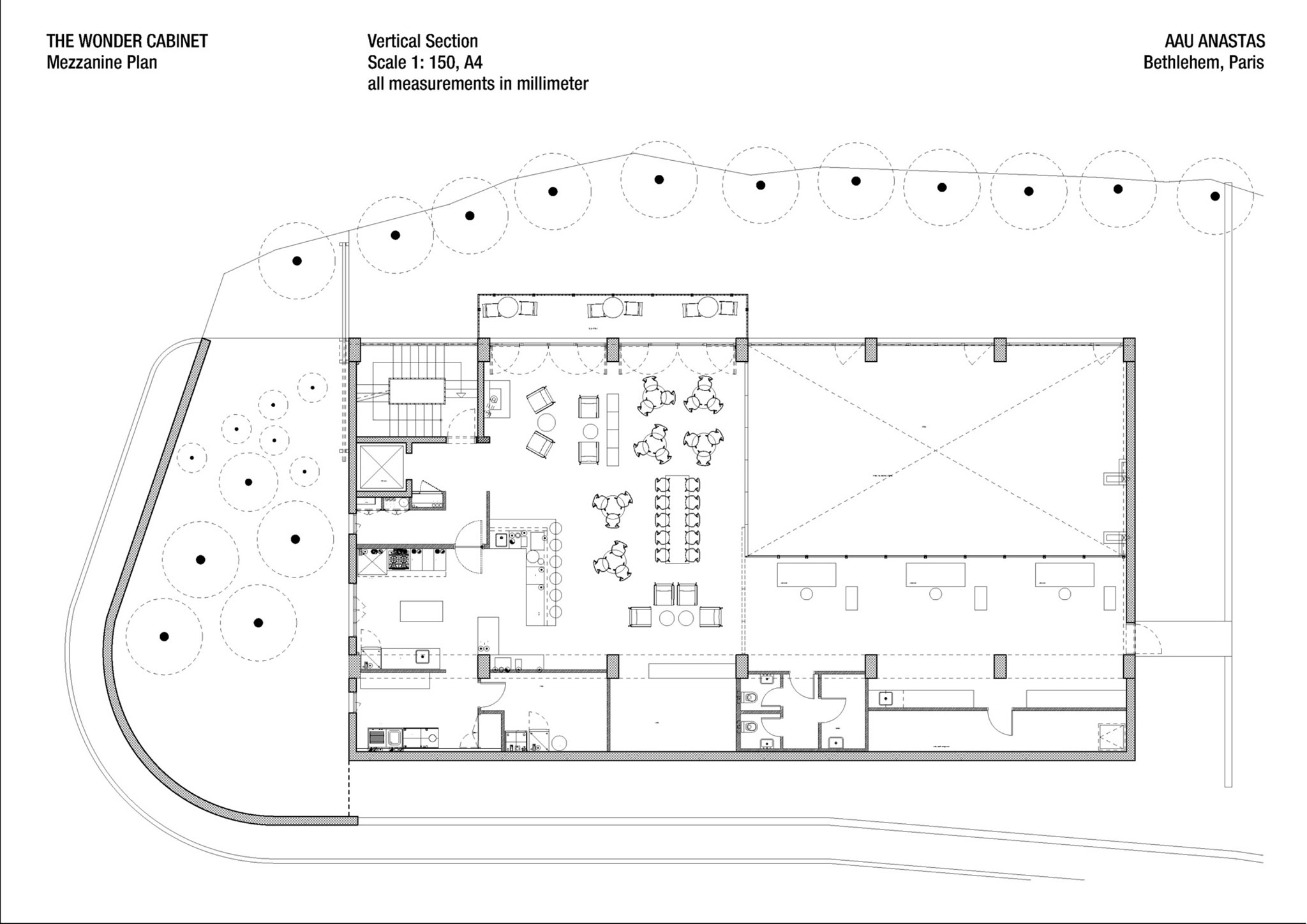
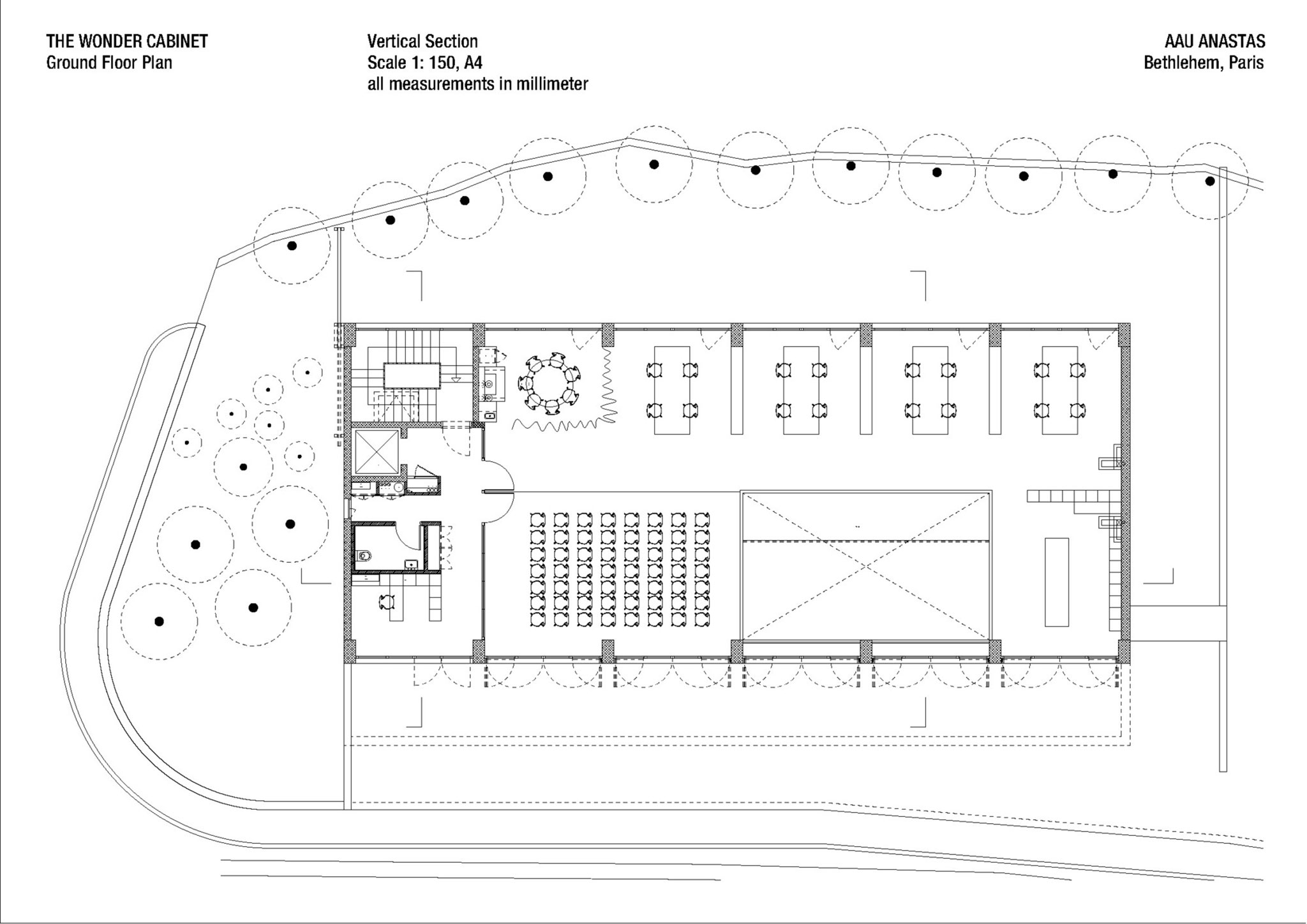
El edificio combina arte, producción y encuentro comunitario. En su fachada oeste destaca un mural de Somnath Bhatt y Ayed Arafeh. La planta superior alberga cafetería, tienda, oficinas y un estudio de arquitectura; la entreplanta, talleres, restaurante y emisora de radio; y la planta baja, espacios de espectáculos y oficios artesanales. Un patio exterior complementa las actividades. Ventanas metálicas enmarcan el paisaje, mientras mobiliario e instalaciones, elaborados por artesanos locales, culminan en la azotea con la obra «WONDER CABINET».

Cabinete de las maravillas por AAU Anastas. Fotografía por Mikaela Burstow.

Cabinete de las maravillas por AAU Anastas. Fotografía por Mikaela Burstow.
Descripción del proyecto por AAU Anastas
Explorando y promoviendo nuevas formas de creación basadas en el rico pero amenazado patrimonio artesanal e industrial palestino, el Gabinete Maravilla es una plataforma cultural y educativa sin ánimo de lucro, fundada y proyectada por los arquitectos locales Elias y Yousef Anastas. A pesar de ser conocidos principalmente por su trabajo en piedra, aquí buscaron el anonimato material mediante el uso de una sencilla estructura reticular de hormigón con acabado tosco. Las fachadas frontal y trasera acristaladas, con amplias posibilidades de apertura, junto con un interior en gran parte diáfano con solo unas pocas mamparas de cristal, garantizan la transparencia total y la climatización natural mediante la ventilación. La atención se centra por completo en la creación, como medio para apoyar los medios de vida que sustentan la presencia palestina en Cisjordania, y en el entorno paisajístico.
Enclavado en una ladera a las afueras de Belén, una ciudad que anteriormente carecía de un espacio dedicado al arte contemporáneo, el edificio domina el valle de Al-Karkafeh. Sus vistas hacia las montañas jordanas en el horizonte se ven interrumpidas por un asentamiento israelí en la cima de una colina que antaño estaba boscosa, a poca distancia.

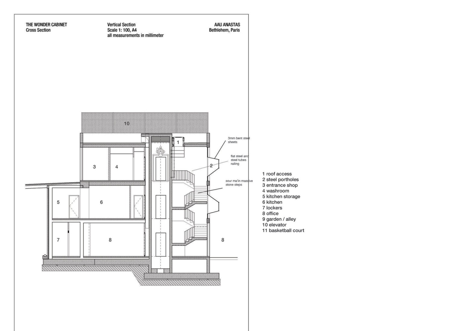
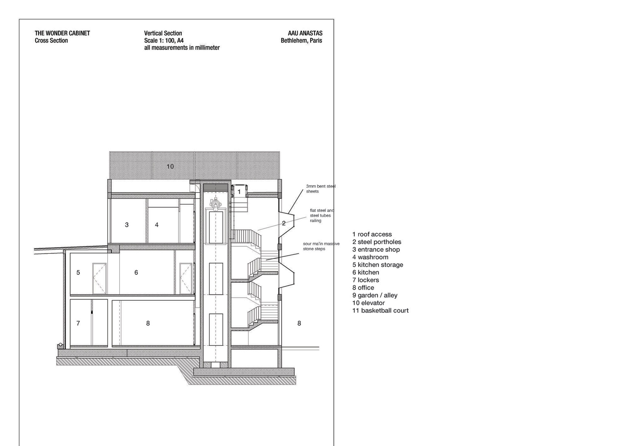
Un mural gigante de los artistas Somnath Bhatt y Ayed Arafeh adorna su fachada oeste. La fachada que da a la calle da acceso a la planta superior, donde se encuentran una cafetería y una tienda con productos locales. Entre ambos, un vacío diagonal que atraviesa y conecta los tres niveles atrae la mirada hacia abajo, ofreciendo una perspectiva panorámica de las múltiples actividades que se desarrollan en el interior y del valle que se extiende más allá.
El estudio de arquitectura y otras oficinas abiertas también se ubican en la planta superior. La entreplanta alberga un área de producción, estaciones de trabajo para artistas, una emisora de radio y un restaurante. La planta baja alberga principalmente un espacio de producción y espectáculos, con instalaciones para diversas actividades artesanales, desde carpintería y metalistería hasta fundición, textiles y fotografía. Un patio exterior ofrece un espacio relajado para socializar o celebrar reuniones informales.

Las únicas zonas cerradas de la fachada trasera son el estudio de sonido con paredes de mampostería y el tramo de escalera con fachada metálica, que cuenta con dos ventanas cónicas salientes tipo ojo de buey. Fabricadas por Mohammad Husni, especialista en estructuras de acero para silos de fábrica, estas ventanas están inclinadas para enmarcar partes específicas del paisaje circundante. El mobiliario, la iluminación y otros detalles también son obra de artesanos locales, incluyendo la destacada instalación en la azotea de Bishara al-Hadweh, compuesta por letras escalonadas de acero inoxidable que forman la palabra «WONDER CABINET» y que giran suavemente, como una veleta, sobre mecanismos de rodamientos de bolas hechos a medida.