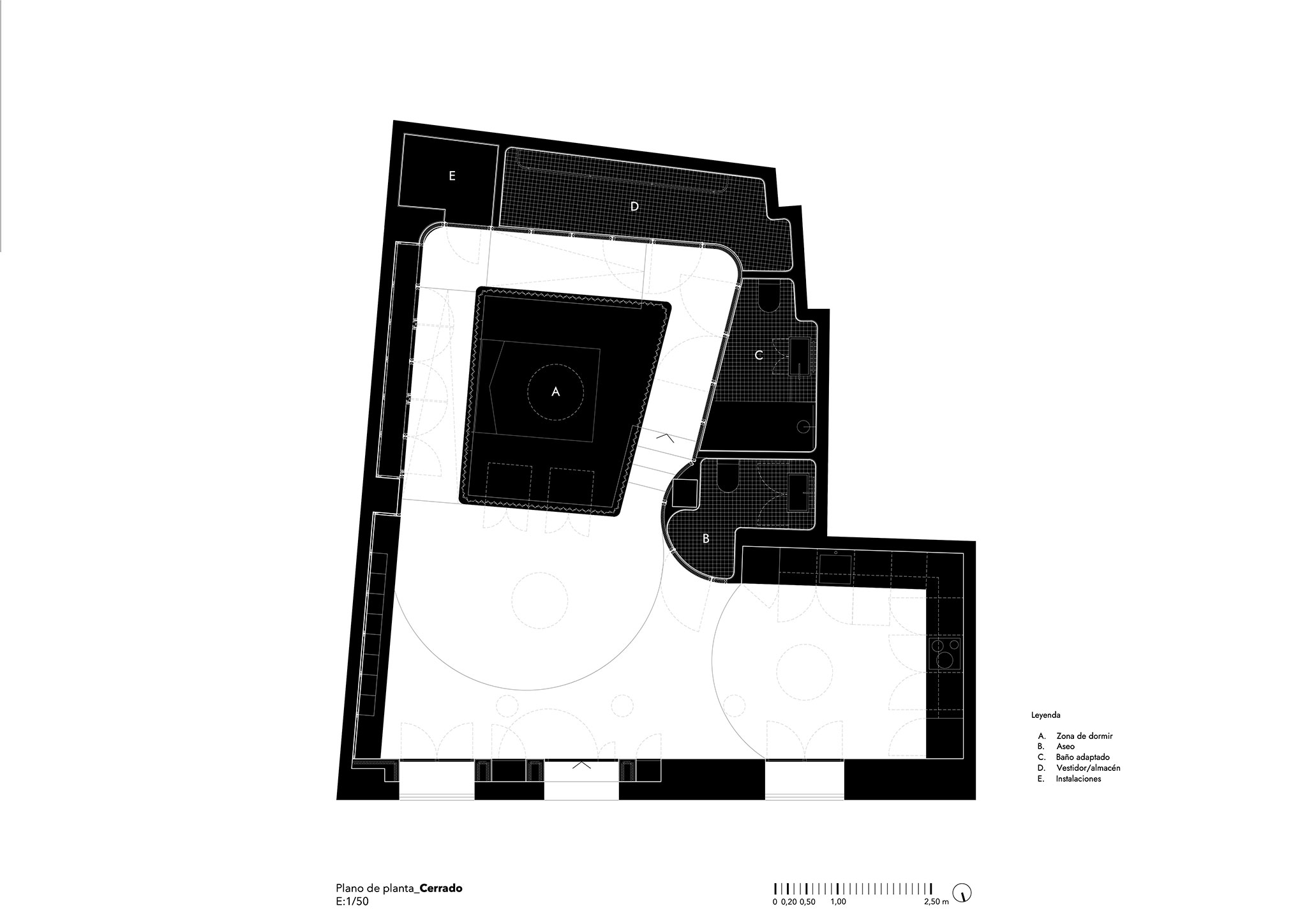
"Pregnant House," designed by FORarquitectura, occupies the ground floor of a building in the city's historic center, free from vehicular and pedestrian traffic. Inside, it comprises open and flexible spaces with an ambiguous and experimental feel, featuring minimal service areas around the perimeter and the bedroom in a central core.
Behind neutral-toned, reflective panels made with a modular construction system of assembled galvanized sheet metal panels, brightly colored spaces inspired by the work of painter Edward Hopper are concealed, enveloping the storage, utility, and private areas. The result is a versatile living space with the potential for future modification through a demountable and reusable structure.

Preñada house by FORarquitectura. Photograph by Juanca Lagares.
Project description by FORarquitectura
From the 1960s onwards, faced with the need for rapid housing construction in cities where families and individuals from rural areas were beginning to arrive, a number of professionals (architects, artists, etc.) emerged, eager to study and investigate new ways of living. They wanted to create habitable spaces with programs and layouts that did not conform to the standards of the rapid and speculative construction that was beginning to expand in response to the rural exodus. Cities were growing rapidly and invasively, and buildings rose up as repetitive blocks, creating a monotonous facade rhythm. Faced with these pragmatic architectures that were merely the result of layouts designed for mass production, a large group of architects became interested in exploring new ways of living, as was the case with Anna Bofill.
Drawing a parallel between that era and the current situation, today the migration of people from rural areas to cities has slowed, but new movements and situations have emerged that saturate and strain the existing real estate market. Mass tourism and the need to rent due to the limited opportunities for first-time homeownership have generated a whole catalog of buildings located in truly "ingenious" spaces, with architecture lacking intellect, reflection, or spatial quality. Thus, under the motto "anything goes," a series of buildings called "houses" begin to proliferate in poorly equipped locations, lacking the resources to support a decent life and often without the supervision of a professional.
With all this in mind, and without opposing the emergence of these new places, Casa Preñada is an exercise in reflection on the path that is beginning to take hold in today's world. A project adapting a commercial space into a dwelling. Belonging to an 18th-century building and inspired by the curved forms of its historic wrought-iron balconies and the Neoclassical paintings on the façade, the transformation process involved considering how to inhabit these spaces, which lack some of the most prominent architectural features, such as natural light, but with the hope of offering a dignified living space. A dwelling free from programmatic constraints where one can adapt one's lifestyle to one's liking. Obviously, due to its size, this place is not suitable for large families, but compared to the 30.50 m² stipulated in the General Urban Development Plan of Malaga for studio or one-bedroom apartments, this space offers more than 70.00 m² of usable space for its typology. Avoiding speculative development where everything is squeezed to the maximum to extract the greatest economic return was the first decision and the starting point for accepting the commission.
Regarding natural light, this architectural element has been the driving force behind the design, even influencing the materiality of the space. To intensify the light, a modular construction system of galvanized sheet metal panels, assembled and shaped in a local workshop, was designed. This is an experimental, dry construction approach that is demountable and reusable.
Continuing the exploration of ways of inhabiting, this project of open and flexible spaces, with its ambiguous and experimental appearance, expresses a desire not to limit use to the form and geometry of the dwelling. A space is created with the capacity to locate the minimum required service areas around the perimeter, while sheltering the living area at its center. Behind this skin of neutral and reflective tone lies a world of color that envelops the more intimate spaces or houses uses such as storage and utilities. The color scheme of these spaces and certain details of the living area is inspired by the work of Edward Hopper, the painter of solitude. This work depicts domestic and intimate scenes of human life in public spaces, as if people were inhabiting areas not typically considered residential.
The result is a place suitable for living, yet versatile and capable of being repurposed in the future to serve the traditional, or perhaps still familiar, uses we find in these street-level spaces.
With this in mind, the project offers a new way of life directly connected to the street level, without turning its back on it. Living on the ground floor in a historic center, free from vehicular traffic and bustling with pedestrians, can also be a new way of connecting with these environments and even remind us of what life is like in a small town.