Tsing-Tien Making did not replicate the Tangmingdan, but rather its essence, which embodies the mobility, adaptability, and organizational ingenuity of opera culture. The firm extracted its structural logic and reinterpreted it as a contemporary spatial device, a mobile cultural hub. The project was conceived as a portable micro-theater inspired by the three essential spatial qualities of the Tangmingdan: identity, generativity, and mobility.
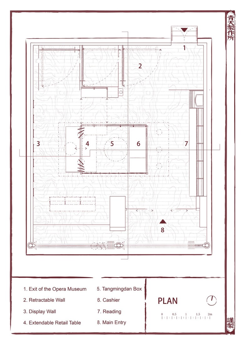
The project inserts a new "Tangmingdan"—a 7-square-meter element reconfigurable for different events or cultural activities—into the heart of the bookstore. Constructed from diverse materials, all its elements are mobile: walls equipped with magnetic mounting systems, retractable curtains, and modular signage. Its four facades are distinct: the north facade is clad with reclaimed wooden doors found on-site, while the south facade is made of perforated galvanized steel.
The new Baihua Bookstore presents itself as a compact and flexible model for the production, experimentation, and exchange of ideas.

Inspired by the opening practices of traditional Suzhou shops. Baihua Bookstore by Tsing-Tien Making.
Project description by Tsing-Tien Making
Located within the China Kunqu Opera Museum in Suzhou—the birthplace of Kunqu opera—Baihua Bookstore was first established in 1993 as a specialist venue dedicated to this centuries-old theatrical tradition. Recognized by UNESCO as an Intangible Cultural Heritage, Kunqu opera remains central to this bookstore’s identity. Over the decades, however, the original space—just 65 square meters in size and formerly used as a reading room—had fallen into disrepair and gradually devolved into an exit corridor, detached from its cultural roots.
When invited to redesign the bookstore in 2024, we saw more than a simple interior renovation. Rather than treating it as a straightforward retrofit, we viewed the project as an opportunity to reintegrate the space into the museum’s living cultural ecosystem. Our goal was to reimagine Baihua Bookstore as a compact yet generative “bookstore-plus” model—a contemporary stage for cultural production and exchange.
“Tangmingdan”: a portable stage and its structural essence
Our design begins with a small, often overlooked artifact from the museum’s collection: the Tangmindan, a lightweight, collapsible facade used by traditional opera troupes in southern China. This portable stage structure, designed for street performances, embodies the mobility, adaptability, and organizational ingenuity of folk opera culture. We did not replicate the object literally, but rather extracted its structural logic and reinterpreted it as a contemporary spatial device.
A “Portable Theatre” Mindset
Inspired by the Tangmingdan, we reconceived the bookstore not as a static display space, but as an embedded micro-theatre—a dynamic cultural node. The design draws from the Tangmingdan’s three essential spatial qualities: identity, generativity, and mobility. These inform the entire architectural strategy.
At the heart of the bookstore is a central spatial device: a new Tangmingdan hat serves as both symbolic threshold and structural core. Measuring just under 7 square meters, this element features four distinct façades—each made of different materials and expressions. It physically anchors the space, introduces a sense of ceremony, and enables flexible configurations for diverse cultural programs.
From Theatrical Gesture to Spatial Syntax
Rather than designing a space that looks like a stage, we focused on how a stage functions. Traditional troupes would carry their Tangmingdan through neighborhoods, creating temporary venues through a logic of assembly and disassembly, visibility and concealment. This inspired our own design mechanisms: all display elements are mobile; walls are equipped with magnetic mounting systems; curtains are retractable; and signage is modular. These strategies allow the space to adapt quickly to changing uses and events.
For instance, three-wheeled wooden display panels on the north wall can be used along the perimeter or moved inward to enclose a temporary performance zone in conjunction with the central Tangmingdan. The west wall features a Kunqu vinyl display, where operatic recordings play in a space partially visible through perforated panels—offering glimpses of the “backstage,” and creating a blurred boundary between everyday life and theatrical encounter.
From Material to Meaning
The north façade of the Tangmingdan is clad in reclaimed wooden doors found on site. We stripped the paint using a carbonizing technique to reveal the wood grain, giving the material a new tactile warmth. Carved window panels from the original space were preserved—not as nostalgic backdrops, but as active narrative fragments within the new structure.
The south façade takes a contrasting approach. Here, galvanized perforated steel forms a contemporary skin. The perforation pattern is abstracted from the crescent-shaped ornament worn by Kunqu actors, restructured into a graphic rhythm that is “traditional, yet not quite.” On closer inspection, the geometric cadence of the steel panels echoes the calligraphic strokes of the original Tangmindan characters.
Narrative-Driven Spatial Composition
In this modest 65-square-meter space, we chose not to emphasize a sense of design completion. Like the Tangmingdan, this space is meant to be rewritten. It is designed for reuse, for appropriation by different users, and for insertion into ever-evolving narratives.
In recent years, our focus has been on exploring "minimal intervention" strategies in smaller, marginal urban public spaces, where structural regeneration and cultural integration are key objectives. These spaces are characterized by limited resources, restricted budgets, and ambiguous public functions. As a result, the design process cannot rely on a singular formal expression nor achieve "project closure" through a one-off intervention. Instead, we have found potential in these interstitial spaces by employing lightweight, embedded, and adaptable spatial structures. This approach not only allows for the reactivation of these spaces but also enables them to be seen, used, and woven into the fabric of civic life.
Baihua Bookstore has become a dynamic cultural venue. Baihua Bookstore by Tsing-Tien Making.