Architect Álvaro Gor Gómez was commissioned to design Bobadilla House, a house situated on the blurred edge of Granada, a transitional space between the urban and the rural where tensions arising from urban expansion, the fragmentation of agricultural land and the loss of continuity in the landscape converge.

The project reinterprets traditional building language through a contemporary lens, becoming an architectural reflection on the landscape, history and current ways of life within a context fragmented by aggressive urban development. 

Álvaro Gor Gómez’s design for Bobadilla House transcends the domestic scale, proposing an architecture that engages with, interprets and integrates the surroundings through precise and deeply rooted references. To the east, the jagged, sloping profile of the Sierra Nevada extends into the building’s form. To the west, the Vega de Ganada and the architecture of the tobacco drying sheds serve as inspiration for a perforated façade.

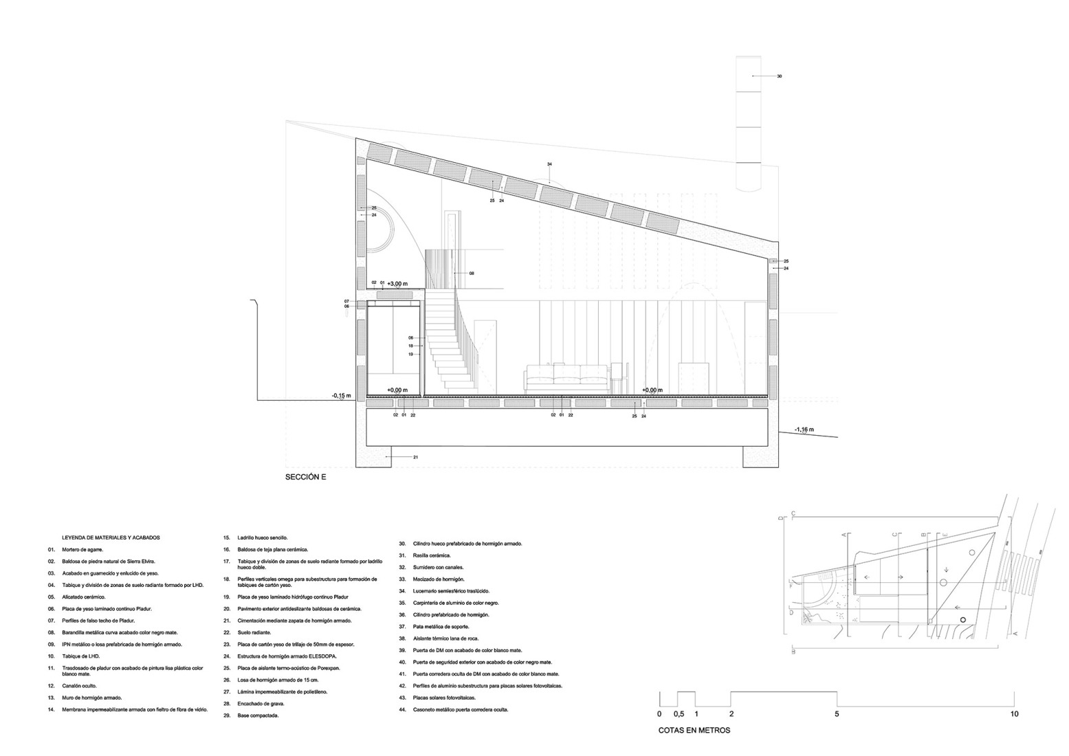
The house, with its great structural integrity, is built of exposed concrete, resistant to the passage of time and impervious to fleeting fashions, creating architecture designed to age gracefully. The entrance, a large gate reminiscent of traditional Granada farmhouses and mansions, acts as a threshold that bridges memory and innovation in this critical alternative, which reinterprets tradition and reconnects with the surroundings without sacrificing contemporary sensibilities. 

Bobadilla House by Álvaro Gor. Photograph by Juanan Barros.
Bobadilla House by Álvaro Gor. Photograph by Juanan Barros.

Bobadilla House by Álvaro Gor. Photograph by Juanan Barros.

Project description by Álvaro Gor Gómez

A dwelling on the boundary between Granada and its Vega
Casa Bobadilla is conceived as a territorial project that transcends the domestic scale to become an architectural reflection on landscape, history, and contemporary ways of living.

Located at the diffuse edge where the city gradually dissolves into agricultural land, the house adopts a strategic and symbolic position. This transitional place—neither fully urban nor strictly rural—condenses many of the tensions that have defined the recent evolution of Granada and its plain: urban expansion, fragmentation of productive land, and the loss of landscape continuity. In response, Casa Bobadilla proposes an architecture that does not impose itself, but rather engages in dialogue, interprets, and integrates.

Bobadilla House by Álvaro Gor. Photograph by Juanan Barros.
Bobadilla House by Álvaro Gor. Photograph by Juanan Barros.

The project seeks to blend with its surroundings through precise and deeply rooted references. To the east, the imposing presence of Sierra Nevada defines a recognizable horizon line, whose inclined geometry and jagged profile are translated into the volumetry of the house. The roofs reinterpret the tradition of ceramic tiles through sloped planes that evoke snowy peaks, while the dominant white color recalls both vernacular architecture and the luminosity of the mountains.

To the west, the influence of the Vega of Granada is visible in multiple layers of the project. The architecture of tobacco drying sheds—functional, permeable structures adapted to the climate—inspires the perforations in the façade, designed to optimize cross ventilation and the entry of natural light. These openings not only respond to bioclimatic criteria, but also reinterpret a traditional constructive language from a contemporary perspective.

Bobadilla House by Álvaro Gor. Photograph by Juanan Barros.
Bobadilla House by Álvaro Gor. Photograph by Juanan Barros.

Likewise, the house incorporates elements of the agricultural landscape, such as the characteristic poplar tree of the dehesa, integrating vegetation that acts as both a climatic and visual filter. The presence of orchards and productive spaces between the façade and the plot recovers the historical logic of the dehesa as a metabolic system linked to everyday life.

The historical and cultural context amplifies the meaning of the project. From the site, it is possible to establish visual and symbolic relationships with landmarks such as the Alhambra or former industrial sugar factories like San Isidro or the Ingenio de San Juan—remnants of a productive memory that shaped the region’s economic development.

Casa Bobadilla por Álvaro Gor. Fotografía por Juanan Barros.
Bobadilla House by Álvaro Gor. Photograph by Juanan Barros.

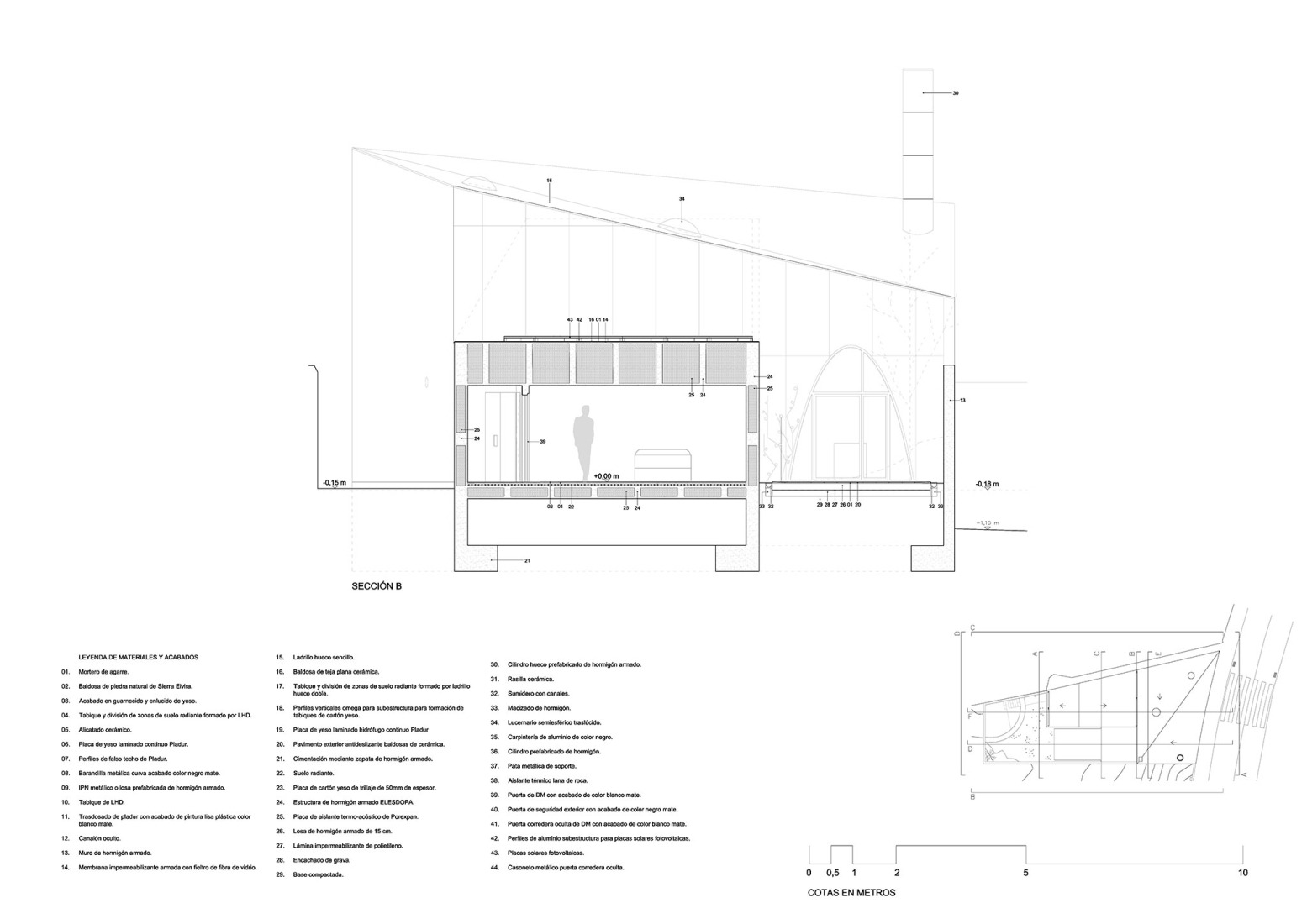
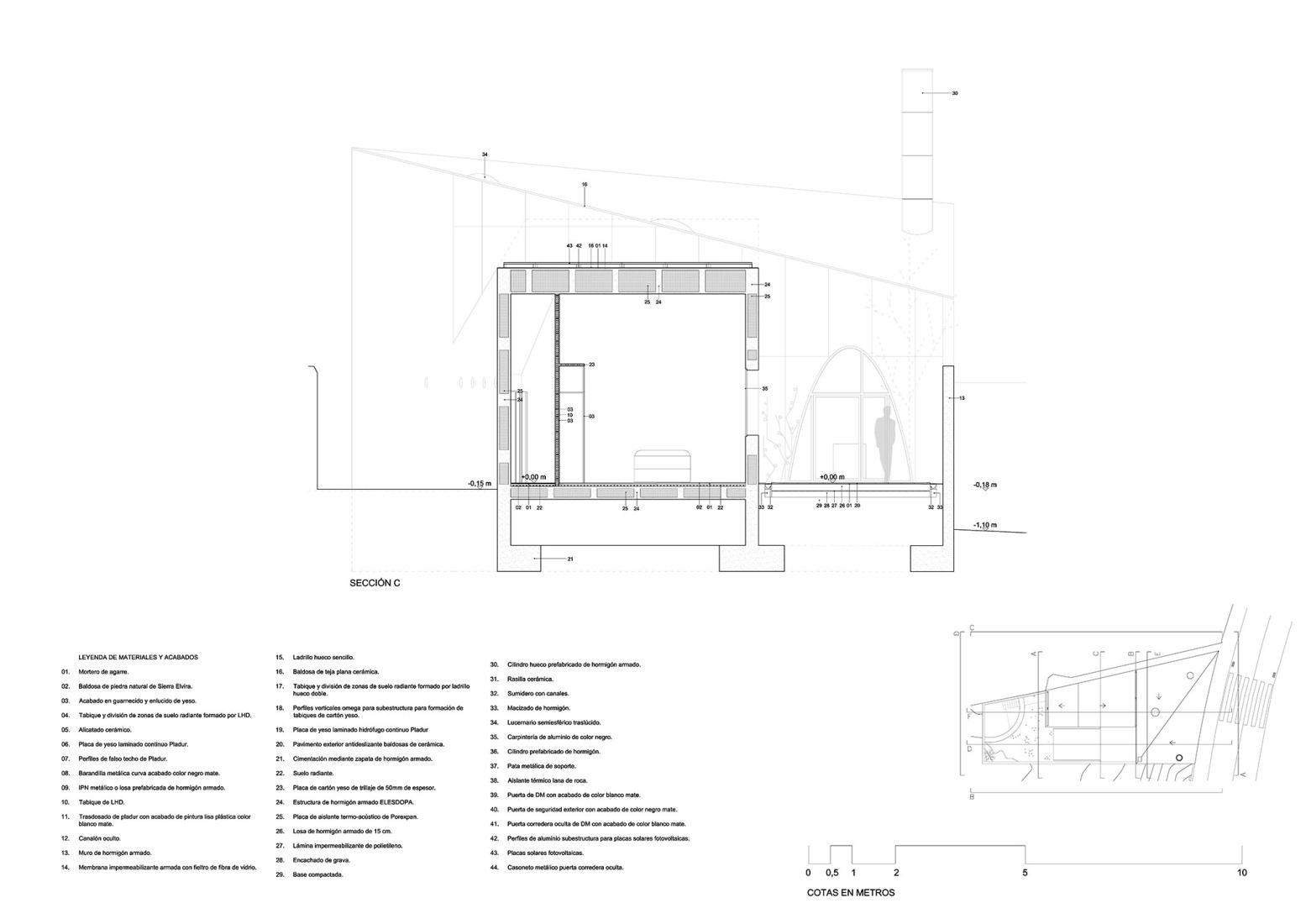
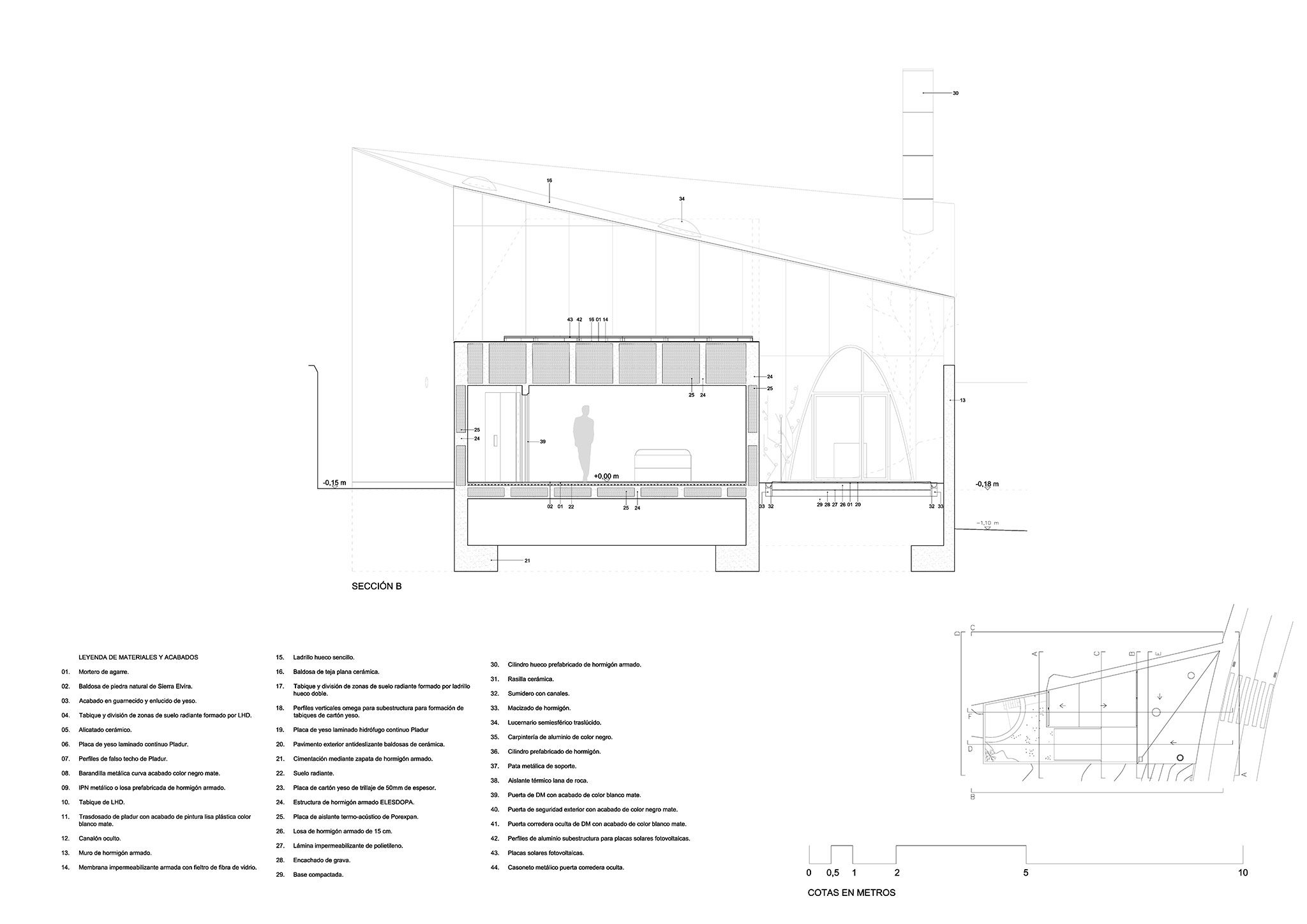
In constructive terms, Casa Bobadilla is committed to the honesty and durability of materials. The use of exposed concrete responds both to economic criteria—reducing the need for additional finishes—and to a desire for permanence: an architecture designed to age gracefully, resistant to the passage of time and detached from fleeting trends. This choice reinforces the idea of the house as a stable element within a constantly transforming territory.

Sustainability is actively integrated through the incorporation of solar panels, enabling progress toward energy self-sufficiency and reducing dependence on fossil fuels. This strategy is not presented as a technological add-on, but as a coherent extension of the relationship between architecture and its environment.

Casa Bobadilla por Álvaro Gor. Fotografía por Juanan Barros.
Bobadilla House by Álvaro Gor. Photograph by Juanan Barros.

Another significant element is the access to the house, resolved through a large gate that references traditional cortijosand manor houses of Granada. However, its design has been reinterpreted through a contemporary logic, becoming a threshold that articulates memory and innovation.

The relationship with the built fabric of the Bobadilla neighborhood is also fundamental. In this hybrid environment, where housing and agro-industrial structures coexist, the house is inserted with respect for existing scales, materials, and typologies, avoiding unnecessary formal ruptures. In this way, the project not only engages with the natural landscape, but also with the built one.

Casa Bobadilla por Álvaro Gor. Fotografía por Juanan Barros.
Bobadilla House by Álvaro Gor. Photograph by Juanan Barros.

In a context where the Vega of Granada has been progressively fragmented by aggressive urban dynamics, Casa Bobadilla positions itself as a critical alternative. It proposes a way of inhabiting that recognizes the value of productive land, recovers historical links between city and landscape, and suggests a form of domesticity rooted in the local while embracing contemporaneity.

Ultimately, more than a house, Casa Bobadilla is a mediating piece between two worlds. A project that understands architecture as a tool to reconnect with the environment, reinterpret tradition, and project new forms of coexistence between the urban and the agricultural.

More information

Label
Architects
+ + copy Created with Sketch.
- + copy Created with Sketch.
Label
Collaborators
Text

Eduardo Alonso Tejedor, Alejandro Fernández Martínez, Paula Agúndez Hisado, Antonio Jesús Gutiérrez, María García, Rebeca Pereira, Basile Pousin, Nélida Jerónimo, Alexandra Bailey, Elena López, Claudia Wallace.
Structure and MEP.- Elesdopa y Eduardo Serrano (es+arquitectura).
Technical architect.- José Manuel Segura Hernández.

+ + copy Created with Sketch.
- + copy Created with Sketch.
Label
Builder
Text

Construcciones Alcadavi and Daniel García Construcciones.

+ + copy Created with Sketch.
- + copy Created with Sketch.
Label
Developer
Text

Ana María, Manuela, Lola and Juande.

+ + copy Created with Sketch.
- + copy Created with Sketch.
Label
Location
Text

Granada, Spain.

+ + copy Created with Sketch.
- + copy Created with Sketch.
Label
Photography
+ + copy Created with Sketch.
- + copy Created with Sketch.
GRX Arquitectos understands architecture as the link between the landscape and its inhabitants. This alliance is multiple, complex and defines the society that builds it by crystallizing political, economic and social structures. Architecture explains to us throughout history how the societies that have built it have been. GRX Arquitectos think that architecture can transform the society in which it is inserted by being an active agent in the construction of new realities.

GRX is a young architecture studio and is therefore experiencing its own method of addressing the ideation and development of projects. They understand that architecture is a process where a multitude of agents in different phases are mobilized for the realization of a common objective, in which the architect becomes a catalytic agent of all the parties involved for the development of each project. In that context, the idea of authorship and individuality are relegated to a secondary level, and collaborative work and multidisciplinarity become a priority element in the process.

This quality of the way in which they understand architecture leads them to create GRX Architects Project Manager, with which in GRX we decided to increase the involvement in the construction of our projects by favouring the collective dynamics involved in the construction of architecture, promoting collaboration with artisans, artists and crafts, which we consider fundamental to work horizontally. Therefore, GRX is an elastic community of professionals that adapts in team, form and process to each project.

Álvaro Gor Gómez is an architect from the Higher Technical School of Architecture of Granada and has completed his postgraduate academic studies at the Faculty of Fine Arts (University of Granada), at the ETSA of Madrid (Polytechnic University of Madrid) and at the ETSAG.

As a student, he has worked in various architecture studios and has participated in several competitions, highlighting those made as a collaborator with Carlos Ferrater Lambarri, winning the first prize in the contest of the Science Park of Granada.

His Final Degree Project (TFM) of Architecture «Industry + Housing», supervised by Juan Domingo Santos, participated in the exhibition of the best TFM of the ETSAG of the Official College of Architects of Granada (2004-2006 period) and in the exhibitions of the finalists of the national contest of Final Degree Projects Pasajes-Iguzzini of 2007. His project Corral and Patio has participated in the exhibition of the VI COAGranada Awards 2018.

Founder and architect of GRX ARQUITECTOS. Doctoral Teaching Period in the "Housing Projects and Institutional Buildings" program of the Department of Architectural Projects of the ETSA of Madrid (UPM). Master's in «Production and Research in Art» at the Faculty of Fine Arts of the University of Granada.

He is currently Professor of Projects, Drawing and Three-Dimensional Construction at the Higher School of Art and Design of Andalusia (ESADA) and a PhD at the Higher Technical School of Architecture of the University of Granada.

Carlos Gor Gómez is an architect from the Higher Technical School of Architecture of Granada since 2010, and studied at the Technische Universität in Berlin during 2006 and 2007. He was part of the CatarQsis student group collaborating in different groups and projects in the field of social and political dimensions of architecture and the landscape.

He has developed the research "Architecture and Territory in Contemporary Audiovisual Media" for the Department of Architectural Constructions of the UGR, in the research group Architecture and Contemporary Culture, an investigation into the architectural qualities in structure and aesthetics of cinema and media and its relationship with thought and philosophy. He also developed the project “Towards an Inverse Technology Architecture: Metropolitan Devices System” through the I+D+I grant of the Rafael Escolá Foundation R&D grant, on a landscape recycling system for the revival of metropolitan dynamics.

As an architect, he has collaborated with different studios in Berlin, Madrid and Andalusia, highlighting the Arquia Scholarship for academic records with the Ábalos & Herreros study, and with the study of Juan Domingo Santos between 2011 and 2014 in the “Atrio de la Alhambra” project that It is carried out together with the Portuguese architect Álvaro Siza Vieira, combining these collaborations with the development of independent professional work.

He has given lectures and has taught at different universities, schools, seminars and congresses of architecture, research and contemporary culture, being awarded and published several times for his work as an architect and creator. He is the editor of “subterritorios.net” and has been the research coordinator of LAB-TT (Laboratory of Territories in Transformation), a teaching innovation project at the UGR. He has been in charge of various exhibitions on landscape and territory, and in 201,4 he co-edited with Antonio Collados and David Arredondo the book published by Ciengrams, "Places to the Limit”.

In 2013, he founded the professional infrastructure GRX Arquitectos, since 2017 he has been a Master in Production and Artistic Research and is currently a professor of Analysis, History of Architecture and Projects at the Superior School of Art and Design of Andalusia (ESADA).

Agustín Gor Gómez. Architect from the Higher Technical School of Architecture of Granada since 2015, and completed a master's degree in Architecture and Historical Heritage at the University of Seville in 2017.

As a student, he has worked in Alberto Campo Baeza's studio in Madrid. His final degree project has led him to win several prizes, such as the II National Contest of PCF Architecture and Enterprise and II National Contest of PFC ASEMAS, obtaining a mention in the XIV ASCER Awards, in the PFC category and being selected for the Spanish Biennial of Architecture and Urbanism (XIII BEAU).

He is a doctoral and researcher at the University of Granada, and is also teaching as an Architectural Composition professor at the same University.
Read more
Published on: April 27, 2026
Cite:
metalocus, ELVIRA PARÍS FERNÁNDEZ
"Rural contemporaneity. Bobadilla House by Álvaro Gor " METALOCUS. Accessed
<https://www.metalocus.es/en/news/rural-contemporaneity-bobadilla-house-alvaro-gor> ISSN 1139-6415
Loading content ...
Loading content ...
Loading content ...
Loading content ...
Loading content ...
Loading content ...
Loading content ...
Loading content ...
Loading content ...
Loading content ...
Loading content ...
Loading content ...
Loading content ...
Loading content ...
Loading content ...
Loading content ...
Loading content ...
Loading content ...
Loading content ...
Loading content ...
Loading content ...
Loading content ...
Loading content ...
Loading content ...
Loading content ...
Loading content ...
Loading content ...
Loading content ...
Loading content ...
Loading content ...
Loading content ...
Loading content ...
Loading content ...
Loading content ...
Loading content ...
Loading content ...
Loading content ...
Loading content ...
Loading content ...
Loading content ...
Loading content ...
Loading content ...
Loading content ...
Loading content ...
Loading content ...
Loading content ...
Loading content ...
Loading content ...
Loading content ...
Loading content ...
Loading content ...
Loading content ...
Loading content ...
Loading content ...