The starting point that structures the building designed by INSPYRA is based on the differentiation of uses into a series of independent programmatic packages. The various living spaces are organized around a central, herringbone-shaped axis, articulated by both horizontal and vertical circulation. The incorporation of a sequence of alternating open courtyards connects the interior spaces with the surrounding environment.
Conceived as a Nearly Zero Energy Building (NZEB) project, IES La Florida has achieved a triple-A Energy Efficiency Rating and the four-leaf VERDE-GBCe Certification, positioning itself as a benchmark in sustainable school architecture. The pedagogical approach focuses on an inclusive, equitable, and high-quality educational model, materialized in flexible and adaptable spaces that foster a cooperative learning system.

La Florida Secondary Education Institute by INSPYRA. Photograph by Iván Morán G-R.

La Florida Secondary Education Institute by INSPYRA. Photograph by Iván Morán G-R.
Project description by INSPYRA
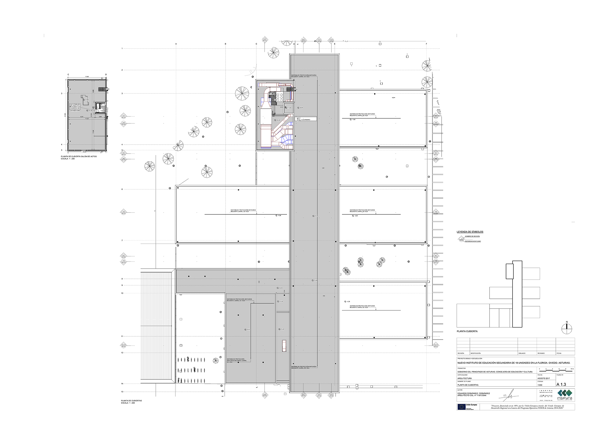
The IES La Florida school in Oviedo occupies a surface area of 5,315 m² distributed over two floors, in addition to a covered sports court. The school has 12 classrooms for ESO (Compulsory Secondary Education), 6 for Bachillerato (Upper Secondary Education), workshops and common areas, a gymnasium, an administration area, an auditorium, and a small cafeteria.
Pedestrian access to the complex is from the northeast corner of the plot, the most urbanized area, while vehicle access and the parking area are located on the south side of the plot.
The project is based on the decision to organize the school through programmatic packages that group different uses. The layout is configured around a central, herringbone-shaped axis that encompasses both vertical and horizontal circulation. The ground floor spaces (administration, ESO classrooms, Bachillerato classrooms, gymnasium, auditorium, etc.) constitute autonomous blocks that follow one another transversely and open to the north-south orientations, creating a sequence of interconnected open courtyards that articulate the entire surface of the plot. The first floor rests on these structures and houses all the classrooms and workshops.
This arrangement allows for the same circulation pattern on both floors, and the clarity of its linear design contrasts with the changing nature of the spatial experiences encountered as one moves through it.
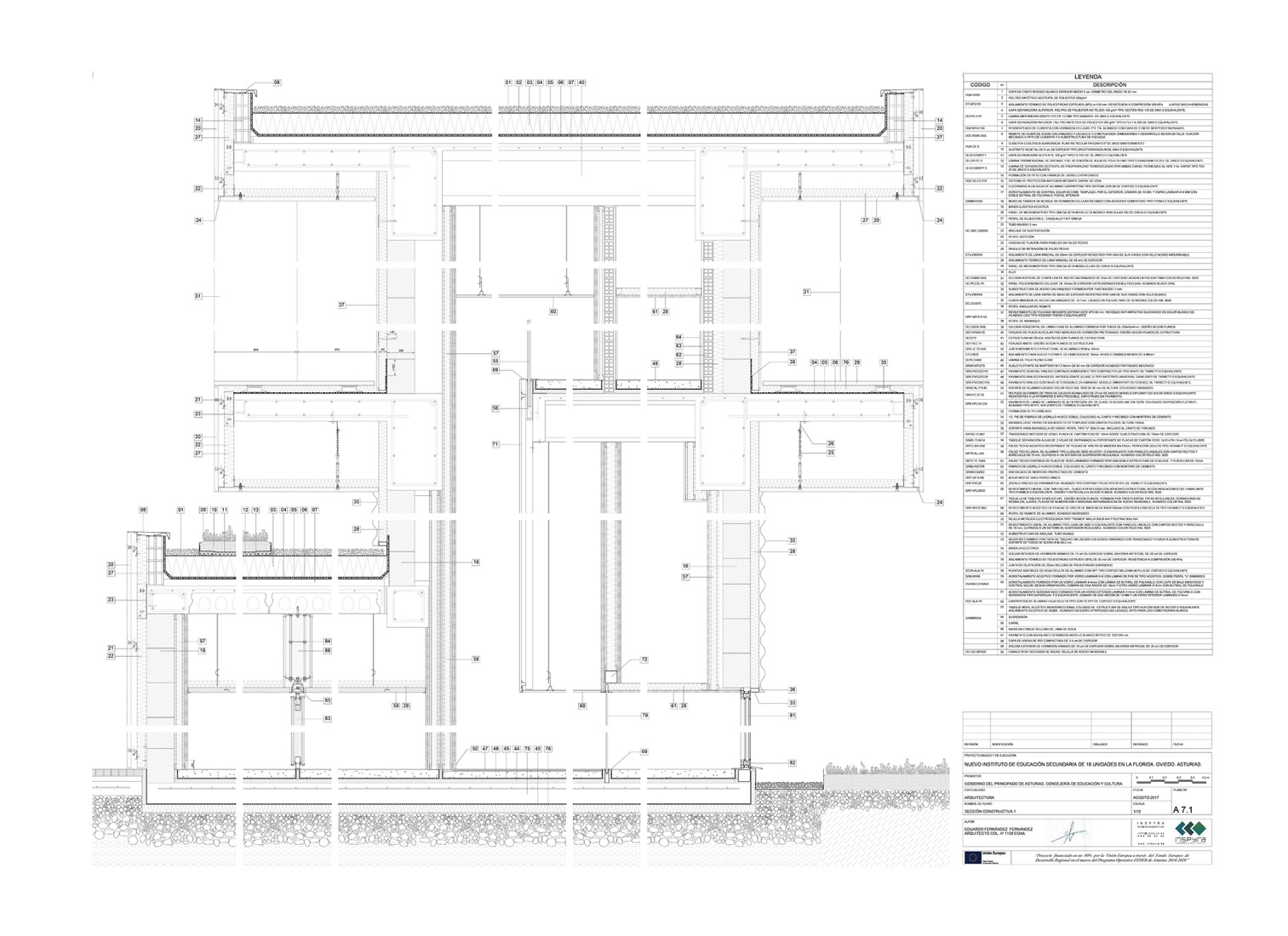
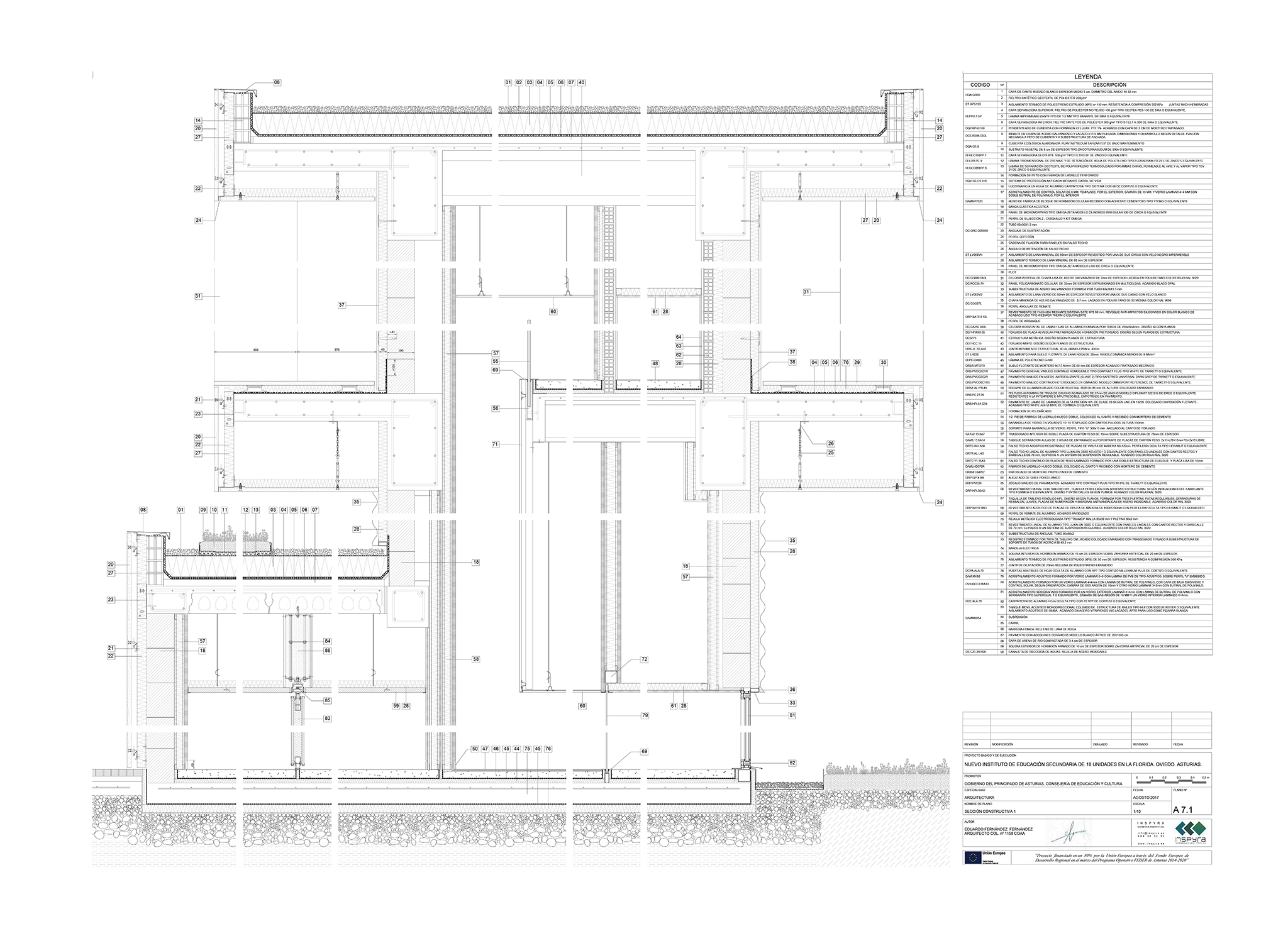
From a construction standpoint, the building, based on a simple structural scheme and the use of dry construction systems, seeks to create open and modular spaces that would allow for easy future reconfiguration. The facade cladding is made of aluminium and polycarbonate with different configurations of openings and sunshades to accommodate the various orientations.
New ways of educating. Learning spaces.
The building aims to provide a contemporary and innovative response in the field of school architecture, which is sometimes limited to conventional and closed solutions. Little by little, traditional classrooms with their rows of tables and chairs facing the blackboard, which gave the teacher center stage, have been transformed into spaces that empower students to take ownership of their learning, with areas for individual research, teamwork, and oral presentations and debates. The building promotes and fosters this new educational model. Thus, classrooms are designed as flexible spaces that can be joined together using movable partitions and transformed into "super-classrooms," allowing all three classes in the same grade level to work on the same project.
The walls are conceived as blackboards, and, following David Thornburg's approach, common areas, hallways, and passageways are designed as learning spaces, extending the classroom space through the creation of three multipurpose educational spaces:
- The campfire: an area dedicated to presentations and lectures. It is a small amphitheater for storytelling and artistic expression.
-The Watering Hole: a space dedicated to meeting, socializing, and teamwork. It is characterized by the use of circular tables for group work and for enjoying free time and conversation.
-The Cave: a space for individual work, furnished with beanbag chairs or sofas, creating a pleasant environment for reading and research.
Sustainable Building
The building has been designed and built as a Nearly Zero Energy Building (NZEB) to be a benchmark for sustainable construction, achieving a Triple A Energy Efficiency Rating: A for heating demand, A for CO2 emissions, and A for non-renewable primary energy consumption. Furthermore, the new building has obtained the VERDE NE-Equipment 4-leaf certification, according to the requirements established by the VERDE Certification (GBCe Spain).
Accessible Building
The Center is designed to be used independently by all people, adhering to the principles of Universal Accessibility and Design for All, with the aim of not only complying with regulations but also providing added value and innovative elements. Among the contributions to physical accessibility, the most important is the accessible ramp that runs around the Auditorium and connects both floors of the building. This ensures that both accessibility and evacuation of the building are adapted and can be carried out independently, exceeding regulatory requirements.
Another aspect to which the project has paid special attention is Cognitive Accessibility, promoting children's independence in moving around the building through directories and color-coded systems that allow for the identification of each of the program areas.