The 24-unit housing project, developed by MBM Arquitectes + 4RQ Arquitectura, creates a volume with two distinct perspectives: compact towards the street frontage and open towards the park, proposing new, sustainable relationships between community life and the natural environment. The design frees up the ground floor and concentrates the entrances, technical spaces, and communal areas on this level, connecting them to the park and the neighbourhood.
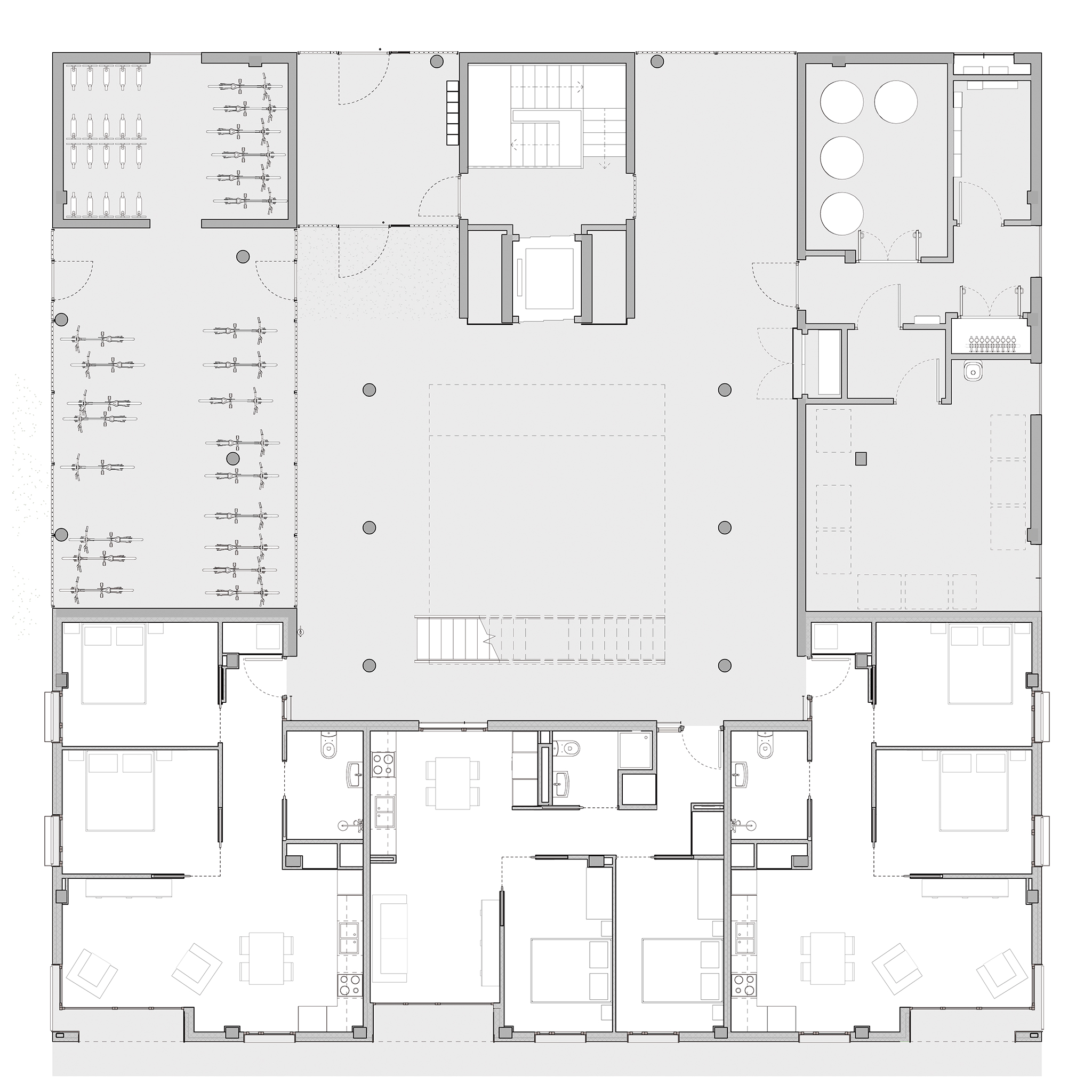
At the heart of the project, a central courtyard, open and ventilated, rises from the ground floor to the roof, allowing the street space to permeate the building's interior. As a design and structural tool that organizes the entire complex, the courtyard becomes a social, spatial, and climatic organizing element, establishing a hybrid space between interior and exterior.
In a neighborhood historically distanced from the city center by industrial areas, the design incorporates ample bicycle parking, conceived as a strategic infrastructure that promotes active mobility and strengthens daily connections with the city. Seven apartments per typical floor, along with three units on the ground floor, complete the design.

Social housing and collective space in Igualada by UTE MBM arquitectes + 4RQ arquitectura. Photograph by Adrià Goula.
For its construction, the building embraces industrialization and the circular economy. The project's visual language is built upon a contemporary reinterpretation of Igualada's industrial past. Drywall systems, modular openings, prefabricated metalwork, and large laser-cut steel pieces engage with an industrial aesthetic that is balanced by the warmth provided by materials such as recycled OSB, present in the common areas, reinforcing the collective and welcoming nature of the complex.
Beyond simply fulfilling a public housing program, this complex of 24 social housing units proposes an architecture capable of building community, revitalizing public space, and offering high-quality living. On a complex site, a building emerges conceived as an opportunity to explore new relationships between collective housing, public space, sustainability, and community life.

Social housing and collective space in Igualada by UTE MBM arquitectes + 4RQ arquitectura. Photograph by Adrià Goula.
Project description by UTE MBM Arquitectes y 4RQ Arquitectura
On a site shaped by unfavorable urban constraints, the 24-unit social housing building in the Les Comes neighborhood of Igualada proposes an architecture that refuses to surrender to regulatory or programmatic limitations. The project is conceived as a transitional piece between an existing residential complex and an adjacent urban park, exploring new relationships between collective housing, public space, sustainability, and community life.
Beyond addressing a residential brief, the building acts as urban infrastructure, capable of activating its surroundings, promoting sustainable mobility, and testing circular economy strategies applied to public housing.
The volume completes the existing built frontage while simultaneously opening toward the park, reinforcing the continuity of public space. An open, naturally ventilated central courtyard organizes the ensemble and allows urban space to penetrate into the heart of the building, rising visually from the ground floor to the roof. This void functions as a climatic, spatial, and social mediator, establishing a direct dialogue between interior and exterior.
The ground floor is deliberately freed to become the true heart of the project. Rather than adopting a conventional layout, this level concentrates access points, technical spaces, communal areas, and a large bicycle parking facility, shaping a collective domain connected to both the park and the neighborhood. To make this possible, the housing typology was rethought: the six dwellings initially planned per floor were increased to seven on the typical levels, while the ground floor accommodates only three units, prioritizing shared space over strictly quantitative efficiency.
Within this context, the bicycle assumes a leading role. In a neighborhood historically separated from the city center by industrial areas, the project incorporates a generous bicycle parking facility conceived not as a residual service, but as strategic infrastructure that promotes active mobility and strengthens everyday connections with the city. Facing the park, this element acts as a hinge, filtering and mediating between the domestic scale and the green space.
The resulting dwellings are compact yet seek to transcend dimensional limitations through precise spatial strategies. The “destroyed corner” approach breaks conventional visual boundaries, expands interior perspectives, and enhances spatial continuity, generating bright and flexible homes despite their limited surface area.
The building’s architectural identity emerges from a contemporary reinterpretation of Igualada’s industrial past. Exposed metalwork, prefabricated systems, and dry construction methods engage in dialogue with a technological aesthetic reminiscent of the hi-tech imagination of the 1970s and 1980s. This industrial character is balanced with the domestic warmth of materials such as recycled OSB, used in common areas to reinforce the collective and habitable nature of the ensemble.
Sustainability informs every project decision. Reduced energy demand is achieved through a high-performance envelope with very low thermal transmittance values, advanced insulation, passive solar protection, low-emissivity glazing, and cross ventilation supported by the central courtyard. The building completely eliminates fossil-fuel-based thermal systems.
The roof is conceived as an active plane: a photovoltaic pergola and a large central skylight crown the building and define its silhouette, making the project’s energy dimension visible. The installation reaches an annual production of 11,153 kWh, sufficient to cover the entire communal energy demand.
Water management follows a circular logic, incorporating a greywater reuse system that collects water from showers and washing machines to supply toilet cisterns, along with permeable exterior paving and a separate drainage network prepared for future urban-scale rainwater reuse strategies.
The construction process embraces industrialization and circular economy principles: dry systems, modular openings, workshop-fabricated metalwork, and large laser-cut steel components reduce construction time, minimize waste, and facilitate future adaptation. More than 70% of non-hazardous waste generated is recovered, reinforcing a responsible life-cycle approach.
Far from merely fulfilling a public housing program, the project proposes an architecture capable of adding to the city, activating public space, and delivering high domestic quality. Where there was once a challenging plot, there now stands a building that understands social housing as an opportunity to construct community, landscape, and sustainability.