The use of simple structures and rigid solid forms are the keys that allow the integration of this project of monolithic appearance by BCHO Architects in the landscape.
As part of a master plan for this maritime area in South Korea, BCHO Architects propose this hotel built in harmony with the environment, dividing the complex in seven low-rise units placed in juxtaposition so that the complex is adapted to the slope and at the same time it allows to maintain the views of the landscape.
 

Project description by BCHO Architects Associates

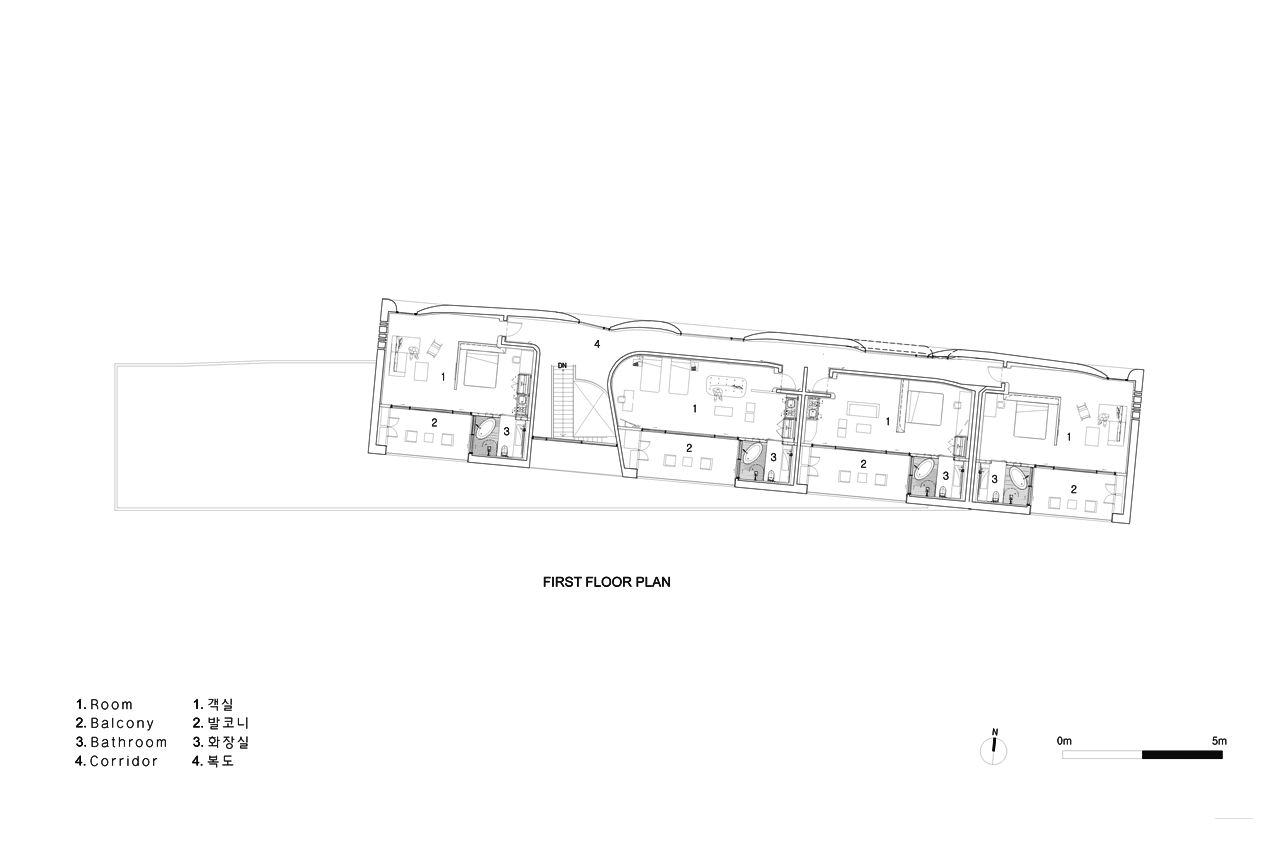
Namhae Hotel forms part of a proposal for this small peninsula to include a new golf course, club house and villas. The high end, 49 room hotel is intended to strike a certain harmony with the natural elements of the landscape, emphasised by the use of simple structures and resolute forms that detract little from the dramatic hills and ridgelines of the island.

Challenging the conventional capacity of a hotel as one large entity, our proposal splits the building into seven units, uniquely adapting to the site by following the slope line and rock thus organically surrounding nature. The programmatic inclination of the hotel, whose guests are mostly golfers, allows the buildings to be isolated and served directly from the clubhouse while electronic cards eliminate a reliance on staff.

All buildings are composed of two linear boxes, intentionally kept low, disappearing into the site to allow for uninterrupted views southwards of the beautiful peninsula. These two storey masses are juxtaposed and cantilevered in order to frame views of the ocean, concurrently following the gradient of the natural topography. Additionally, the cantilevers have a functional use of protecting cars and pedestrians from the often extreme climatic conditions of the cape, creating a cool tunnel within the sloping hill. Elevations orientated towards the ocean are typified by maximum surface area allowance for windows, in contrast to hillside elevations where minimal windows produce an inherently high thermal efficiency. Resonating with the archaic principle of architecture as shelter, solid balconies provide protection from strong typhoons during the summer, forming deep punctuation in the solid masses of the hotel.

The architecture is allowed subtly recede into the background as an inanimate object by the monolithic choice in materials. Smooth concrete is used extensively internally, while externally the concrete becomes ground to expose the grains of gravel and sand used in the construction process. Consequently, architecture is no longer found in the building itself, but in the relationship between these monolithic blocks and the landscape.

Primitive materials, with an emphasis on rawness, heighten the sense of an architecture having a resonance with the natural opposed to the artificial. The corridors use exposed concrete to the floor and whiles while black treated stainless steel adds to the distinct ambience inside these circulation spaces. Solid wood able to absorb the moisture of the sea air clads the guestroom roofs, the edges left exposed allowing the depth of the material to be perceived. Architectural juxtapositions dramatise the sequence of spaces that lead the inhabitant to there room. A phenomenological beauty is created through the dramatic contrast in dark spaces provided by the tunnel and corridors with the intense daylight found in the guestrooms.

More information

Label
Architects
+ + copy Created with Sketch.
- + copy Created with Sketch.
Label
Project team
Text
Kang, Woo-hyun/ Kim, Sara/ Park, Jung-yong/ Kang, So-jin/ Oh, Seong-heon Bae, Yong-eun/ Choi, Sun-yong/Kim, Sook-jung/ Nicholas Locke/ Angel Tenorio/ Allicia Belloescobar/ Anouck Foch.
+ + copy Created with Sketch.
- + copy Created with Sketch.
Label
Area
Text
6,016.85 sqm.
+ + copy Created with Sketch.
- + copy Created with Sketch.
Label
Dates
Text
2013.
+ + copy Created with Sketch.
- + copy Created with Sketch.
Label
Location
Text
321, Jindong-ri, Changseon-myeon, Namhae-gun, Gyeongsangnam-do, Korea.
+ + copy Created with Sketch.
- + copy Created with Sketch.
Label
Photography
Text
ByoungSoo Cho.
+ + copy Created with Sketch.
- + copy Created with Sketch.

BCHO Architects is about twenty to thirty people firm. Founded in Seoul, Korea, in 1994 by ByoungSoo Cho, the firm started as a design-build office with a focus on simple structures and strong regard for nature. The design team has been working very closely with contractors and multiple fabrication specialists in various disciplines; including stone masons, product designers, wood workers, potters, and engineers. The firm also has multiple professional collaborators throughout the world in North and South America. BCHO Architects believe that buildings, furniture and art are made, not created. Each architectural project, encompassing various scales and programs, explores the phenomenon of light and space, fabrication and construction methods, recycling and reusing, and a broad sense of sustainability (social/cultural/physical) which uses collective creative energy to reduce the demand for grid energy.

ByoungSoo Cho has taught at various universities including Universitat Kaiserslautern, YonSei, HanYang, GyoungGi and Harvard University. He has received KIA Award, Cri-Arc Award, AIA Honor Award, in Montana Chapter and in N.W.Pacific Regional. His recent works include Shaped Concrete Box House, Ramp building, and be.twixt. His firm has been selected an one of eleven Design Vanguard Firms by Architectural Record(Dec, 2004).

 

Read more
Published on: November 9, 2015
Cite:
metalocus, IRENE GARCÍA.
"Namhae Southcape Linear Suite Hotel by BCHO Architects" METALOCUS. Accessed
<https://www.metalocus.es/en/news/namhae-southcape-linear-suite-hotel-bcho-architects> ISSN 1139-6415
Loading content ...
Loading content ...
Loading content ...
Loading content ...
Loading content ...
Loading content ...
Loading content ...
Loading content ...
Loading content ...
Loading content ...
Loading content ...
Loading content ...
Loading content ...
Loading content ...
Loading content ...
Loading content ...
Loading content ...
Loading content ...
Loading content ...
Loading content ...
Loading content ...
Loading content ...
Loading content ...
Loading content ...
Loading content ...
Loading content ...
Loading content ...
Loading content ...
Loading content ...
Loading content ...
Loading content ...
Loading content ...
Loading content ...
Loading content ...
Loading content ...
Loading content ...
Loading content ...
Loading content ...
Loading content ...
Loading content ...
Loading content ...
Loading content ...
Loading content ...
Loading content ...
Loading content ...
Loading content ...
Loading content ...
Loading content ...
Loading content ...
Loading content ...
Loading content ...
Loading content ...
Loading content ...
Loading content ...