The building for the IBAVI, comprising 10 social housing units and 10 multipurpose spaces, "10 VPP," projected by Javier Gavín, Juan Moreno, Siddartha Rodrigo, and DATAAE, aims to meet the demand for comfort through the use of passive systems and by orienting the apartments to the southeast with facade galleries that function as energy-harvesting spaces.
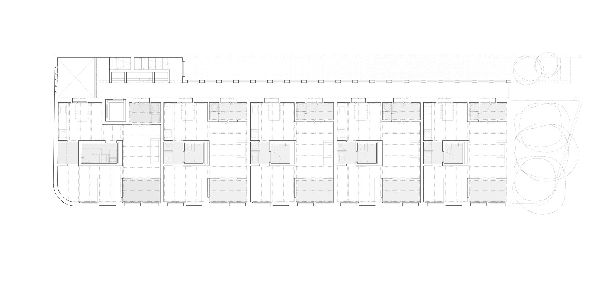
The ground floor features a series of multipurpose spaces supporting the apartments, with direct access to the street and the rear garden. These spaces can also be used as parking spaces, as required by regulations. This strategy circumvents the regulatory requirements, avoiding the construction of an underground parking garage that would increase the building's environmental footprint and costs.
The project focuses on optimizing the thickness of structural elements and minimizing the materials used in construction. The building's robust, durable exterior structure, integrated into the surroundings, is clad in local stone from the Mares quarries. The interior is resolved with a horizontal structure of prefabricated wooden panels and a vertical structure of load-bearing walls made of local brick.

"10 VPP" by Javier Gavín + Juan Moreno + Siddartha Rodrigo + DATAAE. Photograph by Clara Torres González.
Project description by Javier Gavín + Juan Moreno + Siddartha Rodrigo + DATAAE
Located in Santa Margalida, a small town in the north of Mallorca, the project proposes a building with 10 social housing units and 10 multipurpose spaces, constructed using local and/or low environmental impact materials. The exterior structure is built with marés sandstone from local quarries, resulting in a robust and durable construction that ensures the building’s integration into its surroundings. The interior is resolved through a horizontal structure of prefabricated timber panels and a vertical structure of load-bearing walls made of locally sourced brick, facilitating the project’s economic feasibility.
The project’s technological research focuses on optimizing the thickness of these structural elements and minimizing the amount of material used on site. In this regard, the rotation of floor slabs in alternating bays allows loads to be distributed to the greatest extent and ensures the interlocking of the whole, enabling the use of more slender load-bearing walls and reducing construction costs. Likewise, the timber slabs are designed as a prefabricated panel system, facilitating assembly and speeding up on-site execution. The H-section of the panels ensures that, in the event of fire, the horizontal board protects the upper part of the joists, reducing the amount of timber used in the slabs without the need for additives or fire-retardant varnishes—relying solely on the geometry of its components.
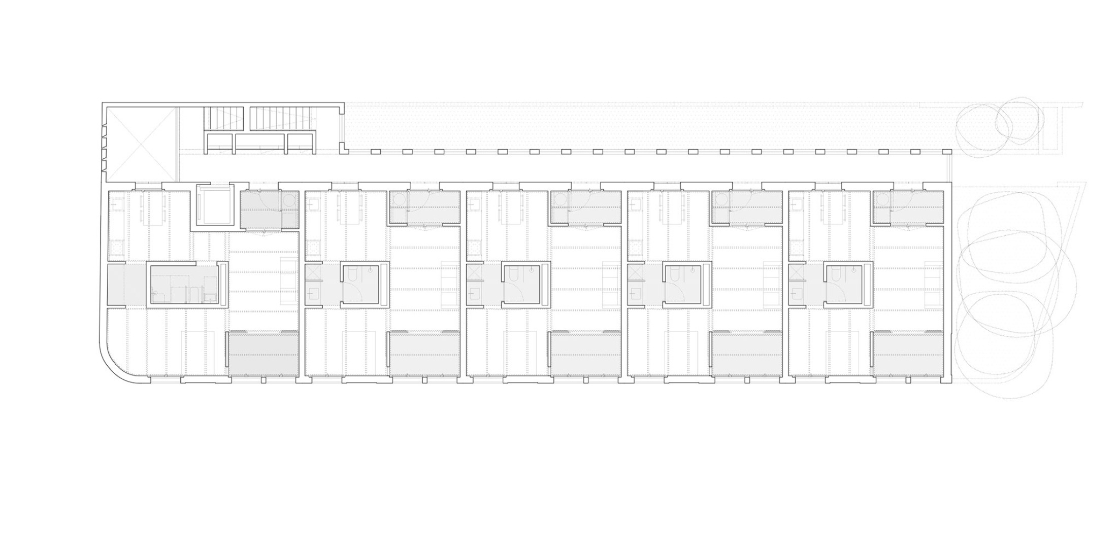
In response to regulatory requirements mandating one parking space per dwelling, and given the low actual demand for parking in the town, the project creates a set of multipurpose ground-floor spaces that support the housing units and can also fulfill this requirement. This strategy turns regulatory constraints into opportunities, avoiding the construction of an underground parking garage and, consequently, the associated ecological footprint and additional economic cost (earthworks, retaining structures, etc.). The result is a system of 10 multipurpose spaces in direct contact with the street and the rear garden, capable of functioning as garages, workshops, complementary spaces, or even accommodating five additional housing units in the future should regulations allow.
On the upper floors, the building’s limited depth is used to create dual-aspect dwellings with cross ventilation, reinforcing the idea of “living between outdoors.” The staggered arrangement of rooms structures the internal organization of the homes. The typologies are articulated around a central core, generating circular routes that allow flexible use and long sightlines that expand the perception of interior space. The movement of the sun accompanies the use of the spaces throughout the day.
The project seeks to meet comfort demands through the architectural form itself, achieving—through the use of passive systems (cross ventilation, solar galleries, thermal mass, etc.)—a reduction of non-renewable primary energy consumption to zero.
In this sense, southeast orientation is prioritized in all dwellings, using façade galleries as energy-capturing spaces during colder months. In warmer months, a system of roller blinds shades these spaces, blocking solar radiation. The floor plan organization results in shallow, dual-aspect dwellings, ensuring cross ventilation and taking advantage of prevailing air currents.